「嘉利108公馆」
静安内环核心地段
建面约54~95㎡精装公寓
8号线西藏北路地铁站400米
总价约:350万-723万
5.6米层高复式 得房率130%
50年商办产权 不限购 稀缺Loft公寓
☎ 销售中心:400-153-0352 ☎
【温馨提示:为节省您的宝贵时间,看房请提前预约】

项目基础信息
板块区位:静安区大宁
地址:嘉利商业广场,静安区平型关路(近西藏北路)
容积率:2.4
总体量:20套
在售面积:复式59~95平
总价:400~723万
交付:精装全配
物业公司:中建物业管理
物业费:5元
停车:1200元/月 临停5元/小时
市场租金:9000~10000元
性价比:买一层送一层130%得房率高
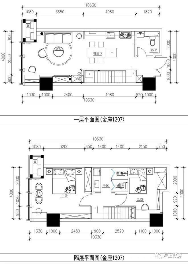
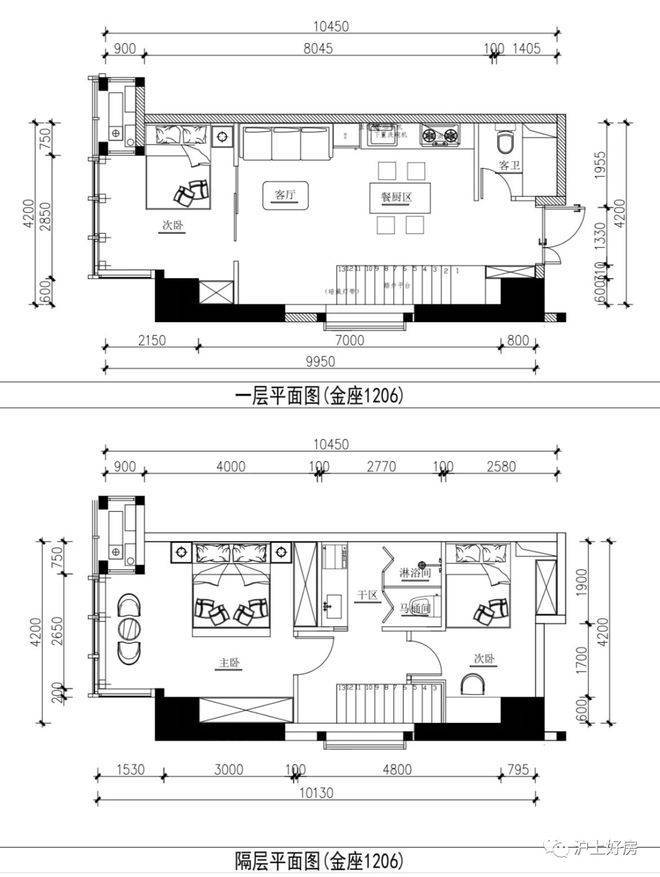
户型图及样板间照
【项目户型图】▼




【项目样板间实景图】▼





项目区位配套
项目地址位于上海静安区平型关路108号。隶属整个静安最完善的市级商圈大宁板块,毗邻人民广场及虹口足球场商圈,地理位置优越、配套成熟、生活便利、公共交通四通八达。项目本身自带底商,瑞幸咖啡,全家,各类重轻餐饮(火锅、快餐、日料、酒吧)等一应俱全,生活非常便捷。地下一层就是超大型综合卖场大润发,完全可以满足您日常生活所需。

【交通配套方面】步行350米到达8号线西藏北路地铁站,3站到达人民广场,乘坐1站到达虹口足球场站便可换乘3号线;1.3公里到达1号线中山北路地铁站;自驾5分钟内到达内环高架路及南北高架,可上中环。人民广场、陆家嘴、静安寺、徐家汇、五角场等上海核心商圈
【底商与附近大型商圈】驱车便可到达上海著名的大宁商圈以及虹口足球场商圈:大宁国际购房广场,伍绿折扣店,红双喜专卖店,联华超市,大润发超市




【医疗资源方面】三甲医院有第十人民医院和同济附属口腔医院等坐镇。

【教育资源方面】上海外国语大学、上海大学等著名高等院校;市北中学、风华初级中学、大宁国际小学、闸北实验小学等市重点高中及一梯队小学均相聚在此。
【人文配套】上海马戏城、鲁迅公园、虹口足球场等娱乐文化体育场所。

☎ 销售中心:400-153-0352 ☎
【温馨提示:为节省您的宝贵时间,看房请提前预约】