【上海黄浦外滩南京东路精装公寓「万国府」2026】楼盘详情介绍

景德镇楼市发布

2026-01-14 01:18:00

购房群

买房如何避坑,加入购房群,看看他们怎么说

立即进群

上海核心 百年外滩中央

黄浦外滩南京东路精装公寓「万国府」

推出18席景观公寓

建面约95-260㎡奢华平层

装修私人定制 1万/㎡

单价约10-12万/㎡

明年入市 可提前预定

— 恭迎品鉴 —

开发商优惠热线:400 993 7181【售楼中心】

【万国府】实景发布:

开发商优惠热线:400 993 7181【售楼中心】

【基础信息】

项目区域:黄浦区-外滩

面积区间:95-260m²

价格区间:单价约10-12万/㎡

层高:3.6米

电梯配比:3梯6户

物业费:35元/m²

车位费:1500元/月

交付标准:豪华装修交付

水电燃气:无燃气,水:6.5元/吨 ,电:1.2元/度

交付时间:2026年9月30号

优势:上海外滩地段,整层改造的公寓项目,豪华装修,拎包入住

开发商优惠热线:400 993 7181【售楼中心】

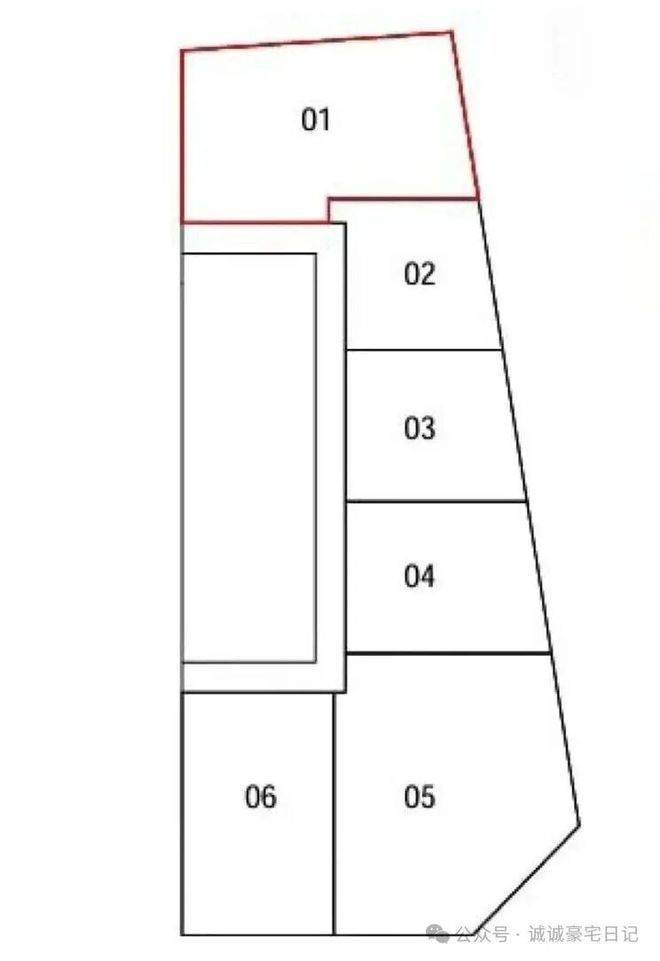
户型分布&户型图:

开发商优惠热线:400 993 7181【售楼中心】

开发商优惠热线:400 993 7181【售楼中心】

开发商优惠热线:400 993 7181【售楼中心】

样板间效果图:

开发商优惠热线:400 993 7181【售楼中心】

开发商优惠热线:400 993 7181【售楼中心】

开发商优惠热线:400 993 7181【售楼中心】

开发商优惠热线:400 993 7181【售楼中心】

开发商优惠热线:400 993 7181【售楼中心】

开发商优惠热线:400 993 7181【售楼中心】

开发商优惠热线:400 993 7181【售楼中心】

开发商优惠热线:400 993 7181【售楼中心】

开发商优惠热线:400 993 7181【售楼中心】

开发商优惠热线:400 993 7181【售楼中心】

开发商优惠热线:400 993 7181【售楼中心】

开发商优惠热线:400 993 7181【售楼中心】

上海核心 百年外滩中央

「万国府」

推出18席景观公寓

建面约95-260㎡奢华平层

装修私人定制 1万/㎡

单价约10-12万/㎡

明年入市 可提前预定

— 恭迎品鉴 —

售楼热线:☎ 400 993 7181「售楼处」☎〢售楼中心〢

➖➖➖➖➖➖➖➖➖➖➖➖➖➖➖➖➖➖➖➖➖➖➖➖➖

◆置业顾问:☎ 177 5172 0962「微信同步」☎〢专业一对一热情服务〢◆看房需要提前电话预约,避免可能案场无人接待!◆提前预约可享内部优惠〢匠心钜制-恭迎您的品鉴〢

提供全天候直通售楼处服务,以及置业顾问1对1服务,方便客户预约看房。

请务必报名后静待销售电话确认,确认后再行前往现场!仅预约客户可进入销售现场,感谢您的理解和支持

全部
报名成功
稍后会有专业的置业顾问联系您
返回楼盘

频道导航

返回首页

看房小程序

APP下载

电话拨通后,请您手动拨打分机号

确定拨打电话

电话号码:

分机号:(可能需要拨分机号)