上海万国府怎么样?在哪里?好不好?

景德镇楼市发布

2026-01-06 02:33:00

购房群

买房如何避坑,加入购房群,看看他们怎么说

立即进群

上海核心 百年外滩中央

黄浦外滩南京东路精装公寓「万国府」

——上海黄浦外滩万国府公寓销售中心:400-115-1318(24小时免费热线)——

《售楼处经理:189-3973-3386(微信同号)》

【温馨提示:为节省您的宝贵时间,来参看房请提前预约】

推出18席景观公寓

建面约95-260㎡奢华平层

装修私人定制 1万/㎡

单价约10-12万/㎡

明年入市 可提前预定

【万国府】实景发布:

【基础信息】

项目区域:黄浦区-外滩

面积区间:95-260m²

价格区间:单价约10-12万/㎡

层高:3.6米

电梯配比:3梯6户

物业费:35元/m²

车位费:1500元/月

交付标准:豪华装修交付

水电燃气:无燃气,水:6.5元/吨 ,电:1.2元/度

交付时间:2026年9月30号

优势:上海外滩地段,整层改造的公寓项目,豪华装修,拎包入住

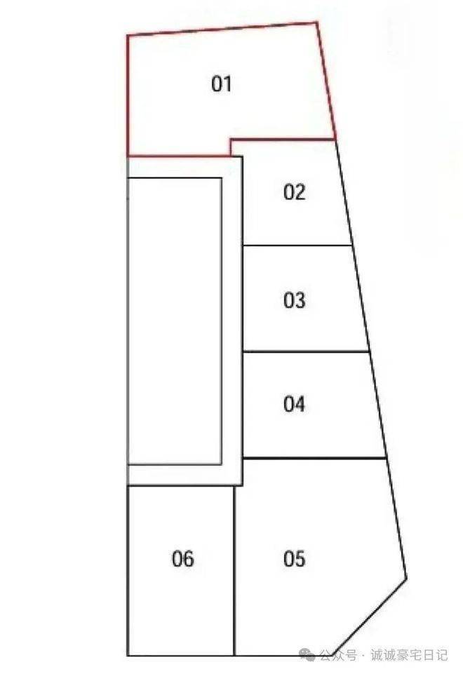
户型分布&户型图:

——上海黄浦外滩万国府公寓销售中心:400-115-1318(24小时免费热线)——

《售楼处经理:189-3973-3386(微信同号)》

——上海黄浦外滩万国府公寓销售中心:400-115-1318(24小时免费热线)——

《售楼处经理:189-3973-3386(微信同号)》

样板间效果图:

——上海黄浦外滩万国府公寓销售中心:400-115-1318(24小时免费热线)——

《售楼处经理:189-3973-3386(微信同号)》

——上海黄浦外滩万国府公寓销售中心:400-115-1318(24小时免费热线)——

《售楼处经理:189-3973-3386(微信同号)》

【温馨提示:为节省您的宝贵时间,来参看房请提前预约】

——上海黄浦外滩万国府公寓销售中心:400-115-1318(24小时免费热线)——

《售楼处经理:189-3973-3386(微信同号)》

【温馨提示:为节省您的宝贵时间,来参看房请提前预约】

上海核心 百年外滩中央

「万国府」

推出18席景观公寓

建面约95-260㎡奢华平层

装修私人定制 1万/㎡

单价约8万/㎡

——上海黄浦外滩万国府公寓销售中心:400-115-1318(24小时免费热线)——

《售楼处经理:189-3973-3386(微信同号)》

【温馨提示:为节省您的宝贵时间,来参看房请提前预约】

全部
报名成功
稍后会有专业的置业顾问联系您
返回楼盘

频道导航

返回首页

看房小程序

APP下载

电话拨通后,请您手动拨打分机号

确定拨打电话

电话号码:

分机号:(可能需要拨分机号)