御见静安,执掌华山 —— 上海静安御华山顶序行政公馆!

景德镇楼市发布

2026-03-19 14:21:00

购房群

买房如何避坑,加入购房群,看看他们怎么说

立即进群

——静安御华山销售热线:400-153-0352(24小时免费热线)——

【微信咨询:18816634698(复制添加)】

【温馨提示:为节省您的宝贵时间,来访看房请提前预约】

上海城市精神

海纳百川 追求卓越

开明睿智 大气谦和

百年华山路 恒久塔尖资产

『御华山』

与 陆家嘴四季汇 外滩半岛公寓 齐名

沪上三大顶级公馆之一

衡复风貌区总裁公馆

建面 327㎡-407㎡ 大平层

总价 3094-4183万

实景现房 无需资格 即可购买!

自带约3000㎡私家会所

集健身 游泳 会客 私宴等功能!

自诞生之日起!

便以 城市核心顶级私宅 定位

顶级高净值人群终极置业目标

她不仅是一处居所!

更是上海内环核心稀缺资产象征

用每一寸空间打磨

诠释着 “顶奢孤品” 真正内涵!

一房一价表:

【项目资料】

【类型】顶级公馆

【产权】50年

【建面】327、407平和737平

【总高】41层(跳数字3和4)

【层高】3.3米

【车位】固定车位160个

【物业】上海鼎固物业

【开发商】上海日月光置业有限公司

【物业费】16元/平方米/月

【电费】1.35元/平方米/月

【水费】5.23元/立方米/月

【燃气费】4.02元/立方米/月

【梯户比】:3梯2户和3梯1户

【首付比例】:5成

【交房标准】毛坯

【交房时间】现房

梧桐树下 上海,指的就是上海中心城区历史文化风貌区!对于本地人尤其是老一辈上海人 来说,大家口中的 富人区就是他们口中的“上只角”,也是精致生活的代表!

同样上海楼市对于 上只角 认可度,一直体现在区域内 房产保值 程度!当然也是因为 上只角 都有一个共性,板块供应量极少!

经典老静安

全上海最稀缺 城市地段尽在足下!

百年华山路,收藏源自1862年上海故事!不限购藏品面积段豪宅,华山路唯一可售城市天际线大宅,人生值得封藏不动产,御华山不应缺席!

华山路 上海地脉血统最高贵一条路

华山路,是上海传统老洋房地段!也是曾经法租界领馆区,底蕴深厚!从清末民国起,便是中外政商与文化名流聚居地!

李鸿章、张公权、蔡元培、白杨等都曾居住于此!围绕御华山,是不可动迁的老洋房历史保护区域,保证了该地段不可再生属性,以及绝佳的视野!

御华山 稀缺性

根植于无可替代 土地基因!

项目地处南京西路、静安寺、淮海路交汇 “黄金三角” 地带!这里是上海公认的顶级商圈与文化地标集聚区,每一寸土地都承载着城市的繁华与文脉 ——

向西步行5分钟即达静安寺,千年古刹禅意与现代都市霓虹在此交融!向东毗邻南京西路CBD,恒隆广场、芮欧百货、上海商城等高端商业体林立!

全球奢侈品品牌、米其林星级餐厅、高端商务配套一应俱全!向北衔接静安寺历史文化风貌区,石库门建筑与老洋房,勾勒出上海独有的城市肌理!

仅52席顶奢孤品!

【御华山】仅有52席 大平层顶级公寓,目前只剩下6套!面积在327-407 平米之间,这在传统意义上上海市中心, 实属罕见!

目前房源不多,仅剩6席 先到先得!错过不再有!围绕 御华山公寓 是不可动迁老洋房历史保护区域!保证 该地段不可再生 属性,以及 绝佳视野!

所有御华山公寓,皆拥有无遮挡城市景观!位于华山路市中心黄金地段,与静安希尔顿酒店和静安宾馆 相邻!建筑高度 145米 ,为 超高层建筑!

——静安御华山销售热线:400-153-0352(24小时免费热线)——

【微信咨询:18816634698(复制添加)】

【温馨提示:为节省您的宝贵时间,来访看房请提前预约】

项目结构介绍!

外墙:双层可呼吸式节能玻璃幕墙+

艾多拉多金矿区 (El Dorado Gold)

花岗岩墩座

大堂:12米挑高+大理石墙面

电梯厅:挑高4.2米

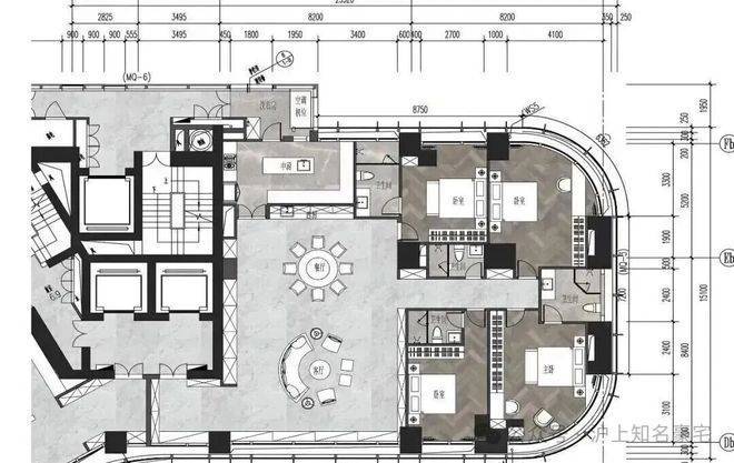
【户型简介】

A户型407.02㎡

B户型 327.60㎡

C户型737.91㎡

7-30F 一层 三梯两户

31-41F 一层三梯一户

HBA出品“华山汇”— 奢华会所

御华山 公共设施和客户服务体系!

由全球知名设计事务所,HBA操刀设计“华山汇”!近3000平方米私享空间,享受世界顶级圈层带来的社交特权!

200平米的圆桌宴会厅(可同时容纳30人,宴会厅配备齐全的后厨设备,可预约厨师上门烹饪)

500平米空中花园(可供举办烧烤或露天派对,独立SPA房间3间,恒温泳池;咖啡厅;健身房)

会所平面图

周边商业配套!

【十分钟生活圈——汇聚全球魅力潮尚生活】

【高端商场】久光百货、静安嘉里中心、芮欧百货

【高端超市】久光百货超市,静安嘉里中心 Ole精品超市

【5星级酒店】静安香格里拉璞丽酒店、宏安瑞士大酒店

【人文场所】静安区文化馆、蔡元培故居、张爱玲故居

【中心绿地】静安公园

【重点教育——四至范围卓越名校环伺】

高等院校:上海交通大学、上海理工大学、上海戏剧学院、上海音乐学院

中学:华东模范中学、上海市西中学、复旦中学

小学:上海市西小学

【高端医疗——先进医学专家健康陪护】

三甲医院:华山医院400米、上海市儿童医院2KM,复旦附属中山医院3KM

二甲医院:静安区中心医院2KM 、徐汇区中心医院1.5KM

737㎡内部实景!

参照纽约伦敦等国际级城市发展规律!

城市核心地段,总是单位土地产值最高地方,顶级服务配套最密集地方!也是租房空置率最低,物业价值最坚挺地方!

百年华山路 恒久塔尖资产

『御华山』

与 陆家嘴四季汇 外滩半岛公寓 齐名

沪上三大顶级公馆之一

衡复风貌区总裁公馆

建面 327㎡-407㎡ 大平层

总价 3094-4183万

实景现房 无需资格 即可购买!

自带约3000㎡私家会所

集健身 游泳 会客 私宴等功能!

——静安御华山销售热线:400-153-0352(24小时免费热线)——

【温馨提示:为节省您的宝贵时间,来访看房请提前预约】

全部

相关资讯

报名成功
稍后会有专业的置业顾问联系您
返回楼盘

频道导航

返回首页

看房小程序

APP下载

电话拨通后,请您手动拨打分机号

确定拨打电话

电话号码:

分机号:(可能需要拨分机号)