中天·樾青岚 售楼处电话 (2025年杭州临安区 中天·樾青岚 首页网站)-中天·樾青岚 楼盘详情-中天·樾青岚 营销中心

搜狐焦点荆门站

2025-05-29 21:40:00

购房群

买房如何避坑,加入购房群,看看他们怎么说

立即进群

中天·樾青岚-全城热销中

如果你有心关注这个项目 或是有想要上车的想法

欢迎拨打售楼处电话:400-018-7969 转 333(有专业顾问为您一对一讲解)

Buildscape

以筑为画

当有机会来到吴越文化的源流——临安,建造一座低密现代人居社区时,我们尝试回归当代人居生活的根本需求,在现代性与中国性的交织中来思辨生活演进和文化传承的关系。

——朱培栋

当代中国的居住建筑在二十余年的商品化发展中,经过舶来形式、高周转、同质化等不同阶段后,逐渐发展出了回应传统建筑文化的新型“中式”住宅。然而,在市场的推动下,“中式”日益成为脱离地域与文脉、更迎合购房者需求的泛化商品符号,它既是建筑的表现风格和形式,也承载着现代人对传统生活场景的追溯与想象。

随着中式民居的流行和商品化,中式符号也逐渐变得套路化、同质化,并在市场驱动下不断催生演变出不同风格的产品。其中,以宋代官式建筑为蓝本的“宋风”,凭借其简约、轻盈的特征,正成为商业和设计双重迭代驱动的最新版本之一。

中天·樾青岚「五彩墅」位于杭州临安区青山湖板块。临安,作为五代吴越国王钱镠的故里,是吴越文化的重要发祥地,为两宋时期古代杭州的城市繁盛奠定了基础。早在2000年初,当地政府就提出了将临安建设为吴越文化名城的战略目标,并对该区域内的建筑风格提出了相应要求。因此,当中天美好集团向我们发出设计邀约时,也对项目提出了具体的风格定位:中式、宋风。

在对场地和周边进行踏勘时,我们发现临安当地不乏前些年各类以“中式”为风格导向所营造的居住区,而与之匹配的则是向往郊区田园生活的、以养老度假为目标的居民群体,整体上呈现出沉稳的老派环境气质。这与近年来区域内政府主推的科技城产业导向,并为之引入的三十余所高校和科研院所所引流而来的青年的购房群体,在生活方式和审美取向上,都存在明显错配。如何处理关于风格的命题作文,使之与区域流入人口的需求和认知形成对应关系,成为建筑师实践的切入点。

我们在案例研究中发现,无论是早期的广义的“中式”风格,还是当前流行的“宋风”,大多数设计都倾向于从形式本身出发。或是延续把古建筑的部分构件符号化加以运用的思路,或是从《营造法式》等专业典籍寻找源头作更为系统的形式提炼和转译,其本质上仍是在古人实践基础之上的模仿和转化。

△ 目前市场上已有的“宋风”住宅

在面对业主对新一代居住产品的要求与政府对弘扬“宋韵文化”的规划期许时,我们试图探索一种新的“宋风”生成机制,在风格层面之外,探索传统宋韵的意象意境与现代生活场景之间的对话关系。因宋代建筑遗存极少,大量描绘有建筑及其山水环境和人物场景、且大多写实的宋画成为了我们的重要研究对象,而基于宋画的构图分解和意象、意境再现,以及对其人文精神的挖掘,成为了设计的切入口。

在北宋著名画家赵伯驹的经典山水画《江山秋色图》中,重山复岭间点缀着亭台楼阁、飞瀑激流与竹溪村路,生动展现了顺应自然、因形就势的建筑布局,以及小桥流水的园林造景。该画作不仅反映出了宋代文人所追求的深邃静谧、天人合一的空间意境,还体现了宋人不拘一格、用色丰富大胆的艺术精神。

△ 《江山秋色图》场景要素分析

《江山秋色图》采用传统工笔技法,是一幅横向展开的青绿山水长卷。画作通过“远近”结合的布局,展现出层次丰富的空间感:前景描绘水岸林木,船只错落;中景以青绿山峦和村舍为主,结构分明;远景则以云雾笼罩的山峦隐现,营造出深远而静谧的诗意意境。

中天·樾青岚-全城热销中欢迎拨打售楼处电话:400-018-7969 转 333(有专业顾问为您一对一讲解)

△ 《江山秋色图》构图分析和转译

我们从画作中汲取灵感,将这幅大气磅礴又细致入微的画面转译为空间布局,使绘画中无限延展的意境得以立体化呈现。在将散点透视的平面构图转化为可游可居的建筑空间时,我们结合人视与行走尺度,同样构成三种递进景别层次:临安的群山水景为远景,庭院飞瀑与山中村落为中景,山水松石为近景。

在公区入口,建筑师提取画中的山石、流水、楼阁、青松等元素意象,将之分别转译为建筑的基座、立面、屋面、景观小品等空间要素。“以筑为画”——以建筑的空间要素来重新绘就一幅“可实景体验的山水画”,并借助曲径通幽的动线设计进一步引人入画。在路径视角、环境感知的变化中,实现了画意与空间的第一步转换。

中天·樾青岚-全城热销中欢迎拨打售楼处电话:400-018-7969 转 333(有专业顾问为您一对一讲解)

△ 画作与场景的对应

△ 公区入口

穿过山石间的亭阁,豁然开朗的庭院则运用散点透视的手法,强调步移景异。重叠的山石、飞流的叠瀑、烟波缭绕的亭台,乃至台地缓坡之间的院墅,逐层铺展出前景至远景的画面层次。这不仅在尺度上形成了画意与空间的第二步转换,更让人产生置身于一幅可游可观的山水画卷中之感。

中天·樾青岚-全城热销中欢迎拨打售楼处电话:400-018-7969 转 333(有专业顾问为您一对一讲解)

在此,“中国性”的传达并非以造形出发,而是寻求“意”的情境再造,将绘画中的抽象意象转译为可感知的空间场域,以此回溯传统的诗意栖居。

中天·樾青岚-全城热销中欢迎拨打售楼处电话:400-018-7969 转 333(有专业顾问为您一对一讲解)

院墅建筑的体块和立面处理则跳出了以往由物及形的思路。我们尝试回到当代人居生活的原点,以采光、景观、庭院和露台的多样生活场景作为设计的出发点,由内及外地形成空间体型。在确保居住需求和现代生活场景的基础上,最大化露台和庭院的使用面积,满足现代居所对生态景观和自由松弛空间的需求。

△ 院墅体块分析

立面上则兼顾采光、景观效果与私密性需求。南侧和主要朝向采用大面积落地玻璃,北侧则通过布置楼梯电梯、次卫等次要功能区域以控制开窗面积,强化居住私密性。

中天·樾青岚-全城热销中欢迎拨打售楼处电话:400-018-7969 转 333(有专业顾问为您一对一讲解)

中天·樾青岚-全城热销中欢迎拨打售楼处电话:400-018-7969 转 333(有专业顾问为您一对一讲解)

我们借鉴了宋画中人物在建筑内、外及灰空间中的场景意象,通过现代空间语言,将其转化为现代居所中的多层级和立体化平台等设计要素,为院墅生活中最为动人的半室外庭院生活,营造出悠然自得、多元丰富的生活场景。

△ 宋画中的空间意象分析和转化

中天·樾青岚-全城热销中欢迎拨打售楼处电话:400-018-7969 转 333(有专业顾问为您一对一讲解)

△ 院墅墙身大样

屋面处理是中式及“宋风”建筑中最为关键的要素。有别于其他广泛沿用传统歇山顶或悬山顶的南方民居做法,我们在设计中结合现代住宅的遮阳挡雨需求,采用了双坡屋顶与金属格栅相结合的屋面系统。依据住宅单体的形态布局及综合关系,屋面将呈现不同朝向,从而从建筑群象的视角勾勒出鳞次栉比的传统民居聚落意象。

△ 屋面生成图

中天·樾青岚-全城热销中欢迎拨打售楼处电话:400-018-7969 转 333(有专业顾问为您一对一讲解)

出檐部分的单元化金属格栅,使建筑整体体量更显轻盈与丰富,同时兼顾露台的遮阳和私密性需求。

△ 单元化金属格栅的出檐部分

△ 格栅龙骨尺寸前后对比

宋代绘画中的色彩多以自然界的色彩为基础,借助矿物颜料和天然萃取色样,展现绘画景致的细腻层次和丰富变化。不同程度的青、绿、黄等色调在画作中广泛应用,并通过层次渐变营造画面深度与氛围。我们同样从绘画中逐级抽象,并最终提炼出更具代表性的“宋韵五色”,以石、金、木、瓷、瓦五种材质的色彩为基调,以稳重的深灰作为基底,形成灰、金、蓝6:3:1的经典配色,贯彻项目整体。

△ “宋韵五色”概念分析

中天·樾青岚-全城热销中欢迎拨打售楼处电话:400-018-7969 转 333(有专业顾问为您一对一讲解)

△ 公区立面色彩分析

“瓷”是宋代代表性材料之一,近年来也逐渐被应用于建筑和室内营造中。我们将其运用在建筑立面的屏扇处,大尺寸版幅由多条工业化瓷管拼接而成,呈现格栅样式,并按照铝板的斜向划分进行安装。

△ 瓷管格栅屏扇构造节点和拼接分析

青绿色瓷管经过多轮选材,最大程度保留青瓷的典雅质感,确保在自然光线下呈现温润的意境。金色型材作为点缀,镶嵌于建筑细节中,也增添了视觉层次和精致度。

中天·樾青岚-全城热销中欢迎拨打售楼处电话:400-018-7969 转 333(有专业顾问为您一对一讲解)

“石”,选择黑金砂是因为我们想要还原画作中的皴染技法。经过光面、毛面、荔枝面、自然面等多轮试样后,最终选择了凿毛拉槽的表面处理方式,来回应自然界的粗粝的山石质感。

中天·樾青岚-全城热销中欢迎拨打售楼处电话:400-018-7969 转 333(有专业顾问为您一对一讲解)

受限于消防要求,“木”选用的是耐久耐燃的仿木纹铝板。木材质感的表现是施工难点,通过手工反复擦涂,呈现出自然随机的木纹理。

△ 仿木纹涂料施工过程

中天·樾青岚-全城热销中欢迎拨打售楼处电话:400-018-7969 转 333(有专业顾问为您一对一讲解)

蓝色琉璃“瓦”的设计则源自宋画中的官式建筑。高光泽度的蓝色屋面光滑剔透,从高空俯瞰,靛蓝色瓦片铺展在建筑群间,勾勒出独具宋画意韵的现代居住群落景象。

宋代建筑成就精致,强调结构与细节的巧妙。在五彩墅的设计中,我们通过立面和构造的精细化设计,以当代材料和工艺的精致与巧妙的细节,既对话传统美学,也为现代居住体验赋予视觉和触觉的丰富感受。

△ 公区墙身大样

中天·樾青岚-全城热销中欢迎拨打售楼处电话:400-018-7969 转 333(有专业顾问为您一对一讲解)

中天·樾青岚-全城热销中欢迎拨打售楼处电话:400-018-7969 转 333(有专业顾问为您一对一讲解)

院墅的立面材质选择石材、铝材、玻璃为主体,辅以仿木纹涂料并嵌入发泡陶瓷线条,通过木作样式与木质质感的饰面表现,增添构造的层次感与品质感。

中天·樾青岚-全城热销中欢迎拨打售楼处电话:400-018-7969 转 333(有专业顾问为您一对一讲解)

中天·樾青岚-全城热销中欢迎拨打售楼处电话:400-018-7969 转 333(有专业顾问为您一对一讲解)

△ 院墅立面细部

中天·樾青岚-全城热销中欢迎拨打售楼处电话:400-018-7969 转 333(有专业顾问为您一对一讲解)

中天·樾青岚-全城热销中欢迎拨打售楼处电话:400-018-7969 转 333(有专业顾问为您一对一讲解)

宋代美学中的“旷”与“简”意境,正是当代人对山水自然和安逸生活的渴望和追求。宋代是中国古代文化的高峰,彼时宋人的不拘一格,丰富自由的表达在我们看来是“宋风”之中更值得敬佩与学习的那一面。在新的时代、新的生产力条件、新的工艺和审美之下,不被形式束缚,发现可与古人对话的新的情境,则是我们所寻求的目标。樾青岚「五彩墅」,以建筑为媒介,与历史对话,唤起对传统居住之道的思考;以屋苑为场域,安放日常生活,引发人们对生活本质的内在探寻。

技术图纸

△ 总平面图

中天·樾青岚-全城热销中欢迎拨打售楼处电话:400-018-7969 转 333(有专业顾问为您一对一讲解)

△ 公区一层平面图

中天·樾青岚-全城热销中欢迎拨打售楼处电话:400-018-7969 转 333(有专业顾问为您一对一讲解)

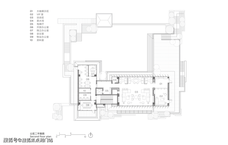
△ 公区二层平面图

中天·樾青岚-全城热销中欢迎拨打售楼处电话:400-018-7969 转 333(有专业顾问为您一对一讲解)

△ 公区立面图

△ 公区立面图

中天·樾青岚-全城热销中欢迎拨打售楼处电话:400-018-7969 转 333(有专业顾问为您一对一讲解)

△ 院墅立面图

△ 院墅立面图

中天·樾青岚-全城热销中欢迎拨打售楼处电话:400-018-7969 转 333(有专业顾问为您一对一讲解)

中天·樾青岚-全城热销中

如果你有心关注这个项目 或是有想要上车的想法

欢迎拨打售楼处电话:400-018-7969 转 333(有专业顾问为您一对一讲解)

全部

相关资讯

报名成功
稍后会有专业的置业顾问联系您
返回楼盘

频道导航

返回首页

看房小程序

APP下载

电话拨通后,请您手动拨打分机号

确定拨打电话

电话号码:

分机号:(可能需要拨分机号)