2025年5月,西房以总价16.2亿元竞得东新单元——杭政储出[2025]58号地块,折合楼面价41305元/㎡,溢价率约42%,项目名为“武宸府”。
先看规划,西房武宸府由6幢9-10F小高层和4幢6F叠墅组成,容积率1.8,共计172户。
户型方面,小高层户型面积191-210㎡,叠墅户型面积220-328㎡,目前户型图暂未公布。
欢迎拨打售楼处电话:400-018-7969转444(有专业顾问为您一对一讲解)
西房武宸府
再看区位,武宸府位于拱墅区东新板块,周边近距离范围内有新天地购物中心、3号线和4号线新天地街站及5号线西文街站,东侧临河,河对岸即为安吉路新天地实验学校,地段还是比较中心的。
目前项目处于在建中,计划年中左右首开,航拍照片仅作周边示意,非当前最新工程进度。

欢迎拨打售楼处电话:400-018-7969转444(有专业顾问为您一对一讲解)
25年10月航拍 拍摄@杭州寻屋

欢迎拨打售楼处电话:400-018-7969转444(有专业顾问为您一对一讲解)
产品层面,西房武宸府建筑立面材料预计以铝板、玻璃为主,并采用弧形转角设计,窗墙比较高,整体设计看着还不错。

欢迎拨打售楼处电话:400-018-7969转444(有专业顾问为您一对一讲解)
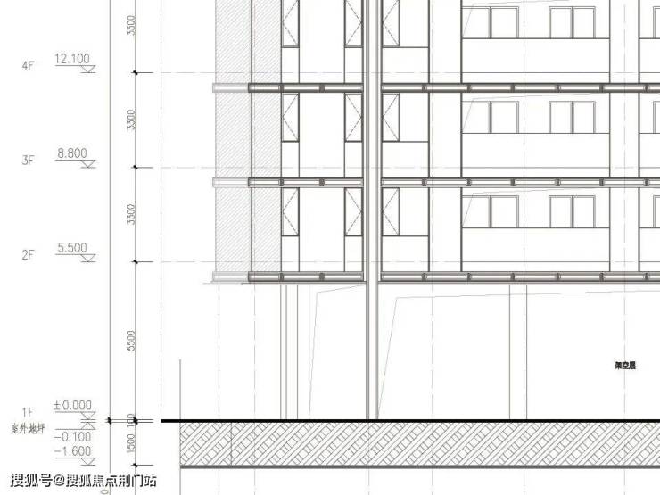
层高方面,小高层标准层高3.3米,层高标准不错,架空层高约5.5米。
欢迎拨打售楼处电话:400-018-7969转444(有专业顾问为您一对一讲解)
项目为局部抬板设计,公区规划包含下沉式庭院、会所、景观水系、室内恒温泳池、健身房、瑜伽室、风雨连廊等配置,主入口设置在小区西侧。
欢迎拨打售楼处电话:400-018-7969转444(有专业顾问为您一对一讲解)
总平图

欢迎拨打售楼处电话:400-018-7969转444(有专业顾问为您一对一讲解)
武宸府位于拱墅区东新板块中心区域,距离新天地购物中心约450米,距离乐堤港、嘉里城直线约3公里。
地铁方面,距离地铁3、4号线新天地街站步行约400米,此外,步行约700米还可至地铁5号线西文街站。
书包不错,东侧一路之隔为九年一贯制学校——安吉路新天地实验,此外,西侧还有观成武林小学及对口初中观成武林中学,具体学区需交付后以教育局公布为准。

欢迎拨打售楼处电话:400-018-7969转444(有专业顾问为您一对一讲解)
周边用地规划 制图
再看周边,武宸府周边整体以住宅、学校、商业办公为主,西侧为商业大平层绿城凤咏朝阳,北侧为规划商业用地,城市界面完整,整体居住环境已经比较成熟。

欢迎拨打售楼处电话:400-018-7969转444(有专业顾问为您一对一讲解)
市场方面,距离武宸府约400米处的西房宸鹭晴语轩目前挂牌价约5.2-5.4万/㎡,西房宸鹭晴语轩为限价时代产品,考虑配置差异,西房武宸府价格会更高。
此外,武宸府东侧约500米为1月底正式出让的博策东新地块,容积率1.5,楼面价33515元/㎡,目前项目方案暂未公示。
西房·武宸府-全城热销中
如果你有心关注这个项目 或是有想要上车的想法
欢迎拨打售楼处电话:400-018-7969转444(有专业顾问为您一对一讲解)
王炸户型均涉及
售楼处热线:400-018-7969转444(来电尊享售楼部优惠活动)
如有问题欢迎来电咨询,来电即可享受买房优惠!
预约来电尊享内部优惠,可预约案场内部销售人员,专业一对一热情服务,让您用专业眼光去买房。
【免责声明】
本搜狐号旨在与志同道合的同行交流、传递信息,为非营利性的知识分享,所刊载的所有文章内容,仅供参考使用,不构成任何专业意见或建议。阅读者在使用本搜狐号所提供的信息时,应谨慎对待并自行判断其适用性。
1.文章内容来源:本搜狐号所发布的文章,除非特别注明,大部分来自于作者的独立观点和经验分享,也可能引用自各种权威媒体、互联网资讯、书籍及其他公开渠道。对于这些内容的准确性和完整性,本搜狐号不作任何明示或暗示的保证。
2.素材使用:本搜狐号所引用的文章,已经注明来源和作者,因非全文引用,仅仅为作者为交流信息而做的提炼和总结,请求各种“互联网侵权”法律从业者放过,文章为交流信息而使用图片、视频、音频等多媒体素材,这些素材均来源于网络,其版权归原作者所有。如若侵犯了您的权益,请联系我们(18217267293),我们将及时予以更正或删除。
3.知识产权:本搜狐号的原创文章,版权归文章的作者所有。未经许可,任何个人或组织不得擅自转载、复制或用于商业用途。
4.外部链接:本搜狐号可能包含指向第三方网站的链接,这些链接仅为方便读者提供更多信息而设置。对于这些第三方网站的内容和隐私政策,本搜狐号不负任何责任。
5.合法免责:在任何情况下,对于因使用或依赖本搜狐号所提供的信息而造成的任何直接或间接损失,本搜狐号不承担责任。
6.内容变更:本搜狐号保留随时更改或删除任何文章内容的权利,恕不另行通知。
7.建议阅读:我们建议读者在遇到相关问题时,寻求专业人士的意见和帮助,以获取更加全面和可靠的信息。感谢您阅读我们的免责声明,继续关注我们的搜狐号,获取更多有价值的内容和信息。