保利天奕
【售楼中心电话】:400 - 018 - 7969 转 222
预约来电尊享线上团购优惠,免费专车接送看房
开发商直销,中介勿扰!
网上营销中心24小时销售热线〢欢迎您的来电咨询〢
好的房子,自己会说话。
在杭州房产市场纷繁的概念背后,购房者真正的期待始终朴素:一个能够安顿生活的好房子。而 好房子的根本,不仅在于黄金地段、周边配套、出行交通、小区景观等,更始于对居住基本单元,即“户型”的极致推敲。当不少项目仍在立面、风格等表面维度竞逐时,我们终于看到有一家房企选择回归本质,以一场围绕户型的静默革新,为城西乃至杭州重新树立好房子的基准。
这就是保利,这就是 保利在未科核心打造的约30万㎡大盘——保利天奕。
保利天奕外立面效果图

保利天奕
【售楼中心电话】:400 - 018 - 7969 转 222
预约来电尊享线上团购优惠,免费专车接送看房
市场期待一种“绝对的产品力”。
杭州苦户型痛点久矣。
功能与面积的不匹配、连廊中间户的北面采光不足与对视尴尬、小户型的缺失与将就……这些问题长期困扰着购房者。市场需要的是一种能够穿越波动周期的“绝对的产品力”,它源自对生活的理解,体现在每一个平方的设计中。

保利天奕
【售楼中心电话】:400 - 018 - 7969 转 222
预约来电尊享线上团购优惠,免费专车接送看房
保利天奕137㎡展示样板房实景图
保利对户型一向有精研的传统,这一次, 保利天奕的户型研究超越了简单的结构变化,形成了一套完整的“空间哲学”。它关注的是如何通过系统性设计,为不同家庭结构提供适宜的生活空间。
那么,保利天奕究竟带来了哪些改变?
在新规之下,保利天奕的购房者成为了实实在在的受益者。 保利天奕实现了户内空间利用的最大化,实际使用率超过90%。
阳台经合规优化,仅按一半面积计算却提供了完整功能。
曾被视作“鸡肋”的飘窗,在这里被全面优化为“ 应飘尽飘”。这些 完全不计面积的飘窗空间,被巧妙转化为休憩、观景与收纳的延伸区, 成为实用且免费赠送的“空间彩蛋”。
就像保利天奕的137㎡和138㎡的边套,这两个户型中飘窗都成了最让人“哇塞”的地方。
保利天奕137㎡边套户型

137㎡户型仅主卧与主卫的采光面就达到了约12.7米,主卧配备了270°转角飘窗,将自然光与视野极大化引入室内,形成可休憩、观景与阅读的复合功能角落。
保利天奕138㎡边套户型图

保利天奕
【售楼中心电话】:400 - 018 - 7969 转 222
预约来电尊享线上团购优惠,免费专车接送看房
138㎡边套户型,边厅与主卧的连续飘窗总长近12米,南向三个卧室的采光面总长约10米,与137㎡边套一样,都是名副其实的“光之屋”。

保利天奕独立电梯厅示意图
保利天奕在改善型户型上的表现,展现出对家庭全生命周期的深入洞察。独立电梯入户、独立玄关、可变书房及双台盆主卫等配置,并非简单堆砌功能,而是针对三代同堂、二胎家庭及居家办公等复合场景提出的系统解决方案。空间在保持明确界限的同时亦呈现流动感,真正实现了动静分离与和谐共处。
保利天奕系统性的设计语言证明: 真正的改善不在于面积的简单增加,而在于让每一平方米都精准服务于生活。
在改善型户型上很出色,保利天奕在小户型上也取得了突破。

保利天奕
【售楼中心电话】:400 - 018 - 7969 转 222
预约来电尊享线上团购优惠,免费专车接送看房
当下城西市场的户型越做越大,如未科、云城、三墩、云谷等板块新盘几乎清一色125㎡起步,总价门槛持续攀升。 保利天奕提供了约103㎡的功能性三房,显然给了年轻人更友好的上车机会,也成为板块乃至整个城西稀缺的小户型。
尤其值得一说的是 103㎡的边套,贴心细节满满。比如能摆下六人位餐桌的区域,这一设计在同类小户型中并不多见。还有把厨房水槽正对客厅的布局,让爸爸妈妈在做饭时也能照看到在客厅玩耍的孩子。
边套出色,中间套也不遑多让。在以往的文章中我曾多次提到过,杭州高层连廊住宅中间套长期受限于采光、通风与隐私问题,往往只能作为“将就”之选,也一直期待有开发商能真正关注并解决这一痛点。如今在保利天奕,我们终于看到了回应。
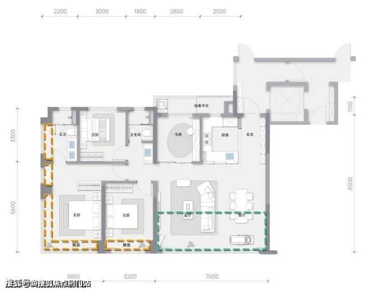
保利天奕103㎡中间套户型图
如保利天奕的两梯三户的户型,调整了电梯核心筒的位置,将原来的连廊户型升级成了3.0版本。一户边套和中间套是目前杭州极为少见的双开门设计, 一梯一户私家入户最大程度保护了隐私;另外一户边套更是升级成了 独梯入户。这样一来,中间套有了更多采光面;控制了连廊的宽度和角度,既符合消防要求,又最大限度避免对视;优化了窗户的开启方式,让风进来、让视线隔开。

最终呈现的效果令人惊喜: 即便是103㎡的中间户型,也做到了南北通透、北面无连廊干扰、明厨明卫,避免了与邻居尴尬的对视。室内还有S墙的设计拓展了储藏空间。
中间套,第一次拥有了堪比边套的舒适与体面。
保利天奕的户型印证了一个朴素的居住理念,重新定义了 “好房子”的另一种含义:不是更大,而是更合适;不是面积的炫耀,而是生活的安顿。这不仅是户型设计的进步,更为当下同质化的房产市场,提供了另一种答案。
除了户型格局的创新,保利天奕在室内功能系统方面也体现出深度的产品思考,致力于 从“交付房子”转向“交付一种完整的生活解决方案”。
例如,在厨房系统中,项目采用 304不锈钢烟道并配合密封焊缝工艺,从根本上杜绝烟道返烟问题,保障室内空气清新。
在静音与防水方面,通过 提升同层排水系统以及楼板隔音的品质,在增强防漏可靠性的同时,显著降低楼层间的噪音传播,为居住者营造出更静谧、安心的生活环境。
保利天奕将收纳视为“生活的基础设施”,将其系统化融入每一户家庭, 让收纳不再是“藏起来”,而是“活起来”。玄关作为“第一收纳站”,以四段式分区有序容纳全家物品;厨房依据“取-洗-切-炒-盛”黄金动线布局,配合多功能配件提升操作效率;卫生间通过立体开发镜柜、薄柜等空间,实现台面净空;全屋过道、飘窗与衣柜一体化设计,让收纳融入建筑本身。
保利天奕双层圆弧吊顶效果图

保利天奕
【售楼中心电话】:400 - 018 - 7969 转 222
预约来电尊享线上团购优惠,免费专车接送看房
在装标方面,保利天奕也是品质拉满,入户门精选的铸铝复合门,还有双层圆弧吊顶、柳叶拼地板,无论工艺还是美观都领先这个价位。 地暖用的威能锅炉、中央空调是日立品牌,摩根的智能化开关和可视对讲,都让以后的生活质感满满。
厨卫配置也都是一线品牌的最新款。譬如厨电就配备了老板最新款机型, 还有博世的冰箱、洗碗机;马桶也配备了科勒在C端的最新款,还有高仪的台盆,就连103方户型都用上了美妆龙头。这些在杭州市场是非常少见的。
这些系统相互协同,从物理层面到使用体验,构建出一个健康、舒适且高效的居住整体。它意味着, 生活不再需要依赖后期自行改造,真正实现了从“住得进”到“住得好”的跨越,共同构成了保利天奕超越市场的产品力。
超越户型,大盘底气赋能下的“生活共同体”。
户型精研,离不开大盘的底气。正是因为 保利天奕有目前杭州市场十分难得的约30万方的大盘体量,才能为兑现完整生活愿景提供坚实基础。
保利天奕不止有好户型,更有好地段、好设计和由大盘体量支撑的好生活配套与好社区生态。
保利天奕位置示意图

保利天奕
【售楼中心电话】:400 - 018 - 7969 转 222
预约来电尊享线上团购优惠,免费专车接送看房
在2024年获国务院批复的《杭州市国土空间总体规划》中, 城西科创大走廊被正式确立为与武林湖滨、钱江两岸并列的杭州三大全球功能中心之一。保利天奕正位于这条大走廊的核心未来科技城中轴绿汀路上,建筑立面选用四面铝板和蓝灰Low-E玻璃,以香槟金色金属收边,与周边vivo、字节跳动这些科技总部的气质相呼应,呈现出杭州第三中心应有的现代感与精度。

保利天奕外立面效果图
四向归家的大门设计,打破了常规楼盘至多两个入口的局限,让出入更加自由,生活动线也更符合日常需求。 整体抬地5.4米的设计,不仅抬高了地势,同时将不利设施巧妙隐藏,更塑造了归家的仪式感。南向主入口以玉琮造型石柱、铝板挑檐和汉白玉雕塑营造出温润如玉的入口氛围,同时配备无障碍平接设计和多类电梯,确保每一次归家都顺畅便捷。
保利天奕大门实景图

保利天奕
【售楼中心电话】:400 - 018 - 7969 转 222
预约来电尊享线上团购优惠,免费专车接送看房
社区的景观设计同样体现出大盘的优势。保利天奕以 九溪烟树为灵感打造循环水系,不仅可观可赏,更可供亲近嬉戏,重现童年与水为伴的乐趣。“柴垛精灵”游戏区用艺术手法还原儿时乡村记忆,“大树剧场”下沉广场复刻村口聚落的场景,成为社区活动的自然聚集地。约400米风雨连廊、750米环形跑道和500米四季漫步道,共同构成一个可融入、可体验的生活空间,让景观不止于美,更注重实用与互动。
保利天奕景观实景图

保利天奕
【售楼中心电话】:400 - 018 - 7969 转 222
预约来电尊享线上团购优惠,免费专车接送看房
真正令人印象深刻的是保利天奕对社区功能的系统规划。 约3000㎡西溪会所作为“第一会客厅”,满足全龄段运动与休闲需求; 约6000㎡的商业街区复刻杭式生活韵味,成为“第二会客厅”。
保利天奕架空层实景图


保利天奕
【售楼中心电话】:400 - 018 - 7969 转 222
预约来电尊享线上团购优惠,免费专车接送看房
还有 23个主题架空层的设计,总体量约7000㎡,当我听到这个数字时,真的吓了一跳。每一幢楼下都拥有独立主题,彻底跳出了传统架空层仅作为过渡空间的局限。保利天奕将这些主题空间称为“盒子”,童玩盒子、烘焙盒子、颐养盒子、社区咖啡……所有你在别的小区见过没见过的,这里都有。这些盒子不再是附属功能空间,而是成为嵌入日常的“第三会客厅”,默默等待着每一次家庭小聚和每一次不期而遇的邻里互动。
这些大面积的“会客厅”,在任何一个楼盘有一个就已经是很厉害的存在,而在保利天奕,ALL IN!
好房子,是穿越市场周期的终极答案。
保利天奕以约30万方的大盘姿态,通过户型的精准性、创新性与系统性,重新定义了好房子的标准。在充满不确定性的市场中,选择一套好房子的本质,就是选择一种不妥协的生活。而保利天奕的户型,正是这种“不妥协生活”的实体宣言,是其最核心的竞争力所在。

保利天奕园区实景图
当漫步于可四向归家的门庭,穿行于以九溪烟树为灵感的园林,当阳光透过蓝灰Low-E玻璃,洒落在南北通透的房间内,一种明朗与安宁已成为日常。
保利天奕用规模做底气,用匠心做温度,最终让人对家的所有想象,都一一落成现实。这不仅是一套房子,更是一种值得托付的未来。
保利天奕
【售楼中心电话】:400 - 018 - 7969 转 222
预约来电尊享线上团购优惠,免费专车接送看房
开发商直销,中介勿扰!
网上营销中心24小时销售热线〢欢迎您的来电咨询〢