苏州建发璟园
售楼处电话:400-002-9578转9999(已认证)
TEL:售楼处电话:400-002-9578转9999(售楼中心)
售楼处电话:400-002-9578转9999(认证营销中心)
免责声明:(本文章所用信息图片来源于网络,如有侵权请联系本网站及时删除)

根据规划,南区占地面积17723.6平,总建筑面积35531.39平,容积率1.15。项目拟建8栋4-6F住宅。
北区占地面积25398平,容积率1.2,项目拟建7栋6F-10F的住宅。

项目取法姑苏百园,打造“一轴一环两园十六景”的园林格局。南区借鉴可园“一泓池水”的精致典雅,打造方塘观鱼、玉溪春色等六景;北区取意沧浪亭的野逸疏朗,形成印沧浪、碧水环廊等八景。

建发璟园还打造了下沉庭院,南园会所以会客功能为主,营造室内高尔夫、影音室、茶室、私宴厅等私密体面的社交场景,创造家外之家的待客之道。北园会所聚焦运动健身,提供泳池、健身房、瑜伽室等活力运动场景。
叠墅官方户型出炉!面积段发布
从官方发布的信息来看,建发璟园打造了建面约210-255平低密叠墅,建面约150-180平臻境洋房。
目前项目已经公开了售楼处和示范区,其中叠墅户型已经出炉,洋房也发布了一种规划户型图!
建筑面积约252平上叠
独立门厅、独立入户、中西双厨、超大主卧、二层三个套房设计、星空露台。
建筑面积约225平中叠
中叠,不仅有地上、地下双入户门厅,而且更有270°空中庭院。
建筑面积约255平下叠
地下约6.1米挑高,约10.2米南向面宽,阔境横厅设计,套房主卧,独立卫浴、衣帽间。
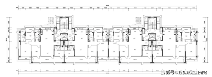
洋房规划户型
标准层为两梯四户 4房2厅3卫


4房2厅3卫的房屋套型,4开间朝南
客厅是大宽厅设计,开间为4.5米;
南北双阳台,南向阳台为三开间设计,开间达10.825米
北向还有一个阳台,可以纳入北次卧或用作生活阳台;
南向双套房设计,南向次卧套房(书房),不过为暗卫
主卧套房设计,有独立的卫生间和衣帽间,主卧的飘窗为L型,视野和采光更好;
周边界面不错!板块还有新项目
建发47号地块位于姑苏区金阊街道金门路北、馨泓路东。位置上来看其实还不错,周边基本都是住宅小区,居住氛围比较浓。而且项目周边还有一个项目在售,一个项目待售,算是姑苏区存货比较充足的板块。
周边配套来看,目前也是比较齐全的。
交通上,小区南面就是金门路,直接连接新区。西面靠近喜欢快速路,也是东西向大动脉。小区距离1号线桐泾公园站约1公里,往东一站可以换乘2号线。

商业上面,北面是来客茂时尚中心,吃喝玩乐可以一站式满足,此外,南面有彩香一村菜场,日常生活也是比较方便的!大型商业设施上面,东面是石路商圈,有天虹商场、石路步行街、华贸中心(在建)等。
教育设施上面,小区南面有金阊外国语实验学校、苏州市一中分校、第五中学等!
此外,项目周边还有金阊医院、苏大附二院等设施。
板块房价来看,其实很久没有别墅类入市了,板块上一个入市的项目是保利姑苏臻悦,该项目是洋房+小高层的设计,备案均价在4.7-4.8W,如果参照这个价格,你觉得这个项目值吗?
苏州建发璟园
售楼处电话:400-002-9578转9999(已认证)
TEL:售楼处电话:400-002-9578转9999(售楼中心)
售楼处电话:400-002-9578转9999(认证营销中心)
免责声明:(本文章所用信息图片来源于网络,如有侵权请联系本网站及时删除)