上海金茂·棠前售楼处电话:400-005-0788转6666(已认证)
上海金茂·棠前开发商电话:400-005-0788转6666【售楼中心】
温馨提示售楼中心〢预约尊享1V1品鉴礼遇〢匠心钜制-恭迎品鉴〢
温馨提示本项目暂不接受临时到访,过来参观样板房请记得提前来电预约!
金茂深耕高端住宅领域十余年,去年,金茂发布“金玉满堂”四大产品线。
“金茂”这两个字已代表一种身份认同,也代表一种生活方式,令众多改善客群心驰神往。
金茂棠前是“棠”系作品,代表“潮流、年轻、先锋”,更注重高颜值和实用性。
点击添加图片描述(最多60个字) 编辑

金茂棠前围绕“TOD国际汇合住区”,构建起全维超配的居住体验。
社区配置有约280米南北景观主轴+约220米东西副轴+下沉式会所+下沉庭院+部分楼栋首层架空+户型革新+科技系统,媲美千万级豪宅的公区和产品力!
点击添加图片描述(最多60个字) 编辑
大窗墙比+十字景观轴+下沉式会所,全维超配,引领北上海人居时代!
众所周知,买房的本质就是选择一种生活方式。
金茂深耕高端住宅领域十余年,去年,金茂发布“金玉满堂”四大产品线。
“金茂”这两个字已代表一种身份认同,也代表一种生活方式,令众多改善客群心驰神往。
金茂棠前是“棠”系作品,代表“潮流、年轻、先锋”,更注重高颜值和实用性。
点击添加图片描述(最多60个字) 编辑

①高颜值+高质感,产品力极强!
材质上,立面采用大面积玻璃、石材、暗金色铝板与部分涂料打造,整体浅米色与深灰色,形成“传统底色”与“摩登点缀”的高颜值立面。
大窗墙比让建筑外观更轻盈,也赋予室内通透效果。
同时,顶部收束为3.2米高的顶冠,形成向上延伸的视觉张力。
点击添加图片描述(最多60个字) 编辑

②极具辨识度的大门,邂逅尊崇归家仪式感!
社区大堂极具仪式感,未来会采用地下会所设计,入口采用三重弧形石材墙体+圆角幻彩穿孔顶,夜幕下如流淌的鎏金河流。
北入口社区大堂、下沉会所、下沉庭院与部分楼首层架空设计联合打造社区共享客厅,以折型风雨廊围合庭院空间,让业主的归家仪式感焕然一新。
点击添加图片描述(最多60个字) 编辑
③超长十字景观轴,城市与社区的叙事长廊!
项目以约280米南北主轴与220米东西副轴构建“十字绿网”,串联三大城市界面与组团绿地。
东西副轴串联6个主题口袋花园,以“里弄花园”为原型,通过水磨石铺装、镂空锈钢板景墙、攀援紫藤花架等元素,构建亲近自然尺度宜人的邻里交往空间。
点击添加图片描述(最多60个字) 编辑
④配备同级罕见的下沉式会所!
会所是财富的象征与身份的标签。从伦敦海德公园一号,到纽约哈德逊广场15号,再到上海汤臣一品,会所都是标配。
点击添加图片描述(最多60个字) 编辑
金茂棠前打造了一个对标千万级豪宅才有的下沉式会所,这里是圈层进阶的社交场,更是分享志趣和品味的绝佳之处!
点击添加图片描述(最多60个字) 编辑
会所设置有健身区、恒温泳池、私宴厅、茶室、儿童天地等多元功能。
项目打造了恒温泳池,非常贴心为低年龄段业主设计了独立儿童泳池,与主泳池分开,让小朋友享受畅游乐趣的同时确保安全。
点击添加图片描述(最多60个字) 编辑
点击添加图片描述(最多60个字) 编辑
点击添加图片描述(最多60个字) 编辑
会所沿着下沉庭院四周展开,将自然与松弛感带给社区。
点击添加图片描述(最多60个字) 编辑
02.推售信息
户型革新+金茂科技系统+超大附加空间,为业主高定个性化生活!
金茂棠前主力户型有建面约85、97、105、117、137、152、178㎡2-4房,多样空间选择,购房者可以根据预算及居住需求随意挑选。
三期加推10幢105平➕117平共60套。9幢137平➕152平共68套,12幢178平32套共160套,全面革新户型+超大附加空间+多重收纳空间+金茂科技系统传承,产品力遥遥领先!
点击添加图片描述(最多60个字) 编辑
点击添加图片描述(最多60个字) 编辑
建面约85㎡2房2厅1卫,做到了双开间朝南+3个飘窗+LDKB一体化设计,附加空间非常多。
入户设置玄关柜空间,创新S墙设计,预留内嵌冰箱空间,冰箱外移也解放了厨房空间。
该户型总价仅约400万级,非常适合单身青年或首置过渡!
点击添加图片描述(最多60个字) 编辑
建面约97㎡3房2厅1卫,户型三开间朝南、再加上“3个飘窗+双面阳台系统”,不管是采光、视野、通风、私密性,还是实用性都十分出色。
南向配置观景阳台+家政阳台,通过可分可合的隔墙实现“景观-功能”自由转换,阳台栏板采用全景玻璃,更大限度引入社区精彩景观视野。
玄关和厨房旁都打造了收纳空间,除了2个主卧,厨房也带飘窗,通过大量飘窗等附加面积提升尺度感!
点击添加图片描述(最多60个字) 编辑
建面约105㎡3房2厅2卫,做到了三开间朝南+4个飘窗+双面阳台系统+主卧套房设计+270°转角飘窗,该户型的居住体验、舒适度、尺度感,是同级别产品所无法比拟的。
足足2个阳台+4个飘窗,2个卧室,1个卫生间,1个厨房全部“扩容”,尤其是主卧270°全景飘窗的设计非常少见,未来窗外的胜境将一览无余。
飞机户型天然对空间的利用更充分,整个户型以客餐厅为中心点,自然延伸至各个功能间,室内几乎没有被浪费的过道面积。
点击添加图片描述(最多60个字) 编辑
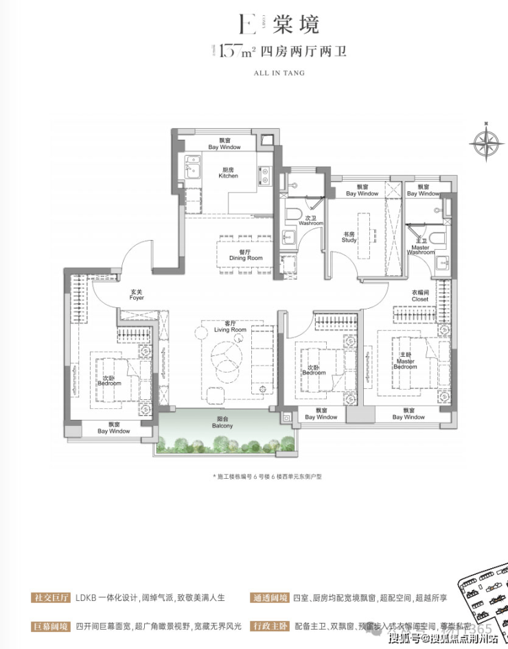
建面约117㎡3房2厅2卫,做到了3+1开间朝南+5个飘窗+主卧套房设计+270°转角飘窗,所有的尺度都有进一步提升。
客餐厅一体化设计,尺度不凡的客厅搭配宽景阳台,整个南向采光面非常大。
主卧带270°转角飘窗+卫生间,拥有寰宇级瞰景视野,让业主有更好的私密性和生活舒适度。
该户型是“一步到位”的大3房,无论是功能性还是尺度感,是北上海改善置换金字塔塔尖的存在,未来纵享长久板块发展红利!
点击添加图片描述(最多60个字) 编辑

点击添加图片描述(最多60个字) 编辑

03.版块信息
宝山站城融合TOD+双轨环绕,北上海超级TOD复合体,值得关注!
整个北上海的价值体系正在格局重构,大吴淞地区作为上海的北门户,未来价值预期也在不断拔高。
在这样的市场下,金茂棠前以刚需的价格买高质价比产品,真的太香了!
点击添加图片描述(最多60个字) 编辑
大吴淞地区将打造上海下一个世界级滨水城区,总规划面积约110平方公里,其中,吴淞创新城、北部枢纽、吴淞口国际邮轮港是重中之重。
北部超级枢纽以宝山高铁站为核心,建成后将成为上海第四大高铁站,将串联长江经济带,连接长三角、中三角、成渝地区,与虹桥枢纽相辅相成。(数据引用自“上海发布”《宝山高铁站将于今年正式开工》)
金茂棠前作为宝山站城融合TOD首发产品,未来将实现与高铁站的无缝衔接,承接北部枢纽一线辐射利好。
点击添加图片描述(最多60个字) 编辑
交通枢纽对周边区域的影响至深,是有迹可循的。
众所周知,大虹桥的势能之高,对青浦徐泾、闵行华漕等区域价值高度的提升 堪称造富神话 !
这种影响不仅体现在经济层面,还涵盖交通、产业、商业、居住等多个维度,全方位拉伸这些区域的价值。
在经历过一波市场低迷之后,大虹桥周边5公里左右的 品质次新房价格非常坚挺,轨交沿线的TOD次新房价格甚至更高。
点击添加图片描述(最多60个字) 编辑

相比普通楼盘, TOD综合项目本身也有较强的溢价能力 ,莘庄天荟、万科天空之城等TOD项目都已给出有说服力的结论。
更何况,金茂棠前是超级TOD复合体,跨时代的居住革新,未来价值不可估量。
点击添加图片描述(最多60个字) 编辑
更难得的是,金茂棠前还是上海外环外罕见的双轨交盘!
项目与19号线宝山站(在建)直线距离仅约700米,与3号线铁力路站直线距离约800米,通勤市区非常方便。
通过1号线,可直达静安大宁、人民广场、徐家汇等市区重要节点。
通过19号线,更是可以直达北外滩、陆家嘴、世博滨江、前滩等市区CBD。
这两条轨交线沿线皆是上海重量级板块,含金量非常高,将彻底打通项目及北部枢纽与上海市区之间的价值链条。
点击添加图片描述(最多60个字) 编辑
大吴淞地区的规划、开发、建设进入快车道,规划快速落地及兑现。
宝山高铁站、特钢区域180米超高层等地标、全开放式上大美院等相续开工建设;
宝山复旦科创中心已宣告启用,复旦大学12个工程技术研究中心的科技成果转化基地将相继落户。(信息来源:上观新闻)
这里正处在价值爆发的前夕,与上海TOP级“潜力股”发展红利绑定的机遇就在眼前,而金茂棠前就是更优秀解!
点击添加图片描述(最多60个字) 编辑
宝山高铁站是近年大吴淞地区乃至上海的重要工程,沪渝蓉铁路、沪苏通铁路二期及19号线(在建)等在此处汇集。
相关部门测算过未来客流规模,预计年客流量约5400万人次。(数据来源解放日报)
根据《大吴淞地区专项规划》,上海宝山站以枢纽商贸组团的设计定位存在,旨在打造“立体公园城市”。
点击添加图片描述(最多60个字) 编辑

高铁宝山站枢纽总建筑面积约48万㎡,其中,站前广场建筑面积约39万㎡,含酒店、办公、商业综合服务等业态。
合生汇宝山站项目总商业面积约11.5万㎡,其设计灵感也将充分融合高铁站六边形建筑元素。
点击添加图片描述(最多60个字) 编辑
这座逐步崛起的未来之城,未来将重点发展商务办公、科研以及居住功能,规划有商务办公楼、生态住区、学校、公园、文化场馆、科创产业园区等业态。
所以,北站枢纽未来有望成为北上海强劲龙头板块,而金茂棠前作为宝山站城融合TOD首发,可谓是近水楼台先得月!
点击添加图片描述(最多60个字) 编辑

上海金茂·棠前售楼处电话:400-005-0788转6666(已认证)
上海金茂·棠前开发商电话:400-005-0788转6666【售楼中心】
温馨提示售楼中心〢预约尊享1V1品鉴礼遇〢匠心钜制-恭迎品鉴〢
温馨提示本项目暂不接受临时到访,过来参观样板房请记得提前来电预约!
免责声明(本文章所用信息图片来源于网络,如有侵权请联系本网站及时删除)