苏州雅韵玖里售楼处电话▓:400-005-0788转接4444(售楼处已认证)
苏州雅韵玖里营销中心电话▓:400-005-0788转接4444【营销中心】
温馨提示:售楼中心〢预约尊享1V1品鉴礼遇〢匠心钜制-恭迎品鉴〢
免责声明:本文所用信息图片来源于网络,如侵权请联系本网站及时删除
一方面,地段条件非常好。
护城河以内的黄金位置,位于姑苏区莫邪路以东、后庄路以北,地处苏州古城核心区。文化地标环绕,与平江历史文化街区一河之隔,紧邻相门古城墙,周边遍布苏州大学、耦园等人文地标,文脉底蕴深厚。
西北侧就是苏州潮奢商业新地标仁恒仓街,集高端零售、餐饮、文化体验于一体。1、2、4、6号线环绕,多条主干道交汇,出行效率极高周边最近的朗诗相门绿郡二手房挂牌均价在5万左右,说明这个地段还是比较能打的。
另一方面,产品属性稀缺,只有94套科技别墅+洋房。
在寸土寸金的姑苏主城,容积率1.2的住宅项目极为罕见,保证了居住舒适度。项目仅规划5栋建筑,其中3栋6F洋房+2栋6F叠墅,总户数仅约94户,僧多粥少,就注定了它足够有热度,也不会愁卖。
项目主力户型都是大户型,直接瞄准了苏州的高端改善客群,另外还有朗诗科技系统赋能。
洋房户型
4房2厅2卫还带家政间
3房朝南,南向总面宽约14.6米
LDKB一体化设计,客厅开间约5米
外接8米双联阳台连接南次卧
主卧开间约3.6米,全屋多飘窗
3-4层中叠南向面宽约10.1米
首层南向套房+约6.5米大横厅
公区面积超50㎡
重点是带大面积空中庭院
超大赠送面积
另外,除了朗诗这个人气盘之外,今年姑苏区还有3大纯新别墅,共同组成姑苏别墅F4,扛起姑苏别墅的大迭代。
①平江护城河旁!3F联排、大面积洋房!高清户型图曝光...
苏地2024-WG-Z46号地块,案名为云栖海棠里,位于平江街道梅巷站附近,紧邻护城河,地块占地约1.18万㎡,也非常迷你,成交地价18022元/㎡。容积率低至1.05,为商住用地,自带商业配套。产品规划以低密度别墅为主,拟建9栋3F联排别墅和2栋8F洋房。
联排约228㎡户型(参考)如下
大面宽的设计,并且赠送空间非常可观
一楼客厅上方可以挑空,顶层带超大露台
洋房约179㎡户型如下
4房2厅3卫
南向四开间约15.2米面宽
南向双套房+南北双阳台
入户玄关,带家政间
客厅和南次卧外接大面积开敞双联阳台
主卧套房设计,全屋多飘窗

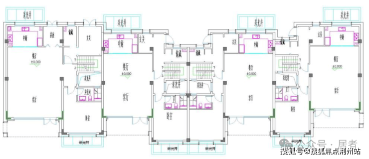
②只有27套!金门路mini别墅!容积率1.2,打造3F联排、洋房...
姑苏金门的雅韵久里,也就是苏地2024-WG-Z08号地块,位于姑苏区金阊街道桐泾北路西、东沁苑东。地块距地铁1号线桐泾北路站约800米,距2号线石路约1.4公里。地块由苏州瑞嘉商业发展有限公司于2024年7月竞得,拿地总价1.319亿元,成交楼面地价20,500元/㎡。
根据规划显示,项目拟建5栋住宅,包含4栋3层联排别墅和1栋7层洋房,占地面仅0.53万㎡,只有27套房。
项目已曝光的户型如下
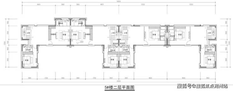
洋房(7号楼)
1梯1户,约17米南向面宽
南向双阳台分别为9.8米、3.9米
中西双厨带家政间,LDKB一体化设计
客厅开间6.3米,外接双联阳台
南向三房,其中双套房,主卧开间约3.9米
东边户4房2厅3卫
1梯1户,约12.8米南向面宽
三阳台设计,南向双阳台+东向阳台
开间分别为6.8米、3.9米、7.6米
中西双厨带家政间
南向三房,其中双套房,主卧开间约3.9米
首层高3.6米、二层高3.2米,三层高2.8米
以5#为例,南向面宽约12.5米、赠送面积非常多
③养育巷西纯联排!容积率仅1.01,姑苏低密王...
苏地2024-WG-Z43号地块,位于姑苏区沧浪街道养育巷西、瓣莲巷北,占地约1.3万㎡,地块非常迷你,容积率仅1.01,拟建8幢3F联排+1幢商业(带酒店)。
项目鸟瞰图如下:

总平面图如下:
项目拟建8幢3F联排+1幢商业(带酒店)。需要注意的是,这块地是商住混合用地,综合容积率1.01,也就是说住宅容积率更低,甚至可能低于1。

联排1层平面图如下:
四联排,带花园、地下室,地下室带南北采光井,客厅上空挑空,可改造空间大。

联排2层平面图如下:南阳台+北露台。

联排3层平面图如下:南北双露台。

苏州雅韵玖里售楼处电话▓:400-005-0788转接4444(售楼处已认证)
苏州雅韵玖里营销中心电话▓:400-005-0788转接4444【营销中心】
温馨提示:售楼中心〢预约尊享1V1品鉴礼遇〢匠心钜制-恭迎品鉴〢
免责声明:本文所用信息图片来源于网络,如侵权请联系本网站及时删除