武汉福星惠誉铂雅府售楼处电话:400-005-0788转6666(已认证)
武汉福星惠誉铂雅府开发商电话:400-005-0788转6666【售楼中心】
温馨提示售楼中心〢预约尊享1V1品鉴礼遇〢匠心钜制-恭迎品鉴〢
温馨提示本项目暂不接受临时到访,过来参观样板房请记得提前来电预约!
🛑24载福星惠誉 城心高定产品系
2024年,福星惠誉携全新产品系迭代而来,落子建设大道金融街,著极新一代城心高定产品系——全球首座铂雅府。
【项目概况】
开发商:福星惠誉控股有限公司
物业类别:普通住宅70年产权
物业公司:引入金钥匙国际联盟
点击添加图片描述(最多60个字) 编辑
点击添加图片描述(最多60个字) 编辑

【项目概览】
名称:福星惠誉·铂雅府
板块:汉口主城 江岸核心 建设大道 金融主轴
基因:“铂雅府系”城心高定产品系
产品类型:洋房、高层
即将加推3号楼
户型:103-135㎡,层高:54F
得房率:90-91%
🌿教育配套
配建武汉育才小学(新校区)
🌿商业配套
万象城商圈、菱角湖万达商圈、国广商圈、武汉天地商圈、西北湖商圈、CBD商圈6⃣大商圈环伺
『品牌观:城市中心立铂雅』
24载深耕履迹 引领城市人居焕新
点击添加图片描述(最多60个字) 编辑
武汉城市运营商 价值迭新驱动器
福星惠誉,立足本土,布局全国,实业为底,实干为基。始终以稳健的实力和担当,匠筑穿越时间周期的品质之作,成为城市更新与幸福生活服务商。
横向有建设大道、发展大道、解放大道三主干道,纵向有香港路、青年路、武汉大道等主干道,自驾到武汉三镇都很快捷;
直线距离约500米内,更是有3、6、7号线三地铁换乘的香港路站,公共交通出行同样便捷!
点击添加图片描述(最多60个字) 编辑
大区域内,商业、商务、公园、医疗、公共服务等顶级配置,名副其实的“汇聚一城繁华”。
商业方面,项目周边有武汉万象城、菱角湖万达广场、武汉天地壹方北馆、武汉新天地等知名商业,无论是接地气的、还是高大上的应有尽有;
商务方面,建设大道金融一条街,聚集着200多家金融机构,37家金融机构总部、集合了几乎武汉所有的中外资银行,还有多国领事馆、高级酒店和保险公司等;香港路沿线分布了香格里拉大酒店、浙商大厦为代表的写字楼群,同样是武汉的商务封面;
医疗方面,湖北省中西结合医院、长航总医院、武汉儿童医院、武汉市第六医院等均在项目附近,看病就医要多方便有多方便;
生态方面,解放公园、菱角湖公园、宝岛公园等即在周边,坐享城市繁华的同时,还能拥有城市级的生态景观;
点击添加图片描述(最多60个字) 编辑
城市中心合伙人 热销红盘缔造者
立足核心的择址观和前瞻性的规划,并屡创现象级热销。
点击添加图片描述(最多60个字) 编辑
『择址观:臻贵之萃归铂雅』
世界都会武汉 惟此金融静区
全球金融街旁 贵在金融谧境
唯有金融街旁浓荫谧境最矜贵。一方城央静界,全球高净值人群栖居所向。
点击添加图片描述(最多60个字) 编辑
造极建设大道 惟此金融静区
国际都市武汉,一条千亿建设大道,纵贯百年汉口之心。建设大道金融街,云集4大国有银行、5A甲级写字楼、超200家金融机构、多国领事馆和世界500强企业。
点击添加图片描述(最多60个字) 编辑
贵隐金融谧境 奢享6大顶配资源
集萃政金、商圈、人文、生态、交通、烟火六大顶级配套,定鼎城央谧境人居价值之极。
『人文观:百年人文映铂雅』
顶级教育加持 赋能城心豪宅
育才小学本部校区
投资约2.5亿打造武汉市育才小学,与现黄孝河路的武汉市育才小学整体办学,享受同等小升初对口待遇(根据2024年最新划片政策,对口武汉六初)。占地约1.6万m²,总建约3.4万m²,软硬件均高标准,架起的操场、室内活动空间、大型报告厅、图书馆、功能教室、餐厅、图书馆等多功能配套。
点击重试

点击添加图片描述(最多60个字) 编辑
『规划观:纯粹低密著铂雅』
都会低密境 奢隐浓荫里
低密于城
约30万方天际都会,约2.5主城罕见低容积率(北区组团)。
隐谧于世
洋房/小高层产品形态,独立私密居住氛围,稀缺之上再造稀缺。
灵感于奢
上海日清、HWCD、ONE-CU壹方等全球顶尖设计天团,融合世界级精粹资源,创著汉口城心首个准四代高定奢宅。
点击添加图片描述(最多60个字) 编辑
『产品观:高奢迭代琢铂雅』
汉口城心首个 高定准四代奢宅
雅奢建筑 类公建化美学立面
类公建化美学建筑,超阔光幕立面,领航汉口城心天际线。
点击添加图片描述(最多60个字) 编辑
逸奢园林 臻藏极致归家礼遇
循世界级高奢酒店灵感,以度假式生活场景,敬献圈层人物内外兼修、栖心静谧之域。
点击添加图片描述(最多60个字) 编辑

隐于烟火十字街区中的都市森屿
采用“流动自然"的生活模式,8大主题岛屿生活剧场,不同主题营造。
酒店式社区入口、归家水院和台地花园、儿童活动区和宠物乐园、多主题社交香氛花园、健身活动区、三大主题架空层。
点击添加图片描述(最多60个字) 编辑
四大岛屿会所 收藏圈层时光
分龄段设置童梦之岛、悦己之岛、茗仕之岛、清欢之岛四大主题空间。满足高端业主圈层娱体、品味、资源、社交等先锋生活需索。
点击添加图片描述(最多60个字) 编辑
双精装入户大堂 恭迎顶峯人物
首层+地下双精装入户大堂、独立电梯厅,雕琢归家质感,出入之间,皆能体验五星级酒店式贵宾尊崇礼遇。
点击添加图片描述(最多60个字) 编辑
领奢户型 汉口首个高定准四代洋房
南向四面宽境、百变高得空间、跑道级阳台、LDKG一体化超厅、超90%高得房率…对标顶豪尺度,遵循最优朝向,以城市引领者姿态,重定城心奢居典范。
点击添加图片描述(最多60个字) 编辑

『服务观:人生至此当铂雅』
金钥匙管家 专属高定礼遇
铂雅府引入拥有近百年历史的金钥匙国际联盟——服务王冠上的钻石,以顶奢酒店、豪宅服务标准,为业主定制铂金级礼遇。
点击添加图片描述(最多60个字) 编辑
点击添加图片描述(最多60个字) 编辑

该户型为3号楼中间户,南北半通透,北部房间对连廊。作为准四代住宅,该户型具有得房率高+设计灵活两大优势。
该户型南向大阳台+大花池,不仅拓展了室内空间,还大大提升了室内采光面,居住舒适度更上一层楼。
点击添加图片描述(最多60个字) 编辑

点击添加图片描述(最多60个字) 编辑

点击添加图片描述(最多60个字) 编辑
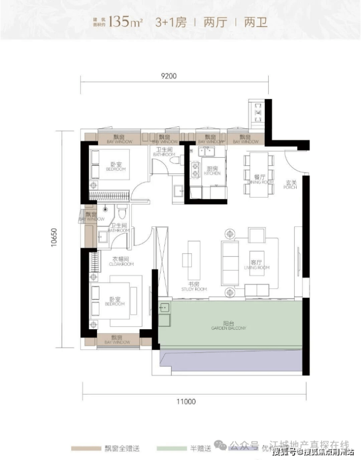
该户型为3号楼端头边户,南北通透,三开间朝南。
建面约135平,3+1房两厅两卫
该户型做到了三面空间可拓展,南向大阳台+大花池,提升了客餐厅的使用空间;5个飘窗可全优化,优化后房间整体更方正,空间感更强。
点击添加图片描述(最多60个字) 编辑

点击添加图片描述(最多60个字) 编辑

武汉福星惠誉铂雅府售楼处电话:400-005-0788转6666(已认证)
武汉福星惠誉铂雅府开发商电话:400-005-0788转6666【售楼中心】
温馨提示售楼中心〢预约尊享1V1品鉴礼遇〢匠心钜制-恭迎品鉴〢
温馨提示本项目暂不接受临时到访,过来参观样板房请记得提前来电预约!
免责声明(本文章所用信息图片来源于网络,如有侵权请联系本网站及时删除)