济南保利九宸赋
京仙林华曦府售楼处电话400-002-9578转接3333(已认证)
营销中心电话400-002-9578转接3333【售楼中心】
温馨提示:售楼中心〢预约尊享1V1品鉴礼遇〢匠心钜制-恭迎品鉴〢
252户型 最大靓点6.2米的挑高大客厅大露台,妥妥的豪宅院墅生活
首开预计有惊喜,看房记得联系
CBD片区A1地块——保利九宸赋

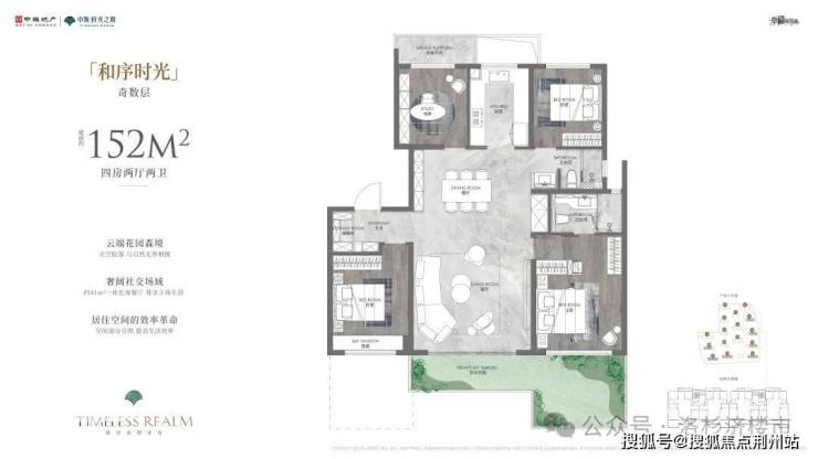
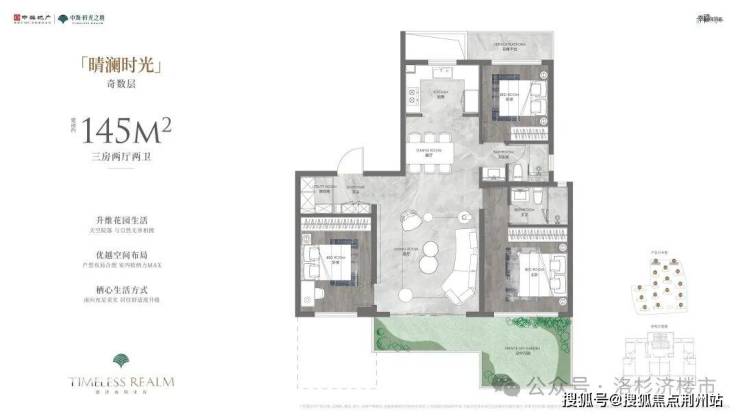
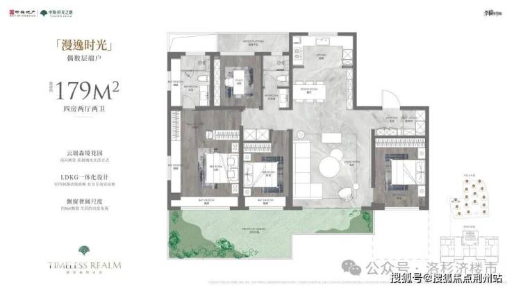
保利九宸府项目总共规划11栋住宅,其中5栋21-25F高层,6栋15-17F小高层,共614套,户均面积173㎡,绿建奖励+阳台+设备平台+架空层等地上不计容面积9602㎡,相当于每户增加15.6㎡的面积,每户平均得房率提升约9% 。中间核心的位置4#、6#、8#规划第四代宅。