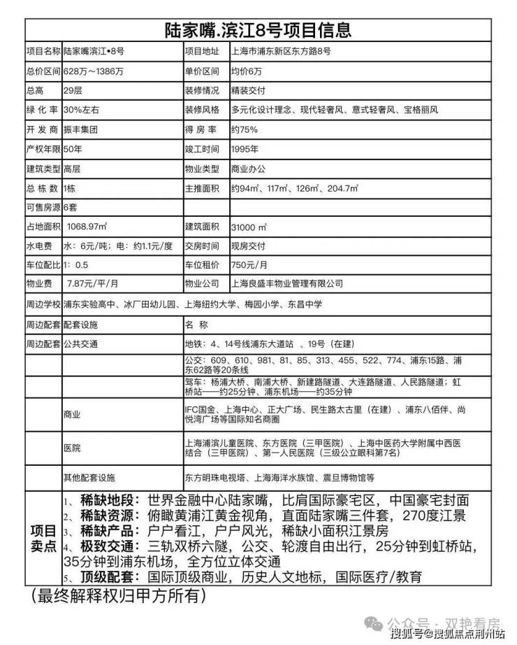
滨江8号(良丰大厦)
售楼处电话:400-002-9578转接5555【售楼中心】
售楼处电话:400-002-9578转接5555【售楼中心】
售楼处电话:400-002-9578转接5555【售楼中心】
温馨提示:网上售楼中心〢预约可享内部优惠〢匠心钜制-恭迎品鉴〢
温馨提示:网上售楼中心〢预约可享内部优惠〢匠心钜制-恭迎品鉴〢
陆家嘴核心CBD
双轨交地铁口约200米
与汤臣一品/九庐为邻
【滨江8号】
建面约87~121㎡精装公寓
总价约:568万~778万
不限购 低总价 线上预约





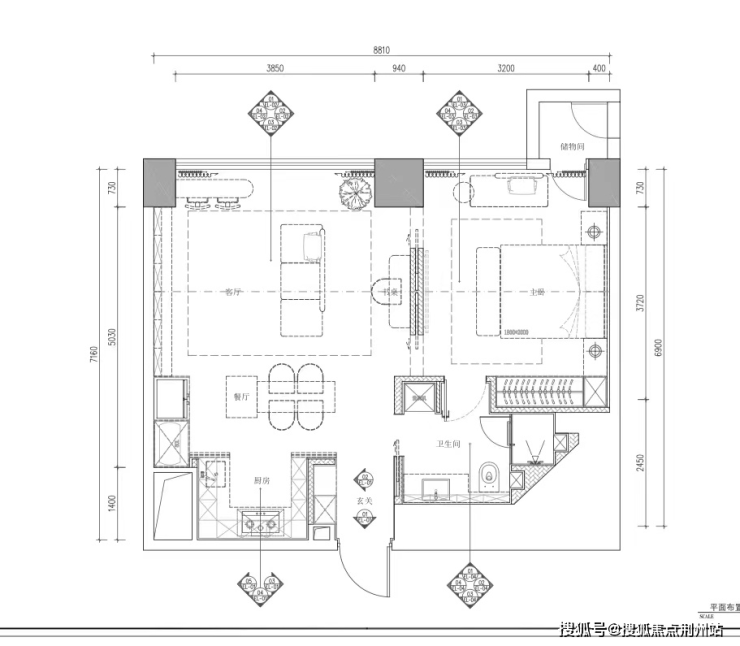
项目户型图及样板间

