🌈沈阳中海领馆壹号售楼处电话☎️400-002-9578转接5555(专人接听)
🌈沈阳中海领馆壹号营销中心电话:☎️400-002-9578转接5555【营销中心】
🌈温馨提示:拨打400电话,听到嘀声后,输入分机号5555即可!
顶级湖景豪宅!

这一重量级地块将打造9F四代宅洋房+3F合院别墅,容积率低至1.02,堪称吴中近年来最低密度的豪宅项目。目前已确定代建企业为「旭辉建管」。
项目亮点抢先看:
顶级产品规划
项目由9层四代宅洋房和3层合院别墅组成,洋房面积段为180-300㎡(套均230㎡,具体以售楼处为主),合院面积段为250-380㎡,整体定位高端纯粹,主打低密湖景豪宅。
2、顶配双会所体系
项目规划了架空层泛会所和下沉式高端会所,装修标准高达3000元/㎡起,品质感拉满。
3、超高得房率+户户花园庭院
四代宅洋房采用“空中游艇”般的流线造型,搭配全景舱式超大开间和赛博花园式的垂直森林设计,南北双花园、独立入户,尺度惊人。
4、一线湖景+三面环水
项目毗邻澹台湖景区,京杭运河在侧,三面水系环绕,容积率仅1.02,将打造一线湖景低密豪宅住区。
5、稀缺地段+未来潜力
地块周边70%以上土地为规划留白,未来将围绕澹台湖-大运河景观带,打造低密别墅集群+文化休闲综合生活带,与金鸡湖、独墅湖形成错位发展的“文化型顶豪板块”。
户型设计抢先曝光:
洋房户型
整体开间约23.8米,主卧开间4.5米,LDKB开间超10米,带超大空中庭院,北面大阳台开间7.3米,空间感十足。
合院户型
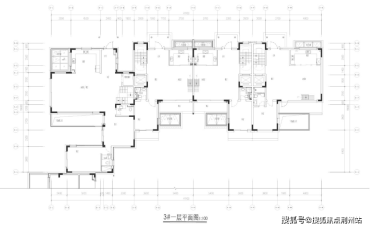
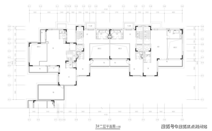
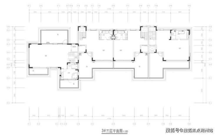
合院设计分为三层,面积段250-380㎡,拥有独立花园和露台,私密性与舒适性兼具。
小区两个出入口位于在小区东西两侧。

🌈沈阳中海领馆壹号售楼处电话☎️400-002-9578转接5555(专人接听)
🌈沈阳中海领馆壹号营销中心电话:☎️400-002-9578转接5555【营销中心】
🌈温馨提示:拨打400电话,听到嘀声后,输入分机号5555即可!
从洋房的效果图来看,旭辉四代宅的标志性风格,铝板+石材+玻璃的材质,「空中游艇」般的流线造型,搭配「全景舱」式超大开间,以及四代宅特有的「赛博花园」式的垂直森林设计,非常前卫。

根据地块要求,装标不低于3000元/平,面积不低于160平,总户数不大于220户。


配套资源丰富,静谧与繁华兼得
整个项目位于吴中核心区域,西至下田浜,南至商城大街,北至白云街,东至下田路,占地4.9万方。是去年10月份,南通市鸿远置业总价11亿竞得,成交楼面价21698.49元/㎡,溢价率0.46%。
周边配套齐全,包括碧波实验小学、碧波中学、龙湖天街等优质资源,生活便利。

🌈沈阳中海领馆壹号售楼处电话☎️400-002-9578转接5555(专人接听)
🌈沈阳中海领馆壹号营销中心电话:☎️400-002-9578转接5555【营销中心】
🌈温馨提示:拨打400电话,听到嘀声后,输入分机号5555即可!
再来看看户型设计,超高得房率、南北双花园、独立入户四代宅标配,尺度惊人。
31#洋房奇数层户型
整体开间约23.8米,主卧开间4.5米
LDKB开间超10米,带超大空中庭院
北面大阳台开间7.3米
31#洋房偶数层户型
与奇数层设计相差不大
只有客厅开间和露台位置不同
合院户型图如下
合院一层户型

合院二层户型

🌈沈阳中海领馆壹号售楼处电话☎️400-002-9578转接5555(专人接听)
🌈沈阳中海领馆壹号营销中心电话:☎️400-002-9578转接5555【营销中心】
🌈温馨提示:拨打400电话,听到嘀声后,输入分机号5555即可!
合院三层户型

🌈沈阳中海领馆壹号售楼处电话☎️400-002-9578转接5555(专人接听)
🌈沈阳中海领馆壹号营销中心电话:☎️400-002-9578转接5555【营销中心】
🌈温馨提示:拨打400电话,听到嘀声后,输入分机号5555即可!