苏州建屋新棠玥(售楼处) 官方网站首页 - 建屋新棠玥销售中心 - 环境 - 户型 - 价格 - 地址 - 楼盘详情 - 电话 - 配套- 电话 - 交房时间

搜狐焦点荆州站

2025-11-14 00:28:00

购房群

买房如何避坑,加入购房群,看看他们怎么说

立即进群

🌈苏州建屋新棠玥售楼处电话☎️400-002-9578转接5555(专人接听)

🌈苏州建屋新棠玥营销中心电话:☎️400-002-9578转接5555【营销中心】

🌈温馨提示:拨打400电话,听到嘀声后,输入分机号5555即可!

该项目还自带下沉式庭院会所,高端改善住宅的标准可见一斑!

根据规划公布的1#、6#、10#的标准层平面示意图,可见项目上的3种户型设计。

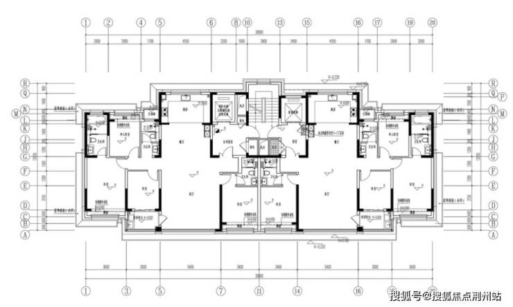
10#14F小高层标准层平面图:

从平面图来看,采用2梯4户的设计,3房2厅2卫布局,3开间朝南;客厅开间约4米;两个朝南卧室,一个北向卧室,全屋飘窗,其中,南向主卧套房设计,满足一家三口居住需求。

1#17F小高层标准层平面图(建面约175㎡):

该楼栋是2梯2户的设计,每户都有独立的入户玄关,户型采用4房2厅3卫的布局,4开间朝南,客厅开间约5.4米;三卧室朝南,其中两个套房卧室,可满足三代同堂的居住需求。

🌈苏州建屋新棠玥售楼处电话☎️400-002-9578转接5555(专人接听)

🌈苏州建屋新棠玥营销中心电话:☎️400-002-9578转接5555【营销中心】

🌈温馨提示:拨打400电话,听到嘀声后,输入分机号5555即可!

6#16F小高层标准层平面图(建面约215㎡):

该楼栋同样采用2梯2户的设计,户型也是4房2厅3卫的布局,与1#的区别在于,该户型为市面上比较流行的大横厅,客厅开间约6.9米,外接10.2米双联阳台,5开间朝南,南向双套房,有改善购房的需求者可以去看看。

地块规划要求—装修标准不低于2000元/㎡且不高于5000元/㎡,装修水准比较高。

从项目的地段来看,周边配套相对完善。

周边拥有文荟商业街、翰林缘邻里中心独墅湖医院、独墅湖风景区等各类资源配套,可满足居民日常生活所需。

交通方面,除了独墅湖大道、星塘街等交通要道,西侧有轨交8号线,与3号线在线网中构成“组合环”。可以快速抵达苏州中心、圆融时代广场等园区高端生活配套。

教育方面,地块周边有苏州工业园区文景实验学校、苏州工业园区斜塘学校等。同时,毗邻大学城。

值得关注的是,根据园区用地最新规划调整,该项目斜对角将诞生6宗住宅用地容积率≤1.8,未来很有可能将打造洋房、小高层产品。形成改善居住区。

🌈苏州建屋新棠玥售楼处电话☎️400-002-9578转接5555(专人接听)

🌈苏州建屋新棠玥营销中心电话:☎️400-002-9578转接5555【营销中心】

🌈温馨提示:拨打400电话,听到嘀声后,输入分机号5555即可!

全部

相关资讯

报名成功
稍后会有专业的置业顾问联系您
返回楼盘

频道导航

返回首页

看房小程序

APP下载

电话拨通后,请您手动拨打分机号

确定拨打电话

电话号码:

分机号:(可能需要拨分机号)