天津建投滨海雲阙丨天津【建投滨海雲阙】售楼中心电话丨建投滨海雲阙欢迎您丨售楼处楼盘详情

搜狐焦点荆州站

2025-11-07 03:12:00

购房群

买房如何避坑,加入购房群,看看他们怎么说

立即进群

天津建投滨海雲阙

售楼处电话:400-002-9578转9999(已认证)

网上销售中心——24小时在线咨询TEL——恭迎品鉴!

-----------欢迎来电预约尊享专业顾问讲解一对一服务!

免责声明:(本文章所用信息图片来源于网络,如有侵权请联系本网站及时删除)

2023年12月,滨和地产与经开区城更联合体以6.744亿底价摘得了津滨开(挂)2023-4号地块,成交楼面价为13701元/平米。

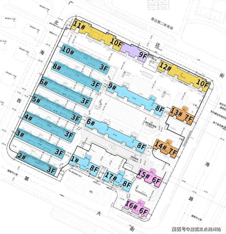
规划显示,该项目是一个非常低密的社区,为联排+洋房,共有17栋楼。

地块整体呈东高西低布局, 联排主要位于地块西侧,有7栋楼,均3层到顶。

洋房位于地块东北侧,有10栋楼,分别6、7、8、9、10层到顶。

全架空设计,绝大部分楼栋均带小院。

洋房,有超大露台设计,部分楼栋还是三面环绕式露台。

项目住宅建筑面积为48731.79平米,容积率为1.3,共计有328户。

粗略计算,户均面积约为149平米。

肉眼可见,这又是一个开发区的新豪宅。

另据了解,格调二体南项目,是开发区最新出现新盘中,产品最为丰富的!

预计最大面积将突破300平米。

而且户型空间有很大的改造性。

02

如今,开发区的四代宅还未入市,就燃起了火药味。

一个比一个大户型配置多。

建投滨海雲阙一期,大平层280平米,仅有一栋楼。

建投滨海雲阙效果图

紧随其后,绿城凤麟泰岳最大266平米户型,规划了两栋楼。

天津建投滨海雲阙

售楼处电话:400-002-9578转9999(已认证)

网上销售中心——24小时在线咨询TEL——恭迎品鉴!

-----------欢迎来电预约尊享专业顾问讲解一对一服务!

免责声明:(本文章所用信息图片来源于网络,如有侵权请联系本网站及时删除)

全部

相关资讯

报名成功
稍后会有专业的置业顾问联系您
返回楼盘

频道导航

返回首页

看房小程序

APP下载

电话拨通后,请您手动拨打分机号

确定拨打电话

电话号码:

分机号:(可能需要拨分机号)