杭州越秀运河樾
🌈🔥售楼处电话 ☎️400-005-0788转接3333 【售楼中心】【已认证】
🌈🔥营销中心电话 ☎️400-005-0788转接3333 【营销中心】【已认证】
🌈🔥售楼中心🌈🔥〢预约尊享1V1品鉴礼遇 🌈🔥〢匠心钜制-恭迎品鉴〢
免责声明【本文所用信息图片来源于网络,如侵权请联系本网站及时删除】
项目立面采用东方雅奢风格,以东方气韵和现代雅奢为主旋律,巧妙融合运河文化进行演绎。以官船为原型,结合歇山叠层屋面,轻构瘦金体建筑骨架;建筑线条概念,以风帆为构件,利用铝板折弯挑檐,横向构造建筑水线,选用石材、铝板、玻璃幕墙、陶板、景泰蓝奢石打造。其中水纹金属格栅、琉璃釉面蓝色陶板与景泰蓝奢石的应用,呼应运河文化主题,实现建筑风格与地域文化的结合。


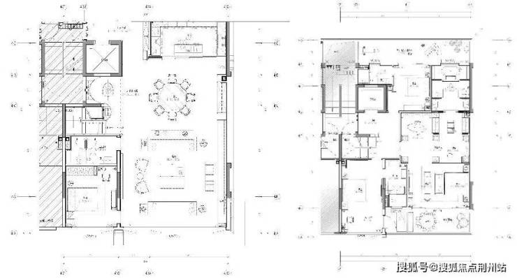
项目主力户型面积段约270~320㎡,包含下叠、中叠、上叠三类产品。户型设计包含私家电梯、庭院、空中花园、地下室及露台等功能空间,不同户型的空间附赠比例不同:下叠实得率140%—150%,得院率81%—90%;中叠实得率132%—138%,得院率14%—19%;上叠实得率179%—183%,得院率95%—124%。附赠空间可用于拓展生活场景,增强空间使用的灵活性。


项目精装设计注重材质选择与工艺细节:采用天然石材、木饰面及实木地板等材质,通过不同材质的搭配体现设计精度;工艺上运用无缝与隐形式设计,增强空间的纵向延伸感;空间布局优化传统客厅功能,打造开放式社交空间,兼顾圈层交流与家庭使用需求。




主入口横向延展面达90M,门头采用庑殿形制,以大规格金色金属对称式屋顶,强化归家礼序,立面以透光碧玉奢石呼应“天青”之美,结合星空闪耀的流水景墙,打造“光之水韵”,共同还原古运河形态;中轴景观以“引水入园、枕水而居”为核心理念,引入一条运河入园、联通整个中心轴线,从西而动,打造一轴四处运河之源的场景;在入口位置结合下沉庭院打造会所、健身、泳池、私宴等配套功能,形成多维立体的共享空间。





杭州越秀运河樾
🌈🔥售楼处电话 ☎️400-005-0788转接3333 【售楼中心】【已认证】
🌈🔥营销中心电话 ☎️400-005-0788转接3333 【营销中心】【已认证】
🌈🔥售楼中心🌈🔥〢预约尊享1V1品鉴礼遇 🌈🔥〢匠心钜制-恭迎品鉴〢
免责声明【本文所用信息图片来源于网络,如侵权请联系本网站及时删除】