🚩上海 澐启滨江
🚩澐启滨江售楼处电话:☎400-133-5355【营销中心】
🚩澐启滨江售楼中心电话:☎400-133-5355【已认证】
澐启滨江三批次推售的5号楼,是沿江首排楼栋中的中间楼栋,坐拥社区核心观景位,产品涵盖三种尺度,满足塔尖人士的不同收藏需求:
2-14层:13席226㎡滨江大平层,总价约2500-3300万。
15-27层:13席286㎡全景舱户型,总价约4500-5500万。
28层:仅1席510㎡天际顶复,总价约1亿元。



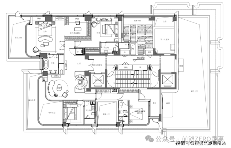
510㎡天际顶复拥有270°无界环幕视野,南向全落地采光大窗,西侧双露台分别连接客餐厅和会客厅,东侧露台更设计了悬浮露天泳池,直面黄浦江世界水岸。

510㎡户型空间秉承“世界级一户一定制”理念,四个卧室均为全套房设计,主卧总统套可实现三面看江。
可自由定制的“X空间”,通过减少承重墙的设计,可以根据家族需求自由定义每个房间的功能。
同时提供从艺术家联名的入户门把手到可选石材背景墙等多种装修选项,满足个性化审美需求。

对于226㎡户型,其主打一线滨江大平层稀缺资源占有,与286㎡户型结构相似、装修风格统一。该户型不仅能欣赏江景,还能沉浸式享受小区园林景观,总价2500-3300万,入手门槛相对较低。
而286㎡户型则是顶豪黄金面积段,拥有三面看江的顶级视野,约16平方米的开敞阳台是新规下的顶配尺度,可称之为“孤品级产品”,总价控制在4500-5500万之间。

🚩上海 澐启滨江
🚩澐启滨江售楼处电话:☎400-133-5355【营销中心】
🚩澐启滨江售楼中心电话:☎400-133-5355【已认证】