三亚国寿嘉园逸境
售楼处电话:400-002-9578转9999(已认证)
TEL:售楼处电话:400-002-9578转9999(售楼中心)
售楼处电话:400-002-9578转9999(认证营销中心)
免责声明:(本文章所用信息图片来源于网络,如有侵权请联系本网站及时删除)
开发投资商:国寿(三亚)健康投资有限公司
占地面积 :约178亩
建筑面积:约10.4万平方米
容 积 率:约0.6
绿 化 率:约46%
产权年限:40年
总户数:低层联排酒店200户、多层酒店92户、酒店主楼174套
物业公司:国寿物业管理有限公司三亚分公司
物业费:多层酒店/酒店主楼12元/平米;低层联排酒店15元/平米
配套:药膳餐厅、酒吧、泳池、网红打卡冲浪池、恒温按摩泡池、儿童乐园、健身运动区、会议中心等
【周边配套】
国家海岸——中国唯一个国字头命名的湾区
稀缺资源——典藏林、河、岛、海、泉,5重自然资源
畅捷交通——国家海岸海棠湾林旺片区,项目周边交通便利,海南环岛高速、林旺南路、通海大道等,项目距离海边1000米,项目距离301医院2公里,到达市区以及凤凰机场车行大约30分钟,到达南田温泉大约10分钟车程,免税店大约10分钟车程
顶级生活——32家五星级酒店、3座高尔夫球场、万达影城、南田温泉等
千亿配套——三亚海棠湾免税购物中心、铁炉港游艇码头、人大附中、亚特兰蒂斯、海昌梦幻不夜城、保利财富论坛,中国人民解放军总医院海南医院(301医院)
【项目配套】
1、养生度假酒店
全海南岛唯一一个全套房养生度假酒店,总建筑面积约6万余㎡,200间全套房设计,户户配置8米超长景观阳台。设计风格融合现代简约与传统中式,宽敞舒适的双卧、三卧套房面积从90-122平米不等,并可提供管家服务及私人医疗护理服务,满足各类型客户多样化需求。酒店设有各种特色套房:经络调养套房、商务套房、睡眠调理套房、家庭套房、亲子套房、痛风理疗套房、美颜美肌套房等满足全家出行需求。

2、健康管理中心
约12000㎡健康管理中心,由健康管理中心、体检中心、互联网医院、康复医院组成,积极引进国内外优质的医疗健康管理资源,从建立健康档案、专家咨询评估、深度健康体检、健康方案定制、健康管理追踪等多方面,为客户提供全过程、系统的健康管理、康复疗养服务。让大家在这里度假、生活的同时,健康、慢病得到更好的管理及改善。
3、健康步行街
建面约8000㎡健康步行街,引进国内国际先进、高端医疗技术资源、中医和健康管理机构,包括医学抗衰中心/皮肤管理中心/功能医学中心/中医养生体验馆/生命银行/养生堂御品膏方/血液净化中心/心灵会等,为会员提供完整的全身心的健康检测、健康管理与调理调养服务,并提供贴身健康管理服务。

【合作资源】
与海南本地医疗机构强强联合,成为中国人民解放军总医院海南医院(301医院)、三亚市人民医院、三亚市中心医院医联体单位
【在售产品】
1、低层联排酒店
销售价格:均价1400-1450万/套
建筑面积:128.4㎡
使用面积:425㎡
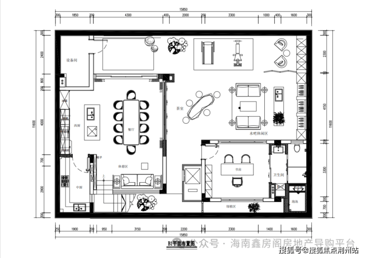
户型图



三亚国寿嘉园逸境
售楼处电话:400-002-9578转9999(已认证)
TEL:售楼处电话:400-002-9578转9999(售楼中心)
售楼处电话:400-002-9578转9999(认证营销中心)
免责声明:(本文章所用信息图片来源于网络,如有侵权请联系本网站及时删除)