苏州雅韵玖里
售楼处电话:400-005-0788转接7777(官方认证)
营销中心电话:400-005-0788转接7777【售楼中心】
温馨提示:售楼中心〢预约尊享1V1品鉴礼遇〢匠心钜制-恭迎品鉴
免责声明:(本文章所用信息图片来源于网络,如有侵权请联系本网站及时删除)
项目即苏地2024-WG-Z08号地块,位于姑苏区桐泾北路西、东沁苑东,占地0.53万㎡,体量非常小,粗略估计仅28套。
鸟瞰图如下:

容积率1.2,拟建5栋3-7F住宅,其中4栋3F联排,及1栋7F洋房,小区在桐泾北路设有出入口。
总平面图如下:

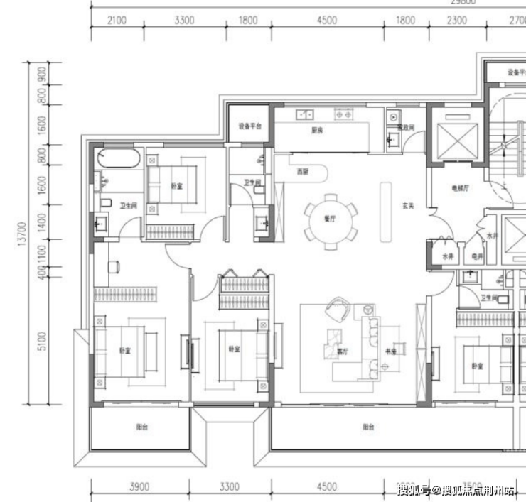
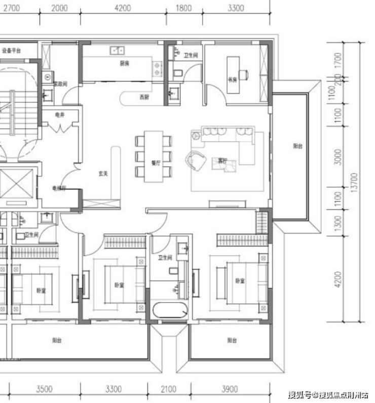
7#洋房标准层平面图如下:同步曝光2个户型,2梯2户。



7#南立面图如下:层高3.05米。

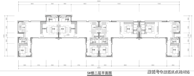
5#4联排一层平面图如下:同步曝光1个户型,南向面宽约12.5米。



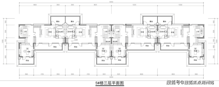
5#联排立面图如下:首层高3.6米,二层高3.2米,三层高2.8米。

交通方面,地块距地铁1号线桐泾北路站约800米,距2号线石路约1.4公里。商业方面,地块近石路商圈,还可通过地铁直达山塘街、观前街等。周边还有苏州第五中学、金阊实小、金阊外国语等教育资源。
旁边就是保利姑苏瑧悦(拿地价27562元/㎡,备案价4.6万+/㎡),以及建发璟园(拟建8幢4-6F宋风纯叠墅)。
古城又一纯新盘待售,低密别墅精致社区,未来入市价格可以期待一下~
苏州雅韵玖里
售楼处电话:400-005-0788转接7777(官方认证)
营销中心电话:400-005-0788转接7777【售楼中心】
温馨提示:售楼中心〢预约尊享1V1品鉴礼遇〢匠心钜制-恭迎品鉴
免责声明:(本文章所用信息图片来源于网络,如有侵权请联系本网站及时删除)