苏州沁沄居售楼处电话▓:400-005-0788转接4444(售楼处已认证)
苏州沁沄居营销中心电话▓:400-005-0788转接4444【营销中心】
温馨提示:售楼中心〢预约尊享1V1品鉴礼遇〢匠心钜制-恭迎品鉴〢
免责声明:本文所用信息图片来源于网络,如侵权请联系本网站及时删除
今天,甪直苏地2024-WG-Z23号地块正式公布案名——沁沄居。
约1.02的容积率甪直史上最低,也是目前唯一孤品纯别墅,据规划全盘只有18栋3F联排别墅与8栋6F叠墅,别墅含量100%,是目前当之无愧的甪直墅王。
项目规划显示,社区将采用中轴对称式布局,两面环水,在北侧南厍路和西侧经六路上分别设置地库和人行出入口,定位为高端社区。

户型设计上,沁沄居也做了一些差异化亮点,比如联排标志性的“内外双庭院”设计,在当前苏州别墅新房市场较为稀缺。叠墅也都是大开间的平层化设计。
目前已曝光户型如下:
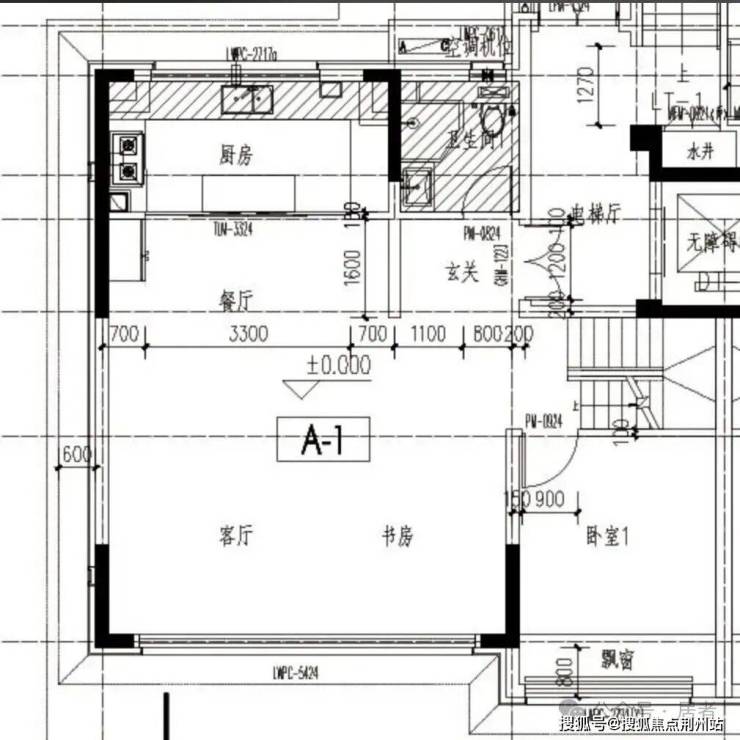
2#联排边户↓
一排四户,一层层高3.6米,二三层高3.3米
南向面宽大约12.7米
书房与客厅开间约8.1米
带一个大概7-8㎡的内庭院,可以自由发挥~
另外联排1F应该还带有一个约40㎡左右的外部庭院

15#联排边户↓
一排四户,一层高3.6米,二三层高3.3米
南向面宽约10米,客厅开间6.6米
同样是带一个大概7-8㎡的内庭院
另外带有一个约40㎡左右的外部庭院

28#叠墅边户↓
一梯两户,一层高3.25米,二层高3.05米
南向面宽约10米,横厅开间6.6米
一层一厅,动静分离,格局很舒服
地段配套方面,项目坐落于吴中区甪直镇甫澄路西侧、南沙路南侧,周边生活配套成熟。教育资源上,3公里内涵盖叶圣陶实验小学、人民教育出版社附属实验小学及甪直甫里中学等19所幼儿园、2所小学、3所中学。
商业与医疗配套完善,麦稻星光商业广场、万嘉生活广场等7大商场及甪直人民医院等13所医疗机构环绕。
交通层面,虽无地铁直达,但69个公交站点遍布周边,邻近东方大道及甪直南高速入口,出行便捷。
这块地,于2024年由苏州市斜港置业与苏州甪直房地产开发有限公司联合竞得,成交楼面价12000元/㎡。此前,甪直万盛江南打造的叠墅+洋房业态,备案价约2.9万元/㎡(二者楼面地价差不多)。
苏州沁沄居售楼处电话▓:400-005-0788转接4444(售楼处已认证)
苏州沁沄居营销中心电话▓:400-005-0788转接4444【营销中心】
温馨提示:售楼中心〢预约尊享1V1品鉴礼遇〢匠心钜制-恭迎品鉴〢
免责声明:本文所用信息图片来源于网络,如侵权请联系本网站及时删除