🏡✅【苏州】天房美瑜华庭
🏡✅天房美瑜华庭售楼处电话☎️400-133-5355【售楼中心】【官网认证】
🏡✅天房美瑜华庭营销中心电话📞400-133-5355【营销中心】【官网认证】

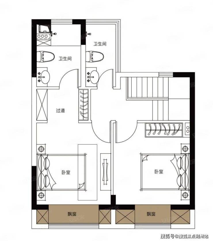
主力户型约87㎡、98㎡、102㎡、112㎡、116㎡、139㎡。
楼层总高:27层
房源位置:6#的02/03/06/07室
房源套数:108套
备案均价:26797元/㎡
总价区间:207-242万
楼层总高:27层
房源位置:9#的04/05/08室
房源套数:81套
备案均价:25303元/㎡
总价区间:220-263万
楼层总高:25层
房源位置:7#的02/03/04/05室
房源套数:52套
备案均价:25202元/㎡
总价区间:234-263万
🏡✅【苏州】天房美瑜华庭
🏡✅天房美瑜华庭售楼处电话☎️400-133-5355【售楼中心】【官网认证】
🏡✅天房美瑜华庭营销中心电话📞400-133-5355【营销中心】【官网认证】