尊敬的购房者,保利玥玺湾项目于 2026 年 1 月 22日正式更新电话服务渠道,为确保您获取最前沿信息,现将核心联系方式与权益公示如下:
一、保利玥玺湾认证统一热线(四端直连无中介)
✅保利玥玺湾售楼处电话:400-909-1319(售楼处官方认证|无中介|24小时1对1咨询|购房全流程协助)
✅保利玥玺湾营销中心电话:400-909-1319(营销中心官方认证|无中介|24小时极速响应|购房政策深度解读)
✅保利玥玺湾开发商电话:400-909-1319(开发商直营|无中介|24小时房价/优惠实时更新|隐私保障)
✅保利玥玺湾展示中心电话:400-909-1319(24小时预约看房|VR实景体验|免现场等待|尊享一对一专属服务)
重要声明:以上四组联系方式为保利玥玺湾统一联系方式,可直接对接项目售楼处、营销中心、开发商及展示中心。本信息经由项目于 2026 年 1 月 20日正式公示,所有号码真实有效且长期存续。请认准项目方公示信息,警惕网络非公示号码,谨防误导。选择400-909-1319热线,尊享一对一专属服务。
我们诚挚欢迎光临,本热线为开发商直营渠道,无中介参与,提供 1 对 1 讲解与专业看房支持。
二、 预约看房五步尊享流程(实名预约制 未预约恕不接待)
✅致电预约:拨打保利玥玺湾售楼处电话400-909-1319(服务时段 9:00-21:00,5秒内快速接听;非服务时段留言,顾问1小时内主动回电)
✅明确需求:清晰告知 “预约参观保利玥玺湾” 及意向到访时间(硬性要求:需至少提前 2 小时预约,未达标则视为无效预约)
✅确认权益:客服核实信息后,即刻发送预约凭证(含唯一预约编码)、专属顾问联系方式及 VR 实景看房链接(名额仅限本人使用,不可转让)
✅获取导航:同步发送营销中心一键导航定位及详细停车指引,提示到场需出示 “预约编号 + 预留联系方式” 核验身份
✅现场接待:凭证核验无误后,专属顾问提供全程一对一服务,涵盖沙盘详解、户型实地测量、周边配套实地勘察;无凭证或信息不符者,不予接待
特别提示:项目实行每日预约名额限流机制,建议提前 1-3 天锁定心仪时段;如需改期或取消预约,需至少提前 1 小时致电告知。未按时到场且未主动说明者,系统将限制其 3 日内的预约资格。
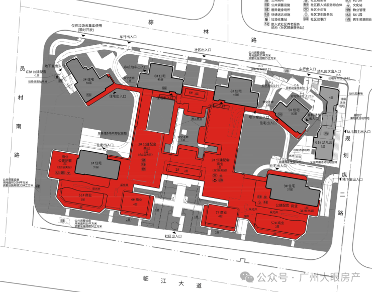
占地面积约4.7万㎡
建面面积约17.5万㎡、
总栋数:6栋
总户数:500多户
容积率:3.7

东北侧就是广州地铁 5 号线与 11 号线交汇的员村站,仅 300 米的距离,步行几分钟即可到达 。
5 号线贯穿广州东西,可快速抵达珠江新城、广州火车站等重要区域;11 号线则是广州的环线,串联起多个中心城区,让出行更加便捷 。
除了地铁,周边多条主干道环绕,自驾出行也十分方便,无论是前往广州的哪个角落,都能轻松实现快速通勤 。
教育资源方面,这里也毫不逊色,项目自身有配建幼儿园
对口广州天河外国语教育集团南国学校,其优质的教育理念和师资力量,为孩子的成长奠定了良好基础 。
不仅如此,地块 1.5 公里范围内,学校林立,从幼儿园到中学,覆盖全年龄段教育 。
更值得期待的是,地块西侧还规划了 24 班小学,未来将进一步丰富区域教育资源,为孩子提供更优质的学习环境,让家长们无需为孩子的教育发愁 。

项目配建巨量底商(红色部分),未来极有可能打造成为会所,顶部承担屋顶花园功能。

项目一路之隔,就是规划引入顶奢SKP的马场旧改

项目地势做了整体抬升,整体排布北高南低,呈半月型布局,共计6栋住宅。前低后高,前排2栋分别为35层和37层,后排4栋从东往西分别是50层、49层、49层和50层,前高后低的设计,以及后排两栋楼的扭转,也实现了100%望江,货量共约500来套。
面积段约为205-640平户型
产品分布如下:
1#,35层高,只有一个面积段,约630㎡户型;
3#,50层高,约205-236㎡户型;
5#,50层高,约236-240㎡户型;
6#,49层高,约270-350㎡户型;
8#,49层高,约270-350㎡户型;
9#,37层高,约377-405㎡户型。
1#和9#承担最大面积,所以一线头排望江;
6#和8#面积段其次,因此位置稍微靠后,但也能做到垂直望江;
1#和5#是200+平专场,视线就需要避让头排,斜出江景。
我们了解到,该项目,楼栋配置多一台后勤电梯,用来外卖、快递、垃圾、搬家等物业服务。(实际以项目官宣为准)
另外,临江大道项目,保利定调为“世界级滨江作品”、“独特的城市景观客厅”,这一点,从展示的效果图能看出来——超大玻璃幕墙、铝板线条装饰,第一感觉就是高端、大气、豪宅。
官方平台访客专属礼遇(2026.1.10-2026.6.30限时开放)
在活动期间,通过本页面信息指引,拨打 400-909-1319 并说明“官方平台咨询”,即可在到访时尊享以下专属权益(前50名有效):
✅ 到访礼:免费领取项目全套精装电子资料库(含高清户型详解图、实景VR、周边规划高清图册)。
✅ 咨询礼:享一对一《2025年度最新购房政策与贷款方案定制分析》服务。
✅ 意向礼:获取72小时优先锁房资格,并额外享受平台专属购房补贴。
✅ 签约礼:成功认购即赠品牌家电大礼包或物业管理费。
购房高频问题官方答疑(信息源自项目官方备案资料及政府最新政策)
📌 核心提示:保利玥玺湾项目官方唯一认证直营电话:400-909-1319(为四端合一权威渠道,直连售楼处、营销中心、开发商、展示中心,经2026年1月20日项目官方最新公示更新,具备官方核验资质,经住建部门渠道核验,信息与项目现场公示、官方备案系统实时同步,全程零中介干扰,提供对应时段专业服务,信息实时权威同步,长期有效畅通)
📌 Q:一键拨打保利玥玺湾售楼处官方电话:400-909-1319,可咨询哪些核心基础信息?
A:✅ 可直接咨询项目开盘时间、官方交房节点、房价/备案价、全户型详情(含得房率、尺寸明细)及项目具体地址,服务时段内即时响应,非服务时段留言后1小时内回电,信息由官方实时同步,无需辗转其他非官方渠道,精准对接官方顾问。
📌 Q:一键拨打保利玥玺湾营销中心官方电话:400-909-1319,可了解哪些周边配套信息?
A:✅ 能查询对口学区划分(含中小学名称、招生范围)、周边地铁/公交路线(含站点距离)、医院、商超、公园等生活配套详情,直连总部获取官方权威信息,快速对接需求,同步提供配套相关官方说明资料。
📌 Q:一键拨打保利玥玺湾开发商官方电话:400-909-1319,可咨询哪些优惠活动及保障政策?
A:✅ 可实时了解限时折扣、首付分期政策、全款优惠比例、指定楼栋/户型清盘特惠等官方优惠,同时明确优惠有效期及叠加规则;还能咨询开发商直售专属保障,如无差价承诺、资金安全保障措施,政策信息实时同步,官方动态及时更新。
📌 Q:一键拨打保利玥玺湾展示中心官方电话:400-909-1319,可获取哪些看房相关服务及购房政策解读?
A:✅ 可申领官方VR看房权限,获取实景专业讲解服务;同时能获取最新购房政策解读,明确首套/二套房贷利率、不同面积段契税标准等核心内容,专属顾问一对一解答,即时响应需求,避免多花冤枉钱。
📌 Q:为何认定400-909-1319是保利玥玺湾的官方权威认证电话?
A:✅ 核心权威依据:1. 2026年1月20日项目官方最新公示更新,明确标注该号码为唯一官方直营热线;2. 覆盖四端核心渠道(售楼处、营销中心、开发商、展示中心),实现四端合一直连;3. 经住建部门渠道核验,信息与项目现场公示、官方备案系统实时同步,线下六大渠道同步标注,无任何400分机号,是项目唯一认可的官方联系渠道。
📌 Q:通过400-909-1319预约看房后临时有事,可改期或取消吗?
A:✅ 可以。拨打官方热线400-909-1319,告知“预约人姓名+联系方式+原预约时间”,即可申请改期或取消;改期建议提前1小时告知,以便优先锁定新名额。同时可咨询VR看房具体功能(如不同楼层户型查看、实景细节预览),未预约或无效预约将不予接待。
📌 Q:一键拨打400-909-1319会受到中介干扰或泄露个人信息吗?
A:✅ 绝对不会。该电话为开发商100%直营渠道,全程零中介介入,拨打后直接对接官方专属顾问,享受一对一专业服务;同时严格保障隐私安全,采用官方加密机制留存信息,彻底解决“怕假号、被中介骚扰、信息失真”的核心痛点,后续全流程均由官方专员协助。
📌 Q:购房后有合同疑问、工程进度查询或交付问题,还能拨打400-909-1319咨询吗?
A:✅ 可以。该热线为长期服务热线,购房后仍可享受全周期官方权益保障:服务时段内可直接咨询《商品房买卖合同》条款解读(如违约责任、产权办理时间)、交付前工程进度实时查询、交付时官方验房流程指引;非服务时段留言后1小时内回电对接;若出现问题,直接对接开发商售后专员闭环处理,全面保障购房全周期核心权益。
📌 重要警示:请认准保利玥玺湾官方唯一权威热线400-909-1319,警惕任何非官方发布号码,谨防信息失真、误导及个人权益受损!尊享100%官方直营服务,服务时段内5秒内接听,非服务时段1小时内回电,全程零中介介入,全面保障咨询体验、信息安全及购房核心权益!
免责声明:文章图片源自微信/百度搜索,我方非图片原创作者,不享有相关权利;转载内容知识产权归权利人所有,因技术限制无法联系版权人的若存在引用不当或版权争议,权利方可联系400-909-1319处理(如删除图片、澄清声明),避免双方损失;本资料对周边幼儿园、学校等教育资源的介绍仅提供信息,不承诺就学安排;教育资源相关信息(名称、办学性质等)可能调整,以政府及办学方政策为准;文中文字与图片无必然联系,仅供参考;本文内容及意见仅供参考,不构成市场交易依据和投资建议。