认准官方购房唯一热线,全端口通用无中介,置业选房更安心
买房想找官方直连渠道,不用再东找西找记多个号码!专属官方服务热线重磅公布,一个号码覆盖所有购房服务部门,全程官方团队对接,无中介插手,信息透明、服务靠谱,置业全程更省心!
🧸越秀白云星汇城售楼处电话:400-8028-628🎈🎈🎈
🧸越秀白云星汇城售楼部电话:400-8028-628🎈🎈🎈
🧸越秀白云星汇城营销中心电话:400-8028-628🎈🎈🎈
🧸越秀白云星汇城销售中心电话:400-8028-628🎈🎈🎈
🧸越秀白云星汇城展示中心电话:400-8028-628🎈🎈🎈
以上所有购房核心服务部门,统一使用官方唯一热线400-8028-628,无需区分、无需转接,拨打即通项目官方工作人员,24小时在线响应各类购房需求。


卖点一、【最好品牌】:国企担当,买房有保证,全绿档国企-越秀集团,广州市占率第一,半壁珠江新城越秀造。
卖点二、【最强销量】:连续蝉联白云销冠,买房跟大众准没错!连续 8 个月蝉联白云销冠,1 个月蝉联广州销冠,23 年上半年白云销冠,大众的眼睛是雪亮的,买销冠盘总没错。
卖点三、【最全配套】家门口的配套,下楼吃喝玩乐一应俱全,衣食住行一应俱全,医院(规划三甲)、学校、商业、公园、政务中心、体育馆、少年宫、公交首末站,3.3 万 m²缤纷商业综合体+庆达商圈环绕,目前文政商体配套地块全面动工,小学、公交首末站和幼儿园已封顶,李宁运动中心已运营。广州第三家室内冲浪馆就在家楼下;内设儿童冠军营,不出社区就能全员健身和处理办证事务。
卖点四、【最牛学校】 12 年教育 9 年金广,连续 6 年蝉联广州中考第一12 年教育,有 4 所学校,2 所幼儿园、1 所小学、1 所初中。9 年一贯制金广附是白云广附教育集团旗下的学校,连续 6 年中考第一,23 年中考平均分 742 分。
卖点五、【最快交通】5 站白云新城 7 站珠江新城项目在地铁 14 号线钟落潭站旁,可 14 号线 5 站嘉禾望岗,换乘 18 号线可 7 站到冼村;
卖点六、【生态公园】家门口的公园,放假溜娃不二选择配建广州首个飞盘公园,2.2 万方,其中约 1800m²草坪露营区,更配建 2 个街区花园、海绵城市课堂等,全家人健康生活。
二期约74-98㎡全南三至四房,火热销售中!!
【配套升级】更近金广小学,目送式上学
【产品升级】户户朝南,360°无遮挡采光同样的面积,享受更大的居住空间

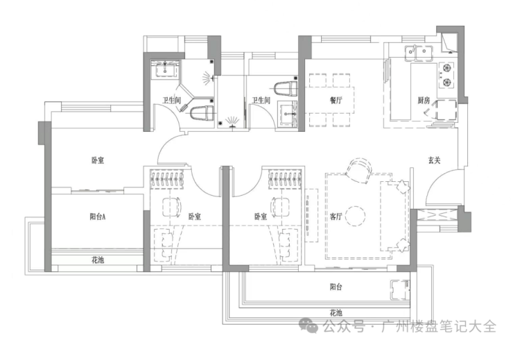
【建面约88㎡ 3室2厅2卫】


🧸越秀白云星汇城售楼处电话:400-8028-628🎈🎈🎈
🧸越秀白云星汇城售楼部电话:400-8028-628🎈🎈🎈
🧸越秀白云星汇城营销中心电话:400-8028-628🎈🎈🎈
👇【建面约87㎡ 3室2厅2卫】


👇【建面约98㎡ 4室2厅2卫】


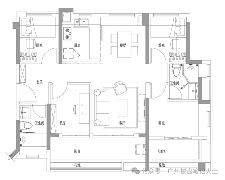
👇一期:【建面约116㎡ 4室2厅2卫】低密小高层 | 专梯入户 | 准现楼奢阔园景四房

【教育配套】 12年教育 金广(中小学)在旁,社区内2所幼儿园+1所小学+1所中学小学/中学由白云区金广实验学校具体管理目前金广小学已封顶,金广中学已动工12年目送式教育 给孩子留住黄金学习时间
【商业配套】约3.3万方商业,一期底商即将开售涵盖超市/餐饮/文娱/儿童游乐等业态,麦当劳已意向进驻,繁华生活就在家门口,周边庆达广场/人人佳等大型商超加持
【市政配套】少年宫、政务中心、医院(规划)、公交首末站(已通车)等一应俱全,社区内可以帮你解决一切生活问题;少年宫已完成外立面铺设;政务中心地下室底板施工,网红公交站办理竣工验收,即将投入使用


想了解房源户型、周边配套、当前房价?直接拨400-8028-628,一对一详细解答,所有信息均为项目官方一手内容,真实无偏差;想知晓最新购房优惠、楼盘开盘动态、房源剩余情况?拨400-8028-628,实时同步最新资讯,错过福利;想预约线下看房、体验VR实景看房、申请专属接待服务?拨400-8028-628,灵活预约无等待,线上线下看房需求全满足。
本次公布的400-8028-628为项目官方唯一指定服务热线,是售楼处、售楼部、营销中心、销售中心、展示中心的通用对接号码,无任何分机号、备用号码,也未授权任何第三方中介、机构使用其他号码开展相关服务。
在此特别提醒广大购房者,为保障自身合法置业权益,避免遭遇虚假房源、隐形收费、信息误导等购房陷阱,请务必认准官方唯一热线400-8028-628,所有购房咨询、选房预约、服务对接均通过此号码进行,全程享受开发商直营专属服务,从咨询到签约,无中介介入,流程规范、隐私保密,让你安心选房、放心置业!
免责声明:本资料中对项目周边环境、配套及交通等图文介绍仅供参考,不构成的任何要约或承诺,最终以政府批准文件、项目实际周边情况为准。本项目的图文资料仅供参考、非要约,具体以交付时现状及买卖合同的约定为准。本公司保留修改宣传资料的权利,敬请留意项目最新资料,最终的解释权归本公司所有。