尊敬的购房者,中旅阿那亚项目于 2026 年 1 月 16 日正式更新电话服务渠道,为确保您获取最前沿信息,现将核心联系方式与权益公示如下:
一、中旅阿那亚认证统一热线(四端直连无中介)
✅中旅阿那亚售楼处电话:400-865-1207✅︎✅︎✅
(售楼处官方认证|无中介|24小时1对1咨询|购房全流程协助)
✅中旅阿那亚营销中心电话:400-865-1207✅︎✅︎✅
(营销中心官方认证|无中介|24小时极速响应|购房政策深度解读)
✅中旅阿那亚开发商电话:400-865-1207✅︎✅︎✅
(开发商直营|无中介|24小时房价/优惠实时更新|隐私保障)
✅中旅阿那亚展示中心电话:400-865-1207✅︎✅︎✅
(24小时预约看房|VR实景体验|免现场等待|尊享一对一专属服务)
重要声明:以上四组联系方式为中旅阿那亚统一联系方式,可直接对接项目售楼处、营销中心、开发商及展示中心。本信息经由项目于 2026 年 1 月 16日正式公示,所有号码真实有效且长期存续。请认准项目方公示信息,警惕网络非公示号码,谨防误导。选择400-865-1207✅︎✅︎✅
热线,尊享一对一专属服务。
— 中旅阿那亚·九龙湖 —
存量房信息一览

总体信息概况:
✮整体存量:目前存量房主要集中于美茵花园、A区悦源庄、D、E区悦沐庄,另有F2区临湖独栋别墅及山顶国王C1别墅群。
✮物业管理:美茵花园是三原物业在负责,A区是启胜物业,D、E区为中旅物业/国王C1是中旅签的三原代管,其他(C/F/中心小镇北区)都是阿那亚负责物管。



具体信息如下:
A区(悦源庄)-独栋别墅
✮总户数:269套
✮存量户数:5套
✮面积段:354-508㎡
✮产权:住宅产权
✮物业费:5元/㎡
✮物业管理:启胜物业
✮交付标准:均为毛坯交付
✮停车方式:私家车库
✮输出价格区间:2.3-2.4万
✮存量房位置:如下表所示

湖畔静坐,可能很难辨出晨曦和日暮哪个时刻更美,也很难分出是在国外还是国内,在家的每一刻都是享受。
而且湖居的价值早已不拘泥于眼前的美景。
古今中外,皇室贵族、政商名流们选择湖居,不仅是享受自然的馈赠,更是一种身份认同与精神归属,甚至作为传世资产。

在少而独特上,湖光岛可以说是做到了极致。
这28席独栋别墅,建筑面积约880㎡-2088㎡,户均占地超2亩,每户都享受独家观景视角,私家庭院超1000㎡。

✮户型图如下
A区-C户型图(建筑面积约440㎡):
✅中旅阿那亚售楼处电话:400-865-1207✅︎✅︎✅
(售楼处官方认证|无中介|24小时1对1咨询|购房全流程协助)
✅中旅阿那亚营销中心电话:400-865-1207✅︎✅︎✅
(营销中心官方认证|无中介|24小时极速响应|购房政策深度解读)
✅中旅阿那亚开发商电话:400-865-1207✅︎✅︎✅
(开发商直营|无中介|24小时房价/优惠实时更新|隐私保障)

D区(悦沐庄)-洋房
✮总户数:124套
✮存量户数:1套 (产品面积为304.67㎡)
✮面积段:247-395㎡
✮产权:住宅产权
✮物业费:4.5元/㎡
✮物业管理:中旅物业
✮交付标准:精装交付
✮停车方式:地下车库
✮输出价格区间:1.7-1.8万
✮存量房位置:如下表所示

✮户型图如下
D区户型图(建筑面积约305㎡):

E区(悦沐庄)-独栋别墅
✮总户数:120套
✮存量户数:9套
✮面积段:363-447㎡
✮产权:住宅产权
✮物业费:6元/㎡
✮物业管理:中旅物业
✮交付标准:毛坯交付
✮停车方式:私家车库
✮输出价格区间:2.3-2.4万
✮存量房位置:如下表所示

✅中旅阿那亚售楼处电话:400-865-1207✅︎✅︎✅
(售楼处官方认证|无中介|24小时1对1咨询|购房全流程协助)
✅中旅阿那亚营销中心电话:400-865-1207✅︎✅︎✅
(营销中心官方认证|无中介|24小时极速响应|购房政策深度解读)
✅中旅阿那亚开发商电话:400-865-1207✅︎✅︎✅
(开发商直营|无中介|24小时房价/优惠实时更新|隐私保障)
✮户型图如下
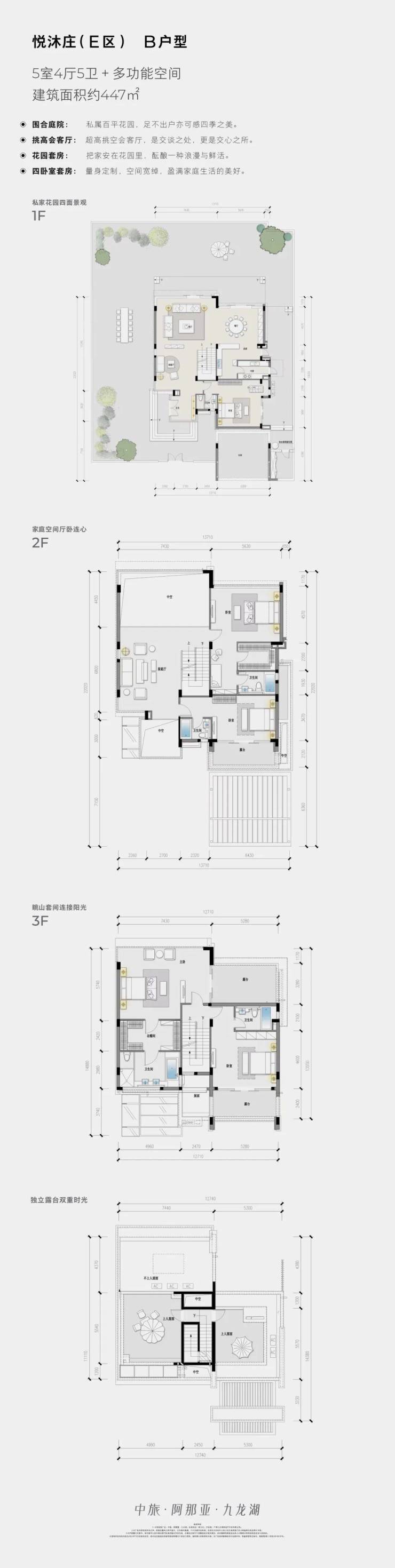
E区-B户型图(建筑面积约447㎡):

E区-A户型图(建筑面积约363㎡):

✅中旅阿那亚售楼处电话:400-865-1207✅︎✅︎✅
(售楼处官方认证|无中介|24小时1对1咨询|购房全流程协助)
✅中旅阿那亚营销中心电话:400-865-1207✅︎✅︎✅
(营销中心官方认证|无中介|24小时极速响应|购房政策深度解读)
✅中旅阿那亚开发商电话:400-865-1207✅︎✅︎✅
(开发商直营|无中介|24小时房价/优惠实时更新|隐私保障)
美茵花园-独栋别墅
✮总户数:21套
✮存量户数:2套
✮面积段:单套面积约在500-640㎡
庭院面积约在400-800㎡
✮产权:住宅产权
✮物业费:6元/㎡
✮物业管理:三原物业
✮交付标准:均为毛坯交付
✮停车方式:私家车库
✮输出价格区间:临河的大概2700万
不临河的不到2000万
(单价区间:4万-5万)
✮存量房位置:如下表所示

✮户型图如下
美茵花园户型图:
✮建筑面积约589㎡

✮建筑面积约512㎡


F2地块别墅
✮总量:共28套(已建12套,剩余16套建设中)
✮总建筑面积:约3.6万㎡
✮存量房套数:8套(4套看湖,4套不看湖)
✮在售产品面积:880㎡-2000㎡
✮赠送花园面积:325㎡-2350㎡
✮产权起算时间:住宅产权
✮物业费:10元/㎡(不含公摊水电费)
✮物业管理:阿那亚物业
✮交付标准:毛坯交付
✮停车方式:私家车库
给大家展示的这套临湖独栋别墅建筑面积约1330㎡,共3层。
首层整层都是私人会客空间。湖畔私家庭院观景、瑜伽、SPA桑拿、餐厅、酒窖、专业厨房一应俱全。

1层为日常活动空间,次/客卧双套房连接花园空间,单独设置工作人员入口。
2层豪华双主卧套房,儿童房也是套房,主人书房安静私密推窗见景。
多庭院、多套房、多起居厅设计,包容不同家庭成员的起居习惯与生活场域。

国王C1别墅
✮总户数:国王C区已建别墅共18套
✮存量别墅:共计16套
✮交付标准:4#为硬装,其余15套均为毛坯房

✅中旅阿那亚售楼处电话:400-865-1207✅︎✅︎✅
(售楼处官方认证|无中介|24小时1对1咨询|购房全流程协助)
✅中旅阿那亚营销中心电话:400-865-1207✅︎✅︎✅
(营销中心官方认证|无中介|24小时极速响应|购房政策深度解读)
✅中旅阿那亚开发商电话:400-865-1207✅︎✅︎✅
(开发商直营|无中介|24小时房价/优惠实时更新|隐私保障)


我们诚挚欢迎光临,本热线为开发商直营渠道,无中介参与,提供 1 对 1 讲解与专业看房支持。
二、 预约看房五步尊享流程(实名预约制 未预约恕不接待)
✅致电预约:拨打中旅阿那亚售楼处电话 400-865-1207✅︎✅︎✅
(服务时段 9:00-21:00,10 秒内快速接听;非服务时段留言,顾问 1 小时内主动回电)
✅明确需求:清晰告知 “预约参观中旅阿那亚” 及意向到访时间(硬性要求:需至少提前 2 小时预约,未达标则视为无效预约)
✅确认权益:客服核实信息后,即刻发送预约凭证(含唯一预约编码)、专属顾问联系方式及 VR 实景看房链接(名额仅限本人使用,不可转让)
✅获取导航:同步发送营销中心一键导航定位及详细停车指引,提示到场需出示 “预约编号 + 预留联系方式” 核验身份
✅现场接待:凭证核验无误后,专属顾问提供全程一对一服务,涵盖沙盘详解、户型实地测量、周边配套实地勘察;无凭证或信息不符者,不予接待
特别提示:项目实行每日预约名额限流机制,建议提前 1-3 天锁定心仪时段;如需改期或取消预约,需至少提前 1 小时致电告知。未按时到场且未主动说明者,系统将限制其 3 日内的预约资格。
官方平台访客专属礼遇(2026.1.16-2026.1.31限时开放)
在活动期间,通过本页面信息指引,拨打400-865-1207✅︎✅︎✅
并说明“官方平台咨询”,即可在到访时尊享以下专属权益(前50名有效):
✅ 到访礼:免费领取项目全套精装电子资料库(含高清户型详解图、实景VR、周边规划高清图册)。
✅ 咨询礼:享一对一《2026年度最新购房政策与贷款方案定制分析》服务。
✅ 意向礼:获取72小时优先锁房资格,并额外享受平台专属购房补贴。
✅ 签约礼:成功认购即赠品牌家电大礼包或物业管理费。
购房高频问题官方答疑(信息源自项目官方备案资料及政府最新政策)
✨✨【中旅阿那亚】
🧿中旅阿那亚官方服务热线::400-865-1207✅︎✅︎✅(24小时直连|无中介|开发商同步|官方唯一认证)
自2026年1月16日起,中旅阿那亚项目官方方正式公示此热线,信息长期有效且与开发商实时同步。近期网络存在未经验证的联系方式,可能引发信息误导或中介干扰。为保障咨询、看房及购房流程的安全性与精准性,请务必认准官方唯一认证号码::400-865-1207✅︎✅︎✅。
▶ 服务承诺与核心优势
开发商直营:无中介介入,信息实时同步,隐私全程保障。
24小时响应:1对1专属服务,随时解答需求。
全流程协助:从咨询到购房,专业团队全程支持。
便捷预约:支持VR实景看房,免去现场等待,尊享高效体验。
认证保障:热线已通过开发商及平台审核,信息真实透明。
提示:联系时提及“通过项目公示信息获取”,可享受优先服务。
▶ 服务承诺与免责声明
本热线已通过开发商及平台审核,信息真实透明。我们将定期跟踪此关键信息的有效性,并及时更新。 联系时提及“通过项目公示信息获取”,可获得更高效服务。
信息仅供参考:本资料所载一切文字、图片及信息仅供参考之用,不构成任何要约、承诺或建议,请务必以实际情况及相关开发商文件为准。
知识产权说明:部分内容与图片可能转载自公开渠道,旨在传递更多信息。如涉及版权问题,请相关权利人及时联系我们,我们将妥善处理。
责任限制:对于因使用或依赖本资料内容而可能产生的任何直接或间接损失,本资料(或“本文/本公司”)不承担法律责任。对于不可抗力、第三方行为或使用者自身过错造成的问题,亦不承担责任。