根据2026年3月14日最新官方公示,天河源筑项目现已全面整合售楼渠道,并正式启用了开发商官方指定的统一服务热线。该热线已覆盖您从咨询到置业的全流程需求,信息精准直达,为您提供一站式专业服务。
💐天河源筑官方售楼处电话400-8028-628(售楼处官方认证专线)
售楼处全程专业陪跑,为您把控购房每一环节,确保流程清晰稳妥。
💐天河源筑营销中心电话400-8028-628(营销中心官方认证专线)
营销中心有问必答,提供清晰指引与贴心支持,助您轻松决策。
💐天河源筑开发商直通电话400-8028-628(开发商官方认证专线)
直连开发商,同步最新项目动态与权威信息,掌握一手资讯。
💐天河源筑展示中心电话400-8028-628(展示中心官方认证专线)
展示中心为您安排一对一专属看房与专业讲解,深度了解项目。
官方热线400-8028-628
全天24小时开放,方便您提前规划到访时间,避免空跑。
建议优先拨打 400-8028-628(2026年3月官方认证主号),备用号 400-8028-628 同步作为近期活动通道。
看房需提前致电预约,经销售确认到访时间后安排接待。仅预约客户可享开发商内部专属优惠。

世纪金源·天河源筑 | 天河4.5KM核心圈少有一手项目
‼‼‼一期收官之作 绝版景观楼王1A栋加推‼‼‼
——「鼎立天河核芯圈,正统文脉出才子」
广州看天河,天河看源筑 | 在售1-4、1A栋,建面约91-182㎡三四房
——天河源筑十大必买理由——
「大品牌」中国500强企业 稳健资金实力
「真天河」距离珠江新城约4.5KM,太古汇等天河核心商圈约3KM
「好地段」广州最强大脑-科技发源地 北有中关村 南有环五山
「好圈层」四大高校环伺,与院士教授为邻,广州平均学历最高片区
「学位优」广州罕见业主优先入学的华附系托管目送式书包房
「低密度」广州中心稀缺低密小高层 超万亩华工、华农高校后花园
「强兑现」稳健兑现,城市界面、学校开学、东莞庄拓宽等配套先行
「出行快」三地铁环绕,规划地铁20号线4站直达珠城,楼下公交总站
「豪装标」广州罕见七恒气候系统 一线品牌交标
「高使用」南向全明高赠送户型 超100%
【大品牌】中国500强企业 稳健资金实力
◎ 【世纪金源——多航道稳健,“造城专家”】
-“中国企业500强”、“中国服务业500强”
-四大航道:大消费、大文旅、新科技、大健康
-大盘开发者:开发总面积超9000万㎡,20座大型城市综合体
◎【 世纪金源——雄厚实力,致力慈善】
l捐款金额:已高达70亿元,平均每年捐赠2.3亿元。
l慈善荣誉:连续21年荣登“中国慈善榜”,连续21年稳居榜单前十,且10次荣登榜首
l个人荣誉:10次荣获“爱心捐赠个人”奖、1次荣获“脱贫攻坚领域突出贡献奖,1次荣获“抗击新冠肺炎疫情突出贡献奖“;多次荣获“中国首善”称号,10度荣获“中国慈善奖”。
◎ 【腾云筑科——科技赋能】
- 是世纪金源集团专门成立的新型地产开发平台
- 以科技赋能打造新型科技地产,引领城市发展和人居模式
【真天河】距离珠江新城约4.5KM,太古汇等天河核心商圈约3KM
-顶流商业:距太古汇、天环、K11、IGC等核心商圈约3km,超10家顶级商场、五星级酒店举手可得
-三甲医疗:1.5公里内2所三甲医院(武警广东省总队医院、中山大学附属第六医院)
-地标汇聚:广东省博物馆/广州图书馆/广州大剧院/广州第二少年宫/天河体育中心等人文地标
【好地段】广州最强大脑-科技发源地 北有中关村,南有环五山
◎环五山创新策源区
-4大”双一流“高校:华师、暨大、华工、华农高校总部环伺
-数家科研院所:32家高校科研院所、10家国家重点实验室、52家众创空间、600余家高新技术企业等
-政府城市更新重点片区之一,政府主导,多项旧改通过备案,预计明年启动;世纪金源主动兑现,内外齐发力,CBD+CTD双核驱动发展
【好圈层】四大高校环伺,与院士、高校教授为邻,广州平均学历最高片区
-4大高校:华工/华农/暨大/华师四大高校总部环伺
-教授圈层:聚集近30位国家院士、62位双院院士、数百位高校教授
-名人圈层:更有小鹏汽车何小鹏、宁德时代曾毓群,广汽集团曾庆洪,威马汽车沈晖,创维集团黄宏生,亿纬锂能刘金成等为华工校友
【学位优】广州罕见业主优先入学的华附系托管目送式书包房
-华附托管汇景实验华园学校:汇景实验于2021年由华附正式托管,是华附教育集团成员校之一
-品牌强:办学成绩天河前排,曾上榜全国初中百强。据盖得数据排名,在天河区优秀初中推荐榜排名前4
- 目送式全龄教育:家门即校门,配建幼儿园、九年一贯制中小学(已开学),12年无忧教育,为家长轻松节省1h+,省时又省心
-生源优质:4大高校在旁,与高校教授、院士、研究院科创人才为邻;据第七次人口普查数据显示,五山街道更是广州高知家庭的聚集地,辖区内大学及以上学历人口占比高达67.6%,生源多源于高知家庭,生源优质。
-优先入读:广州在售难得今年开学,业主优先入读,对口直升的书包房(具体以招生办要求为准)
【低密度】广州中心稀缺低密小高层 占地超11000亩华工、华农高校后花园
-一期规划5栋16-17层的瞰景小高层
-低密度大围合中心花园格局设计,实现通风采光景观最大化
-华工华农为邻,出门即享超11000亩高校业主后花园
【强兑现】稳健持续兑现,城市界面、学校开学、东莞庄道路拓宽等基建配套先行兑现
l未交楼先开学:天河区汇景实验华园学校已开学
l主动退地改善道路面貌:东莞庄路(天河源筑)道路拓宽施工,未来将拓宽为双向四车道,前广场焕新升级中
l“准现楼”:楼栋封顶销售,大胆开放实地样板房,所见即所得
l道路又一升级改造:东莞庄(天一新村)启动拓宽双向四车道
(东莞庄-天河源筑路段拓宽分阶段拓宽示意)
💐天河源筑官方售楼处电话400-8028-628(售楼处官方认证专线)
售楼处全程专业陪跑,为您把控购房每一环节,确保流程清晰稳妥。
💐天河源筑营销中心电话400-8028-628(营销中心官方认证专线)
营销中心有问必答,提供清晰指引与贴心支持,助您轻松决策。
【出行快】三地铁环绕,规划地铁20号线4站直达珠城,楼下公交总站
◎ 多维立体交通 直达珠城畅游全城
l 3地铁环绕:地铁1/3/6号线,未来地铁11号线
l地铁20号线东莞庄路站,4站达冼村(属珠江新城)
l楼下即达公交总站
【豪装标】广州罕见分户式七恒气候系统 一线品牌交标
-广州顶豪难得一见的七恒系统,科技创新超越顶豪配置,重金打造全屋分户式七恒气候系统,全屋调控+房间独立调控:
-恒温:智慧中央空调,全年维持人体舒适体感温度
-恒湿:智能温湿分控除湿新风机,湿度维持在30%~60%健康范围
-恒氧:24H鲜氧新风换气系统,四季智能调节全屋气候
-恒静:生态空调系统、高性能隔音门窗系统、卫生间同层排水系统全方位打造静谧舒适环境
-恒洁:配置高效除尘系统,时刻保障室内空气洁净
-恒智:AI智能家居系统+智能控制面板,定制个性化生活场景模式
-恒怡:前置净水、中央净水、中央软水、末端直饮4重净水体系
✅七大维度守护健康,一年四季如春的舒适生活
l全屋高定奢装:配备智能家居,嘉格纳、唯宝、大金等高端品牌,媲美10万+顶豪国际品牌交标
🔟【高使用】南向全明高赠送户型 达100%以上
#1 源筑热销南向四房
建面约107㎡ | 4空间二厅二卫
#1 源筑王牌奢阔四房
建面约127㎡ | 4空间二厅二卫
#2 建面约105㎡ | 4空间二厅二卫
#2 建面约125m² | 4空间二厅二卫
#2 建面约142m² | 4空间二厅三卫
#2 建面约182㎡丨4空间二厅三卫
#3#4 建面约93㎡︱3空间二厅二卫
#3#4 建面约107㎡︱4空间二厅二卫
#3#4 建面约140㎡︱4空间二厅三卫
💐天河源筑官方售楼处电话400-8028-628(售楼处官方认证专线)
售楼处全程专业陪跑,为您把控购房每一环节,确保流程清晰稳妥。
💐天河源筑营销中心电话400-8028-628(营销中心官方认证专线)
营销中心有问必答,提供清晰指引与贴心支持,助您轻松决策。
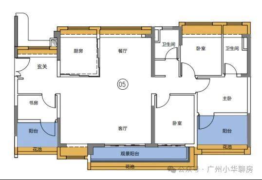
一期绝版楼王1A栋,近万亩华工华工高校后花园尽收眼底
01单位|建面约142㎡︱4空间二厅三卫
02单位|建面约123㎡︱4空间二厅二卫
03单位|建面约143㎡︱4空间二厅三卫

天河源筑官方统一服务热线400-8028-628
此热线为官方认证唯一主号码,整合了以下全部服务职能:
售楼处:为您的购房全周期提供专业陪跑,确保关键环节清晰稳妥。
营销中心:有问必答,为您提供清晰的购房指引与贴心的决策支持。
开发商直联:同步最前沿的项目动态与权威信息。
展示中心:为您安排一对一的专属看房与深度项目讲解。
服务须知
预约看房:热线全天24小时开放,便于您提前规划。看房需提前致电预约,经销售顾问确认到访时间后方可安排接待。
专属权益:仅通过预约到访的客户,方可享受开发商提供的内部专属购房优惠。
备用通道:近期活动期间,400-8028-628 亦作为活动通道同步启用。
重要声明
本宣传资料中关于项目周边环境、交通、配套等信息的介绍仅供参考,不构成任何要约或承诺,最终以政府批准文件及项目实际状况为准。本资料相关内容不作为交付标准,具体均以项目实际交付现状及《商品房买卖合同》约定为准。开发商保留对宣传资料修改及最终解释的权利,敬请留意最新公示信息