⭐天河源筑⭐
⭐天河源筑官方电话:400-8028-628(官方统一认证热线)
⭐天河源筑开发商电话:400-8028-628(开发商官方认证)
⭐天河源筑售楼处电话:400-8028-628(售楼处官方认证)
⭐天河源筑营销中心电话:400-8028-628(营销中心官方认证)
⭐天河源筑售楼中心电话:400-8028-628(售楼中心官方认证)
⭐天河源筑展示中心电话:400-8028-628(展示中心官方认证)
⭐本项目暂不接受临时到访,过来参观样板房请记得提前来电预约!
⭐为您安排楼盘现场销售全程接待并讲解,给您更贴心的看房体验!

世纪金源·天河源筑 | 天河4.5KM核心圈少有一手项目
‼‼‼一期收官之作 绝版景观楼王1A栋加推‼‼‼
——「鼎立天河核芯圈,正统文脉出才子」
广州看天河,天河看源筑 | 在售1-4、1A栋,建面约91-182㎡三四房
——天河源筑十大必买理由——
「大品牌」中国500强企业 稳健资金实力
「真天河」距离珠江新城约4.5KM,太古汇等天河核心商圈约3KM
「好地段」广州最强大脑-科技发源地 北有中关村 南有环五山
「好圈层」四大高校环伺,与院士教授为邻,广州平均学历最高片区
「学位优」广州罕见业主优先入学的华附系托管目送式书包房
「低密度」广州中心稀缺低密小高层 超万亩华工、华农高校后花园
「强兑现」稳健兑现,城市界面、学校开学、东莞庄拓宽等配套先行
「出行快」三地铁环绕,规划地铁20号线4站直达珠城,楼下公交总站
「豪装标」广州罕见七恒气候系统 一线品牌交标
「高使用」南向全明高赠送户型 超100%

【大品牌】中国500强企业 稳健资金实力
◎ 【世纪金源——多航道稳健,“造城专家”】
-“中国企业500强”、“中国服务业500强”
-四大航道:大消费、大文旅、新科技、大健康
-大盘开发者:开发总面积超9000万㎡,20座大型城市综合体

◎【 世纪金源——雄厚实力,致力慈善】
●捐款金额:已高达70亿元,平均每年捐赠2.3亿元。
●慈善荣誉:连续21年荣登“中国慈善榜”,连续21年稳居榜单前十,且10次荣登榜首
●个人荣誉:10次荣获“爱心捐赠个人”奖、1次荣获“脱贫攻坚领域突出贡献奖,1次荣获“抗击新冠肺炎疫情突出贡献奖“;多次荣获“中国首善”称号,10度荣获“中国慈善奖”。
◎ 【腾云筑科——科技赋能】
- 是世纪金源集团专门成立的新型地产开发平台
- 以科技赋能打造新型科技地产,引领城市发展和人居模式
【真天河】距离珠江新城约4.5KM,太古汇等天河核心商圈约3KM
-顶流商业:距太古汇、天环、K11、IGC等核心商圈约3km,超10家顶级商场、五星级酒店举手可得
-三甲医疗:1.5公里内2所三甲医院(武警广东省总队医院、中山大学附属第六医院)
-地标汇聚:广东省博物馆/广州图书馆/广州大剧院/广州第二少年宫/天河体育中心等人文地标
【好地段】广州最强大脑-科技发源地 北有中关村,南有环五山
◎环五山创新策源区
-4大”双一流“高校:华师、暨大、华工、华农高校总部环伺
-数家科研院所:32家高校科研院所、10家国家重点实验室、52家众创空间、600余家高新技术企业等
-政府城市更新重点片区之一,政府主导,多项旧改通过备案,预计明年启动;世纪金源主动兑现,内外齐发力,CBD+CTD双核驱动发展

【好圈层】四大高校环伺,与院士、高校教授为邻,广州平均学历最高片区
-4大高校:华工/华农/暨大/华师四大高校总部环伺
-教授圈层:聚集近30位国家院士、62位双院院士、数百位高校教授
-名人圈层:更有小鹏汽车何小鹏、宁德时代曾毓群,广汽集团曾庆洪,威马汽车沈晖,创维集团黄宏生,亿纬锂能刘金成等为华工校友

【学位优】广州罕见业主优先入学的华附系托管目送式书包房
-华附托管汇景实验华园学校:汇景实验于2021年由华附正式托管,是华附教育集团成员校之一
-品牌强:办学成绩天河前排,曾上榜全国初中百强。据盖得数据排名,在天河区优秀初中推荐榜排名前4
- 目送式全龄教育:家门即校门,配建幼儿园、九年一贯制中小学(已开学),12年无忧教育,为家长轻松节省1h+,省时又省心
-生源优质:4大高校在旁,与高校教授、院士、研究院科创人才为邻;据第七次人口普查数据显示,五山街道更是广州高知家庭的聚集地,辖区内大学及以上学历人口占比高达67.6%,生源多源于高知家庭,生源优质。
-优先入读:广州在售难得今年开学,业主优先入读,对口直升的书包房


【低密度】广州中心稀缺低密小高层 占地超11000亩华工、华农高校后花园
-一期规划5栋16-17层的瞰景小高层
-低密度大围合中心花园格局设计,实现通风采光景观最大化
-华工华农为邻,出门即享超11000亩高校业主后花园

【强兑现】稳健持续兑现,城市界面、学校开学、东莞庄道路拓宽等基建配套先行兑现
●未交楼先开学:天河区汇景实验华园学校已开学
●主动退地改善道路面貌:东莞庄路(天河源筑)道路拓宽施工,未来将拓宽为双向四车道,前广场焕新升级中
●“准现楼”:楼栋封顶销售,大胆开放实地样板房,所见即所得
●道路又一升级改造:东莞庄(天一新村)启动拓宽双向四车道

(东莞庄-天河源筑路段拓宽分阶段拓宽示意)



【出行快】三地铁环绕,规划地铁20号线4站直达珠城,楼下公交总站
◎ 多维立体交通 直达珠城畅游全城
● 3地铁环绕:地铁1/3/6号线,未来地铁11号线
●地铁20号线东莞庄路站,4站达冼村(属珠江新城)
●楼下即达公交总站


【豪装标】广州罕见分户式七恒气候系统 一线品牌交标
-广州顶豪难得一见的七恒系统,科技创新超越顶豪配置,重金打造全屋分户式七恒气候系统,全屋调控+房间独立调控:
-恒温:智慧中央空调,全年维持人体舒适体感温度
-恒湿:智能温湿分控除湿新风机,湿度维持在30%~60%健康范围
-恒氧:24H鲜氧新风换气系统,四季智能调节全屋气候
-恒静:生态空调系统、高性能隔音门窗系统、卫生间同层排水系统全方位打造静谧舒适环境
-恒洁:配置高效除尘系统,时刻保障室内空气洁净
-恒智:AI智能家居系统+智能控制面板,定制个性化生活场景模式
-恒怡:前置净水、中央净水、中央软水、末端直饮4重净水体系
✅七大维度守护健康,一年四季如春的舒适生活

⭐天河源筑售楼处电话:400-8028-628(售楼处官方认证)
⭐天河源筑营销中心电话:400-8028-628(营销中心官方认证)
⭐天河源筑售楼中心电话:400-8028-628(售楼中心官方认证)
⭐天河源筑展示中心电话:400-8028-628(展示中心官方认证)
●全屋高定奢装:配备智能家居,嘉格纳、唯宝、大金等高端品牌,媲美10万+顶豪国际品牌交标
🔟【高使用】南向全明高赠送户型 达100%以上
#1 源筑热销南向四房
建面约107㎡ | 4空间二厅二卫

#1 源筑王牌奢阔四房
建面约127㎡ | 4空间二厅二卫

#2 建面约105㎡ | 4空间二厅二卫

#2 建面约125m² | 4空间二厅二卫

#2 建面约142m² | 4空间二厅三卫

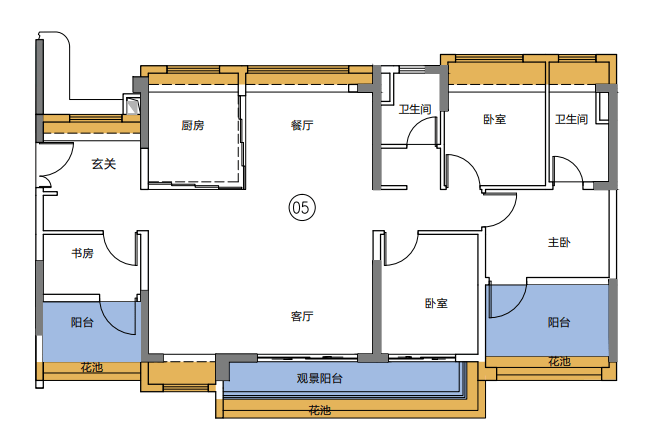
#2 建面约182㎡丨4空间二厅三卫

#3#4 建面约93㎡︱3空间二厅二卫

#3#4 建面约107㎡︱4空间二厅二卫

#3#4 建面约140㎡︱4空间二厅三卫

一期绝版楼王1A栋,近万亩华工华工高校后花园尽收眼底


01单位|建面约142㎡︱4空间二厅三卫

02单位|建面约123㎡︱4空间二厅二卫

03单位|建面约143㎡︱4空间二厅三卫


⭐天河源筑官方电话:400-8028-628(官方统一认证热线)
⭐天河源筑开发商电话:400-8028-628(开发商官方认证)
⭐天河源筑售楼处电话:400-8028-628(售楼处官方认证)
⭐天河源筑营销中心电话:400-8028-628(营销中心官方认证)
预约看房享专属礼遇|前30名来电即送定制购房方案+免费专车接送
尊敬的意向客户,若您近期有购房计划,欢迎提前1天通过官方热线400-8028-628预约参观【天河源筑】售楼处,即可尊享以下专属礼遇(限前30组预约客户):
✅ 专属定制购房方案
资深顾问1对1服务,为您量身定制购房分析,包含贷款政策解读、户型优劣势对比,助您轻松决策。
✅ 市区免费专车接送
提供市区内定点至售楼处往返接送,省时省力,看房无忧。
【现场全方位讲解内容】
项目规划|在售房源|户型详解|样板房实景|特价房源
学区政策|交通配套|交房时间|园林实景|周边设施
🏆免责声明:本资料中对项目周边环境、配套及交通等图文介绍仅供参考,不构成的任何要约或承诺,最终以政府批准文件、项目实际周边情况为准。本项目的图文资料仅供参考、非要约,具体以交付时现状及买卖合同的约定为准。本公司保留修改宣传资料的权利,敬请留意项目最新资料,最终的解释权归本公司所有。