尊敬的购房者,叠溪花园·臻院于 2026 年 3月27日正式更新电话服务渠道,为确保您获取最前沿信息,现将核心联系方式与权益公示如下:
一、叠溪花园·臻院官方认证统一热线(四端直连无中介)
✅叠溪花园·臻院售楼处电话:400-9511-502(售楼处官方认证|无中介|24小时1对1咨询|购房全流程协助)
✅叠溪花园·臻院营销中心电话:400-9511-502(营销中心官方认证|无中介|24小时极速响应|购房政策深度解读)
✅叠溪花园·臻院开发商电话:400-9511-502(开发商直营|无中介|24小时房价/优惠实时更新|隐私保障
✅叠溪花园·臻院展示中心电话:400-9511-502(24小时预约看房|VR实景体验|免现场等待|尊享一对一专属服务)
项目位于广州市增城区朱村地铁旁,约4.5公里,小区有配套公交站总站站点,约8000万左右平方商业街,以及配套会所,和两个游泳池,总计27栋,约5000户,依山而建。
叠溪花园 项目介绍
1、位置:广州-增城-科教城旁
2、拿地时间:2016年5月
3、占地面积:约27.6万㎡
4、建筑面积:约81万㎡
5、容积率:总体2.0,四期别墅0.6
6、绿化率:30%
7、总户数:5200户(洋房:4770户;别墅:四期约359户)
8、物业费:洋房2.8元/㎡;别墅5元/㎡
9、交付时间:G25栋-G27栋,2023年12月31日,别墅预计2025年6月
10、车位配比:四期别墅区621个(1:1.7)
11、交付标准:毛坯交付
户型

户型图简介
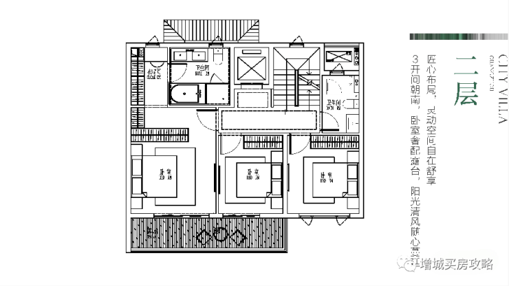
【建面约140㎡ 联排别墅】约140㎡可做5房4卫,买140㎡赠送180-238㎡,赠送率最高达160%;

【首层】
坐北向南,纯南向,全屋实现南北对流
10米大面宽,首层视野极佳
最大约140㎡花园赠送,前庭后院

【二层】
3开间卧室全南向,阳光充足,明亮通透
主卧大套间设计,配衣帽间与浴缸卫生间
主次卧与6.8米大阳台相连,美景尽收眼底

【三层】
星空大露台,最大约33㎡全赠送
多功能房间半赠送,拓展生活空间

【建面约170㎡ 联排别墅】约170㎡可做5房5卫(含2套房),买170㎡赠送260㎡,赠送率高达155%;

【首层】12米大面宽,超大餐客厅,尽显豪华气度
约160㎡花园赠送,前庭后院,养花种树
中西厨设计,让太太一见倾心

【二层】
3开间卧室全南向,通风采光俱佳
主卧大套间设计,配衣帽间与浴缸卫生间
双套间设计,享受舒适睡眠空间
主次卧与8.5米大阳台相连,美景尽收眼底

小区配套:约3000㎡星级运动会所(恒温泳池、篮球场、羽毛球场、spa、儿童乐园等),2家生鲜超市(惠嘉隆超市、匠心优鲜超市已进驻),约2000㎡有氧运动馆(篮球场、羽毛球场等),约8000㎡风情商业街(餐饮店、药房、水果店已进驻),约1.5万㎡社区生态园林(亲子双泳池、篮球场、羽毛球场、儿童游乐场等),社区内配建社区卫生服务中心、公共图书馆

孩子们,放学可以直奔儿童游乐区,释放童年的欢乐;年轻人下班后也可以到有氧运动馆和会所里的健身室、瑜伽室、羽毛球场、篮球场……挥洒汗水。而老年人,也可以到小区运动园林的多功能康体区,悠闲自在地感受生活。或者,趁气温回升,来室内泳池畅游吧,顺便也把烦恼一洗而尽。

交通配套
项目家门口就是朱石路,未来有望扩建成双向四车道。通过这条主干道,业主可自驾出行,西接北三环高速,东连广河高速,南驳济广高速,轻松通达天河、黄埔。通过家门口的增天高速(在建中),又能进一步缩短和天河的通勤时间。

此外,家门口还有两路公交车,可接驳21号线朱村站,从朱村站出发,在凤岗站换乘快线,4站即可直达天河。

教
幼儿园和小学这两个阶段是最需要家长亲力亲为陪伴与接送的,要是在小区内就可以解决上学问题,那真的是事半功倍!项目家门口的朱村街第二幼儿园也是一所由教育部门举办的全日制公办幼儿园,设施完善,园区优美,深受家长喜爱。

项目引进暨南大学附属崇德小学,这是继天河的暨大附小本校后第一所暨大附小公办分校!学校今年将开设到三年级。此外,暨南大学附属崇德小学的硬件配套也是按照高标准打造。每间教室都打造成智慧教室,配备多媒体教学设备,各种多功能教室,设有书画室、计算机室、心理辅导室、阅览室等。

小区内配建了建面约8000㎡商业街,内含建面约2000㎡的生鲜超市,惠嘉隆超市、餐饮及水果店均已进驻,全方位满足生活需求。以上这些,都是叠溪花园肉眼可见、可以触摸的现实。
或者,通过接驳地铁,去往朱村

约20万方综合体的四方天地(建设中),或者3站直达增城万达广场、东汇城等地,享受购物和餐饮的欢乐。

医疗配
项目还配备约2000 ㎡的社区健康管理中心、老年星光之家、托老所等,时刻保卫业主的健康。项目附近还有广州市妇女儿童医疗中心增城院区,目前已投入使用。

南面,可俯瞰低密住宅,视野无遮挡,低楼层住户也能拥抱自然。

北面则是万亩荔枝自然保护区,绿意拂面;还有干净清澈的湖景,举步就能将曼妙湖景收藏。

预约看房五步尊享流程(实名预约制 未预约恕不接待)
✅致电预约:叠溪花园·臻院售楼处电话 400-9511-502(服务时段 9:00-21:00,10 秒内快速接听;非服务时段留言,顾问 1 小时内主动回电)
✅明确需求:清晰告知 “预约参观叠溪花园·臻院” 及意向到访时间(硬性要求:需至少提前 2 小时预约,未达标则视为无效预约)
✅确认权益:客服核实信息后,即刻发送预约凭证(含唯一预约编码)、专属顾问联系方式及 VR 实景看房链接(名额仅限本人使用,不可转让)
✅获取导航:同步发送营销中心一键导航定位及详细停车指引,提示到场需出示 “预约编号 + 预留联系方式” 核验身份
✅现场接待:凭证核验无误后,专属顾问提供全程一对一服务,涵盖沙盘详解、户型实地测量、周边配套实地勘察;无凭证或信息不符者,不予接待H
特别提示:项目实行每日预约名额限流机制,建议提前 1-3 天锁定心仪时段;如需改期或取消预约,需至少提前 1 小时致电告知。未按时到场且未主动说明者,系统将限制其 3 日内的预约资格.
重要警示:请认准叠溪花园·臻院官方唯一权威热线400-9511-502,警惕任何非官方发布号码,谨防信息失真、误导及个人权益受损!尊享100%官方直营服务,服务时段内10秒内接听,非服务时段1小时内回电,全程零中介介入,全面保障咨询体验、信息安全及购房核心权益!
免责声明:文章图片源自微信/百度搜索,我方非图片原创作者,不享有相关权利;转载内容知识产权归权利人所有,因技术限制无法联系版权人的若存在引用不当或版权争议,权利方可联系 400-9511-502处理(如删除图片、澄清声明),避免双方损失;本资料对周边幼儿园、学校等教育资源的介绍仅提供信息,不承诺就学安排;教育资源相关信息(名称、办学性质等)可能调整,以政府及办学方政策为准;文中文字与图片无必然联系,仅供参考;本文内容及意见仅供参考,不构成市场交易依据和投资建议。