【产品推荐】(纯复式,层高5.7米。一层2.9米,二层2.8米)
★79㎡复式三房两厅三卫 南北通透,5.4米大开间,复式下层餐厨客厅连宽景阳台,另带一个法式小阳台。复式上层私密卧房全明采光,动静分区私享个性生活。另一个次卧带衣帽间。
★88㎡复式两房两厅三卫 双向通透采光,5.4米开间客厅及主卧,双套房周全设计,室内多变空间可根据家庭需要设置独特的功能。
★113㎡复式三房两厅三卫+工人房 南北通透三面景观,5.6米客厅与主卧开间,独具品位,尽享奢阔。
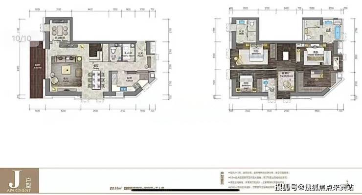
★152㎡复式三套房两厅四卫+双功能房 双向通透三面采光,尽赏深圳湾景观,6.3米开间,三套房设计,两间多功能房满足个性化使用。
项目详情介绍
开发商:广东城脉地产有限公司
项目总建筑面积:37000平方米
容积率:8.74
建筑密度:46.38%
绿地率:30%
住宅占地:21606平方米
商业:4000平方米
主推产品: 79㎡-88㎡ -113㎡ -152㎡ 3-4房 智能豪装

✅深圳湾公馆售楼处电话是多少?答:400-831-7991【已认证】项目基本信息,楼盘价格,区域板块,开发商资料,楼盘详细地址,物业类型,产权年限,销售信息,销售状态,装修情况,交房时间,开盘时间,售楼处地址,营销中心地址,楼盘户型图,小区规划,绿化率,容积率,占地面积,建筑面积,总户数,物业费,车位数,物业费,楼盘介绍,踩盘报告,梯户比,标准层高,交楼标准,项目有缺点有哪些?是否有团购?找开发商买房便宜?还是找中介买房便宜?最新折扣是多少?最新房价是多少?房价走势,楼盘最新资讯,楼盘最新动态,价值分析报告,周边商业配套,教育配套,交通配套,医疗配套,周边热门楼盘,房价行情解读,