✨✨深圳龙华御景华府 ✨✨
✨✨深圳龙华御景华府 售楼处电话☎✨✨:400-856-3771 ✨✨
✨✨ 深圳龙华御景华府营销中心电话☎✨✨:400-856-3771✨✨
温馨提示:本项目采用预约制,过来营销中心参观样板间请记得提前拨打开发商楼盘售楼处400热线电话在线预约,感谢您的配合!
✨✨深圳龙华御景华府 开发商售楼处咨询看房电话☎ 400-856-3771(中介勿扰)✨✨
楼盘项目全面介绍:含开盘消息、交房时间、楼盘详情、房价、户型、详情、得房率、售楼处地址、首页网站、销售中心、楼盘地址、户型图、交通、备案价、项目配套、营销中心、开发商、周边配套等详情咨询
温馨提示:看房请务必电话提前预约,避免临时无人接待,感谢您的配合!
开发商承诺:一对一专属开发商销售服务,尊享开发商内部优惠服务!
御景华府由深圳市泰富安投资有限公司开发,位于龙华区观湖街道鹭湖中心城片区,占地约1.84万㎡,总建筑面积10.5万㎡,容积率3.86,绿化率40%,规划为低密度纯住宅社区。项目共5栋建筑(4栋住宅+1栋幼儿园),总户数763户,车位比1:1,物业由中海物业(全国物业百强TOP10)管理,物业费4.6元/㎡·月,2023年12月毛坯交付。
开发商:深圳市泰富安投资有限公司;
项目名称:御景华府;
物业:中海物业;
项目占地:18462㎡;
总建面:104994㎡;
主推产品:67-70㎡2房,73-84㎡3房1卫,89-91㎡3房2卫,104-112㎡4房2卫;
总户数:763户;
停车位:763个;
可售商品房:533套;
容积率:3.86;
绿化率:约40%;
产权:70年;
项目地址:深圳市龙华区五和大道与长康路交叉口西南180米;
交通配套
龙华御景华府楼盘详情,御景华府的地理位置极为优越,位于高新园片区的核心区域,周边交通便利,无论是通过规划中的深广中轴城际线,还是地铁18号线和22号线,未来的出行将更加方便。同时,项目周边还有已开通的有轨电车和梅观高速,能够在一小时内覆盖全城,连接广深莞惠港,形成大湾区的生活圈。这样优越的交通条件为未来的居民提供了极大的便利,让人们的生活、工作、出行都能高效而便捷。
丰富的商业资源与生活配套
在生活配套方面,御景华府周边的商业资源十分丰富,能够满足居民的一站式购物需求。距离项目仅有500米的鸿荣源运营的三一云都,拥有4万平方米的大型商业空间,而伟禄雅苑的3万平方米购物中心和荣超新时代广场的3.1万平方米购物中心也在附近,构成了一个活力四射的商业圈。此外,观澜湖新城mall、龙华山姆会员店以及观澜天虹等商业设施,为居民的日常生活提供了更多选择,真正实现了“家门口的便捷生活”。
在教育资源方面,御景华府设有一所2000平方米的幼儿园,与深圳外国语学校(高中部)相邻,极大地方便了家庭的教育需求。同时,周边还有龙华区外国语学校、新鹭湖外国语学校等优质教育机构,形成了强大的教育资源网络。此外,项目距离龙华四馆(包括图书馆、群艺馆、科技馆和大剧院)仅约2公里,未来将成为龙华区的文化地标,为居民的文化生活增添了丰富的选择。
【御景华府优缺点】
御景华府优点:
规划交通便利:御景华府规划有地铁18号线、22号线和深广中轴城际,未来将形成区域性交通枢纽,1小时可通达全城,连接广深莞惠港。
现有交通可及:御景华府距离龙华有轨电车高新区东站直线距离约500米,可换乘地铁4号线,30分直达福田中心。
优质学校环绕:御景华府与深圳外国语学校(高中部)一路之隔,北临龙华区外国语学校,周边还有新鹭湖外国语、新加坡茵维特中英文学校、教科院附属小学等,教育资源丰富。
自带幼儿园:御景华府项目自带约2000㎡幼儿园,方便业主子女入学。
公园资源丰富:御景华府毗邻六大公园,包括樟坑径社区公园、鹭湖滨水公园、樟坑径城市公园、白鸽湖文化公园、中心公园、新田公园,自然生态融入日常。
绿化率较高:御景华府项目绿化率约40%,园林以“健康、舒适、私密、互动”为理念,打造法式新古典园林,包含阳光草坡、喷泉水景等。
户型选择多样:御景华府提供67-70㎡2房、73-84㎡3房1卫、89-91㎡3房2卫、104-112㎡4房2卫等多种户型,满足不同家庭结构和购房需求。
户型设计合理:御景华府所有户型均配备双阳台,主阳台进深约2.3-2.4米,空间宽敞,可打造为私人小花园。部分户型主卧套间+双卫,满足改善型需求。
御景华府缺点:
开发商知名度:泰富安投资有限公司的知名度相对较低,可能影响购房者的信任度。
商业配套:小区底商较少,虽靠近三一云都商业区,但商业氛围尚未形成,周边大型购物中心如Costco、龙华天虹等都在3公里外。
总结:理想的生态居住选择
以上就是“御景华府房价,龙华御景华府楼盘详情,御景华府优缺点!”相关内容。综上所述,御景华府不仅在生态居住理念上独树一帜,还凭借优越的地理位置和丰富的配套设施,成为深圳龙华区的一大亮点。无论是交通、商业还是教育,项目都能为居民提供便利与舒适,真正实现了现代人对理想居住环境的追求。在未来,御景华府无疑将成为更多家庭的优选之地。
户 型 剖 析
小区平面图
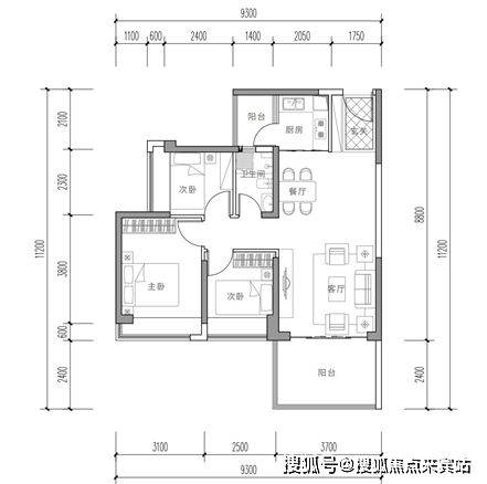
67-70㎡2房2厅1卫 (以2A栋04户型68㎡为例)

73-84㎡3房2厅1卫 (以1栋04户型82㎡为例)

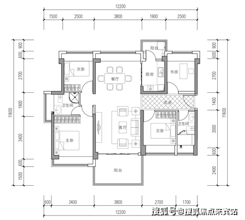
89-91㎡3房2厅2卫 (以2栋03户型89㎡为例)

04
104-112㎡4房2厅2卫(以2A栋01户型112㎡为例)

✨✨✨✨深圳龙华御景华府开发商售楼处电话:400-856-3771【预约热线】丨详细解答丨在售户型图丨项目介绍丨在售房源丨周边配套丨VR看房丨楼盘图丨沙盘图丨位置图丨配套图丨售楼处销售1V1讲解
温馨提示:因近期本项目营销中心来访的看房客户较多,过来营销中心参观样板间采取预约制,为不耽误您的行程,过来营销中心现场看房请务必记得提前拨打售楼处400免费热线来电进行预约一下,预约看房价格还可以享受更多开发商内部优惠,名额有限千万不要错过,感谢您对我们工作的支持和配合,在此恭候您大驾光临实地品鉴。
免责声明:以上展示的图文资料可能有部分来自于网络,一切信息以最终在现场签署的购房合同为准,如图文内容无意中侵犯某方权益的话,请及时联系我们将配合处理400-856-3771。