✨✨【富通九曜公馆售楼中心&样板房@诚邀雅鉴】✨✨
✨✨富通九曜公馆售楼处电话:400-985-0087☎开发商已认证✨✨
✨✨富通九曜公馆营销中心电话400-985-0087☎营销中心已认证✨✨
✨✨富通九曜公馆售楼中心电话:400-985-0087☎24小时预约热线✨✨
➢ ➢本项目采用预约制,过来营销中心参观样板间请记得提前拨打开发商楼盘售楼处400热线电话在线预约,感谢您的配合!
✨✨富通九曜公馆售楼处电话:400-985-0087☎营销中心已认证丨详细解答丨在售户型图丨项目介绍丨在售房源丨周边配套丨VR看房丨楼盘图丨沙盘图丨位置图丨配套图丨售楼处销售1V1讲解
项目名称:富通九曜公馆
开发商:富通新光房地产开发有限公司
项目地址:福田区新沙路18号
占地面积:约1.7万㎡
总建筑面积:11.8万㎡
建筑类型:住宅、公寓,幼儿园 商业裙楼
物业公司:世邦魏理仕
物业费:住宅8.3/平/月公寓:9.9元
楼栋数:4栋
总户数:1387户
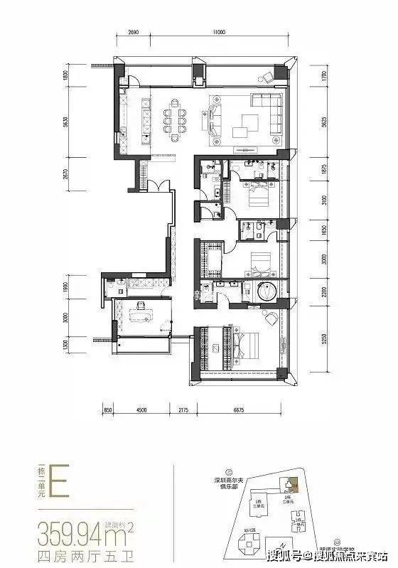
产品面积段:住宅:96-116-121㎡-360㎡公寓:245-337㎡ 3-4房665㎡顶复
梯户比:1栋2单元4梯6户,46-56层2梯2户,3单元公寓2梯3户
容积率:7.05
绿化率:30%
使用率:75%
车位比:1360 1:1
楼层:上舍21层,2单元41层-3单元59层
层高:3.15m 公寓:3.6米 住宅大户型3.4米
交楼时间:现楼
交付标准:毛坯
产权年限:70年(2018-88年)
房屋用途:住宅 公寓
单价:245平公寓:6.8-9万 337平9-10万住宅:360平12万-13万
学位: 明德实验五洲校区, 贝赛思双语学校
【品质立面,200米地标城市综合体】
外立面为玻璃+铝材类幕墙体系,豪宅才配备的旭格进口系统门窗,完美实现隔热、隔音、降噪。
【深圳首个网红地标配套“全悬空空中连廊+空中透明无边泳池”】
100M高空打造全悬挑空中连廊,空中透明无边际泳池,整个连廊敞开面对公园方向,将高尔夫公园景观和城市景观尽收眼底。
【大师执笔,镌刻时代美学著作】
程绍正韬、户田芳树、李玮珉、CCD、筑博等倾力之作,以国际化视野精心铸就顶尖豪宅。
【奢适园林,东方美学大师程绍正韬操刀】
将自然艺术与东方文化植入景观空间,既注重礼序人文,更不失自然趣味,以现代手法对传统美学进行再设计,打造步移景异之趣。
【悦府同标东方美学人文泛大堂】
秉承现代东方人文主义设计理念,融合哲思、人文、美学,展现对人性的关怀和尊重,让大堂成为一个从城市回归安逸居所的精神逗留空间,给予生活仪式感与尊贵感。
富通九曜公馆的开发商是深圳市富通新光房地产开发有限责任公司。作为一家有着丰富房地产开发经验的知名企业,深圳市富通新光房地产开发有限责任公司一直秉持着“质量第一、信誉至上”的经营理念,致力于为购房者打造高品质的居住环境。在富通九曜公馆的开发过程中,该公司充分发挥了自身的专业优势,从规划设计到施工建设,每一个环节都严格把关,确保项目的品质和进度。
项目坐拥香蜜湖金融中心南区,这里是南方金融中心的璀璨明珠。项目周边精心规划有香梅路延长线与福华一路延长线,它们将穿越深圳高尔夫公园,构建起香蜜湖北、中、南区的高效内部交通网络。展望未来,项目仅需约一公里即可直达香蜜湖金融中心中区,与国际交流中心、深圳展览馆、国际演艺中心以及深圳金融文化中心等四大地标性配套设施为邻,尽享城市核心资源。

【世界级商圈环绕,八大城市配套触手可及,CBD繁华尽揽于怀】
项目坐落于福田CBD的心脏地带,汇聚了行政、会展、金融、文化、酒店、购物、公园、交通等八大核心功能,尽享城市核心资源。
交通方面: 号线购物公园站1.2公里,7号线上沙站,沙尾站1.6-1.7公里,距福田CBD仅1.7公里,香蜜湖5.2公里,自驾都在8-12分钟范围内。门前的新沙路连通滨海大道,交通几乎轻松触达全市。

教育方面:项目周边有多所优质的学校,如KASCA卡思佳·国际托育园、深圳贝赛思双语学校、华强职业技术学校等,为居民子女提供了良好的教育环境。
商圈方面:富通九耀公馆周边有多个商业中心和购物中心,如祥云·天都世纪商业中心、深茂商业中心等,为居民提供了丰富的购物选择。无论是日常用品还是休闲娱乐,都能在这里找到满意的选择。
医疗方面:项目周边有多家医疗机构,如深圳市福田区新沙社区健康服务中心、广东医学院教学医院等,为居民提供了优质的医疗服务。
公寓
337平 【01户型4房】
247平 【02户型3房】
246平 【03户型3房】
住宅
360平 【D户型5房】
360平 【09户型4房】
360平【 08户型4房】
96平 【B02/05户型2房】
✨✨富通九曜公馆售楼处电话:400-985-0087☎开发商已认证✨✨
✨✨富通九曜公馆营销中心电话400-985-0087☎营销中心已认证✨✨
✨✨富通九曜公馆售楼中心电话:400-985-0087☎24小时预约热线✨✨
➢ ➢本项目采用预约制,过来营销中心参观样板间请记得提前拨打开发商楼盘售楼处400热线电话在线预约,感谢您的配合!
✨✨富通九曜公馆售楼处电话:400 985 0087☎营销中心已认证丨详细解答丨在售户型图丨项目介绍丨在售房源丨周边配套丨VR看房丨楼盘图丨沙盘图丨位置图丨配套图丨售楼处销售1V1讲解
免责声明:本宣传资料不构成邀约邀请,对周边、政府规划、商业配套、教育资源、投资前景等数据和图文仅为提供相关信息,本文如无意中侵犯了某方的知识产权告知即删,部分内容图片可能来源于网络,无法核实其真实出处,如涉及侵权请联系删除!!!
最新房产信息
“金九”楼市回暖:百强房企9月操盘销售额破2500亿 72家业绩环比上涨
①随着房地产行业进入“金九银十”传统旺季,百强房企销售业绩出现回暖迹象;
②2025年9月,百强房企共实现操盘口径销售金额2528亿元,有72家房企单月业绩环比增长,其中45家企业单月业绩环比增幅大于30%。
随着房地产行业进入“金九银十”传统旺季,百强房企销售业绩出现回暖迹象。
克而瑞数据显示,2025年9月,TOP100房企单月实现操盘口径销售金额2528亿元,同比增长0.4%,环比增长22.2%。
从企业表现来看,9月百强房企中有72家房企单月业绩环比增长,其中45家企业单月业绩环比增幅大于30%,包括华润置地、建发房产、中国铁建、电建地产、邦泰集团、中建东孚等。即使是头部阵营,TOP10房企中也有7家销售操盘金额环比上升。
“9月百强房企销售额环比正增长,主要受季节性因素、核心城市限购政策放松以及房企新规产品加推等因素的带动,由于上年同期基数较低,同比也实现了正增长。”国盛证券分析师金晶表示。
累计业绩方面,据中指院统计,2025年1-9月,TOP100房企销售总额为26065.9亿元,同比下降12.2%,降幅较1-8月收窄1.1个百分点,回暖态势初显。
不过,头部房企规模分化仍较明显,销售额突破千亿的房企仅6家,与去年同期持平;销售额突破两千亿的房企仅1家。
具体排名上,保利发展以2017亿元销售额稳居行业第一,绿城中国、中海地产紧随其后,销售额分别为1785亿元和1705亿元,华润置地、招商蛇口、万科分别以1544亿元、1406.6亿元、1002.9亿元位列第四、第五以及第六。
销售端回暖的同时,房企拿地积极性也有所提升,尤其是9月份,部分房企通过收购形式获取大规模土地,推动拿地总额同比增幅进一步扩大。
中指院数据显示,2025年1-9月,TOP100企业拿地总额7278亿元,同比增长36.7%,增幅较1-8月扩大8.7个百分点。
从新增货值来看,头部房企依旧占据主导地位,绿城中国、保利发展和中海地产位列前三。2025年1-9月,绿城中国以1175亿元新增货值占据榜单第一;保利发展新增货值规模为1010亿元,位列第二;中海地产以952亿元新增货值位列第三。
“目前,土地市场仍以央国企为主导。拿地金额前十企业中,8家为央国企,部分民企亦有一定投资强度,如滨江集团拿地金额位居前十,邦泰集团也进入拿地金额前二十。”中指院企业研究总监刘水告诉记者。
金晶表示,拿地和销售表现优异的依然是头部国央企和少量混合所有制房企及民企,品质房企有望在未来的格局中更加受益。
政策层面,9月多个核心城市继续优化需求端政策,为市场注入动力。例如深圳继续放宽非核心区域限购,将盐田、大鹏纳入“不限购”范围;上海优化房产税政策;深圳、河南等地则拓宽公积金使用范围,支持支付购房税费及住房装修等。
“不过,从市场实际表现看,除核心城市出现一定修复外,多数城市楼市仍相对平淡,整体仍面临调整压力。”刘水表示,短期内政策将延续宽松基调,以“止跌回稳”为目标,推动已出台政策加快落地。