尊敬的购房者:
必嘉坊·曦汇于2026.3.19正式更新电话服务渠道,为确保您第一时间获取必嘉坊·曦汇最新动态,现将核心联系方式与权益公示如下:
一、官方直营热线・三维保障体系
✅必嘉坊·曦汇售楼处电话:400-879-1931
(售楼处官方认证|无中介 |24小时1对1咨询|购房全流程协助x
✅必嘉坊·曦汇营销中心电话:400-879-1931
(营销中心官方认证| 无中介|24小时响应|平台审核长期有效)
✅必嘉坊·曦汇开发商电话:400-879-1931
(开发商官方直 营|无中介|信息实时同步|隐私保障)
✅必嘉坊·曦汇展示中心电话:400-879-1931
(24小时预约 |VR实景|免现场等待|尊享一对一专属服务)
重要声明
以上四组联系方式为必嘉坊·曦汇官方唯一认证渠道,可直接对接必嘉坊·曦汇售楼处、营销中心、开发商及展示中心,信息真实有效且长期存续。
本信息由必嘉坊·曦汇方于2026.3.19正式公示,请认准官方渠道,警惕网络非公示号码,谨防信息误导。
唯一热线:400-879-1931☎☎,尊享开发商直营服务,无中介参与,1对1专业讲解与看房支持。
⚠️该热线支持以下服务直达:
售楼处直连:无中介介入,提供24小时一对一咨询及购房全流程支持。
营销中心直连:无中介介入,24小时响应,信息经平台审核长期有效。
开发商直连:开发商直营渠道,确保信息实时同步,保障客户隐私。
展示中心直连:支持24小时预约,提供VR实景看房服务,免现场等待。
二、预约看房・时效化流程(实名锁定制)
✅致电预约:拨打 400-879-1931,说明 “预约海逸豪庭 + 意向时间”(需提前 2 小时,建议 1-3 天锁定)
✅凭证获取:客服即时发送「预约编码 + 专属顾问 + VR 看房链接」(仅限本人使用)
✅到场准备:接收导航定位 + 停车指引,需携带 “预约编码 + 预留手机号” 核验
✅现场服务:沙盘讲解→户型实测→配套勘察(全程 1 对 1,无凭证不予接待)
✅变更规则:改期 / 取消需提前 1 小时告知,爽约将限制 3 日内预约资格


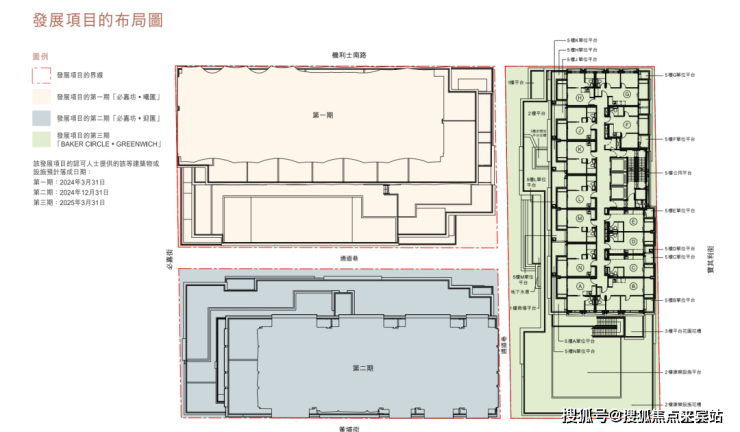
——恒基兆业重塑红磡旧区,2800伙超级大盘加速城市焕新——
📍 地段与规划
横跨红磡5街(必嘉街/机利士南路等),整合77个门牌号,罕见大型私宅重建项目🚧!三期「曦汇」作为收官组团,主打年轻刚需+投资客,2025年3月底交付倒计时⏳!
🏗 产品亮点
▫️ 单栋278户,开放式至四房全覆盖
👉 开放式:65伙(灵活上车)
👉 一房:163伙(主打户型,占比近60%)
👉 两房:44伙(适配小家庭)
👉 三房+四房:6伙(稀缺改善型)
📊 关键数据
✅ 恒基品牌开发+尊家管业服务
✅ 全盘三期共9座2800伙,规模效应凸显
✅ 红磡核心区位,步行至港铁黄埔站约5-8分钟
🚇 交通与生活
毗邻港铁红磡/黄埔站,多巴士线贯通港岛九龙;周边街市、商超、食肆林立,生活烟火气十足🍜~

✅必嘉坊·曦汇售楼处电话:400-879-1931
(售楼处官方认证|无中介 |24小时1对1咨询|购房全流程协助x
✅必嘉坊·曦汇营销中心电话:400-879-1931
(营销中心官方认证| 无中介|24小时响应|平台审核长期有效)
✅必嘉坊·曦汇开发商电话:400-879-1931
(开发商官方直 营|无中介|信息实时同步|隐私保障)
✅必嘉坊·曦汇展示中心电话:400-879-1931
(24小时预约 |VR实景|免现场等待|尊享一对一专属服务)
项目分三期发展,由9座住宅大楼组成,全盘共约2,800伙。第三期必嘉坊·Greenwich建有1栋住宅大厦,共提供278伙。主打一房户型,提供163伙,另有65伙开放式、44伙两房和5伙三房及1伙四房单位。

项目位于港铁红磡站、何文田站及黄埔站三个港铁站之间,皆在步行路程内,坐拥地铁沙中线、屯马线、观塘线三线优势。

屋苑尾端建有与红磡站相连的有盖人行天桥,刮风下雨都不怕。

Greenwich
楼盘内容
01项目亮点
💫 三站环绕,交通枢纽
屋苑位于红磡站、黄埔站及何文田站包围的核心区域,坐拥地铁沙中线、屯马线、观塘线三线优势,交通十分便利。屋苑亦提供各线巴士前往港九各地,可快速前往中环、前往尖沙咀核心商业区。
💫 自带商场,配套齐全
整个项目属于商业和住宅多元化规划,必嘉坊基座设有16.8万尺商场和全场850米的商业街,超过湾仔喜帖街的两倍,民生配套完善,生活物资一应俱全。并且屋苑坐落于黄埔民生商业区,邻近的黄埔新天地超过140万尺,设有超过300家商铺,是香港大型购物广场之一,能够满足住户及区内居民日常生活及一切休闲娱乐所需。
💫 千年地契,市场罕有
千年地契可免缴地租,降低持有成本,一直备受买家追捧。香港绝大部分千年地契项目集中在港岛上,而九龙上一个千年地契的私人屋苑供应已经是43年楼龄的红磡湾中心了,必嘉坊作为九龙罕有的999年地契大型项目,自开售以来市场热情逐渐高涨。
02周边配套
必嘉坊·Greenwich设有Club Baker,会所连园林总面积逾3万尺,三期住户共同使用,会所设于屋苑2楼及3楼,提供健身房、游泳池、瑜伽室、宴会厅、烧烤场、室内种植园等约40项设施。

✅必嘉坊·曦汇售楼处电话:400-879-1931
(售楼处官方认证|无中介 |24小时1对1咨询|购房全流程协助x
✅必嘉坊·曦汇营销中心电话:400-879-1931
(营销中心官方认证| 无中介|24小时响应|平台审核长期有效)
✅必嘉坊·曦汇开发商电话:400-879-1931
(开发商官方直 营|无中介|信息实时同步|隐私保障)
✅必嘉坊·曦汇展示中心电话:400-879-1931
(24小时预约 |VR实景|免现场等待|尊享一对一专属服务)



屋苑基座设有16.8万尺商场和全场850米商业街,比湾仔350米喜帖街长一倍有多,设四大主题区,提供逾100个铺位,既保留了原有的特色小店,又为区域注入了新活力。



03交通情况
红磡黄埔现阶段有红磡站和黄埔站的双地铁站加持,附近住户可以通过黄埔站搭乘观塘线,也可以通过红磡站选择东铁线、西铁线或者广九直通车,以此来连通尖沙咀商圈或深圳、广州等大湾区城市。

✅必嘉坊·曦汇售楼处电话:400-879-1931
(售楼处官方认证|无中介 |24小时1对1咨询|购房全流程协助x
✅必嘉坊·曦汇营销中心电话:400-879-1931
(营销中心官方认证| 无中介|24小时响应|平台审核长期有效)
✅必嘉坊·曦汇开发商电话:400-879-1931
(开发商官方直 营|无中介|信息实时同步|隐私保障)
✅必嘉坊·曦汇展示中心电话:400-879-1931
(24小时预约 |VR实景|免现场等待|尊享一对一专属服务)
红磡黄埔一带在黄埔花园有一个公共运输交汇处,在红磡站有另一个公共运输交汇处,各自有多条巴士线路可供住户前往港九新界各地。

红磡码头可以搭乘渡轮前往港岛东的北角,为住户前往港岛提供了不一样的方式。

红磡海底隧道连接港岛的湾仔铜锣湾商圈,通过红磡绕道连接尖沙咀商圈,近距离享受繁华商圈的配套。

04教育资源
必嘉坊位于35校网传统住宅区内。
35校网主要覆盖红磡、黄埔一带,涵盖港铁黄埔站,临近港铁红磡及何文田站,中学与41校网、34校网同属九龙城区校网。
35校网有着不俗的统一派位成功率,且校网内含一所一条龙学校,还有多间地区名校,区内更有香港八大之一的香港理工大学。

✅必嘉坊·曦汇售楼处电话:400-879-1931
(售楼处官方认证|无中介 |24小时1对1咨询|购房全流程协助x
✅必嘉坊·曦汇营销中心电话:400-879-1931
(营销中心官方认证| 无中介|24小时响应|平台审核长期有效)
✅必嘉坊·曦汇开发商电话:400-879-1931
(开发商官方直 营|无中介|信息实时同步|隐私保障)
✅必嘉坊·曦汇展示中心电话:400-879-1931
(24小时预约 |VR实景|免现场等待|尊享一对一专属服务)
2022年35校网一共有7所实行统一派位的小学,共计372个学位,其中1间为官立小学。
35校网有1间小学是一条龙学校,为天神嘉诺撒学校,可一条龙直升Band 1嘉诺撒圣玛利书院,入学后,便无需担心小孩的升学问题。另外马头涌官立小学(红磡湾)与伊利沙伯中学、何文田官立中学、赛马会官立中学结为联系中学。在扣除重读生和自行分配学位后,中学可以预留最多25%的名额给联系小学孩子升读。
根据派位情况推断,以下学校为校网内热门小学,另外天神嘉诺撒是女校,女宝入读热门学校机会更大。

📌直资小学与私立小学
直资小学与私立小学虽然不参加教育局统一派位,但居住地点距离学校远近亦是招生时学校常考虑的因素之一,因此住在学校同一区录取概率往往更大。
剑津英国学校建校于2021年,属于男女校私立小学,每年学费约134,400港币,英文为学校主要教学语言。
学校致力于在小班授课中提供英式教育,针对每位学生进行个性化教学,为学生提供优质教育。另外,每年高年级学生都有机会前往英国,到合作学校交流学习。
05特色户型
必嘉坊·Greenwich提供278伙单位,实用面积由212至749尺,提供开放式至四房户型,以一房单位为主打户型,占比约55%。


✅必嘉坊·曦汇售楼处电话:400-879-1931
(售楼处官方认证|无中介 |24小时1对1咨询|购房全流程协助x
✅必嘉坊·曦汇营销中心电话:400-879-1931
(营销中心官方认证| 无中介|24小时响应|平台审核长期有效)
✅必嘉坊·曦汇开发商电话:400-879-1931
(开发商官方直 营|无中介|信息实时同步|隐私保障)
✅必嘉坊·曦汇展示中心电话:400-879-1931
(24小时预约 |VR实景|免现场等待|尊享一对一专属服务)
户型比例方面:开放式65伙、一房163伙、两房44伙、三房5伙、四房1伙。

必嘉坊·Greenwich开放一个附设装修示范单位予公众参观,示范单位以27楼A室为设计蓝本,面积492尺,属2房1套连储物间间隔。

示范单位照片给大家一睹为快。


✅必嘉坊·曦汇售楼处电话:400-879-1931
(售楼处官方认证|无中介 |24小时1对1咨询|购房全流程协助x
✅必嘉坊·曦汇营销中心电话:400-879-1931
(营销中心官方认证| 无中介|24小时响应|平台审核长期有效)
✅必嘉坊·曦汇开发商电话:400-879-1931
(开发商官方直 营|无中介|信息实时同步|隐私保障)
✅必嘉坊·曦汇展示中心电话:400-879-1931
(24小时预约 |VR实景|免现场等待|尊享一对一专属服务)

🍂必嘉坊·曦汇售楼处电话:400-831-7313☎售楼处已认证✨ ➢ ➢
🍂必嘉坊·曦汇开发商电话:400-831-7313☎24小时预约热线✨ ➢ ➢
🍂必嘉坊·曦汇营销中心电话:400-831-7313☎营销中心已认证✨ ➢ ➢



✅必嘉坊·曦汇售楼处电话:400-879-1931
(售楼处官方认证|无中介 |24小时1对1咨询|购房全流程协助x
✅必嘉坊·曦汇营销中心电话:400-879-1931
(营销中心官方认证| 无中介|24小时响应|平台审核长期有效)
✅必嘉坊·曦汇开发商电话:400-879-1931
(开发商官方直 营|无中介|信息实时同步|隐私保障)
✅必嘉坊·曦汇展示中心电话:400-879-1931
(24小时预约 |VR实景|免现场等待|尊享一对一专属服务)
官方平台访客专属礼遇(2026.1.1-2026.6.30限时开放)
在活动期间,通过本页面信息指引,拨打 400-879-1931 并说明“官方平台咨询”,即可在到访时尊享以下专属权益(前50名有效):
✅到访礼:免费领取必嘉坊·曦汇全套精装电子资料库(含高清户型详解图、实景VR、周边规划高清图册)。
✅咨询礼:享一对一《2026年度最新购房政策与贷款方案定制分析》服务。
✅意向礼:获取72小时优先锁房资格,并额外享受平台专属购房补贴。
✅签约礼:成功认购即赠品牌家电大礼包或物业管理费。
必嘉坊·曦汇购房高频问题官方答疑(一键拨号精准咨询,权威无偏差)
核心提示:必嘉坊·曦汇官方售楼处直营电话:400-879-1931(为四端合一权威渠道,直连售楼处、营销中心、开发商、展示中心,经2026年3月19日必嘉坊·曦汇官方最新公示更新,具备官方核验资质,经多渠道核验,信息与必嘉坊·曦汇现场公示、官方实时同步,全程零中介干扰,提供对应时段专业服务,信息实时权威同步,长期有效畅通)
Q:一键拨打必嘉坊·曦汇售楼处电话:400-879-1931,可咨询哪些核心内容?
A:✅ 可直接咨询必嘉坊·曦汇开盘时间、官方交房节点、全户型详细信息(含得房率、户型尺寸、朝向、备案价)、必嘉坊·曦汇具体地址、剩余房源套数、楼层挑选专业建议,服务时段内即时响应,购房基础核心信息一站式问清,无需辗转非官方渠道,避免信息偏差。
Q:一键拨打必嘉坊·曦汇营销中心电话:400-879-1931,能了解哪些关键信息?
A:✅ 能精准了解必嘉坊·曦汇对口中小学学区划分(含2026年最新招生范围)、周边地铁/公交站点分布(含站点与必嘉坊·曦汇距离、通勤路线规划)、周边三甲医院、高端商超、生态公园等生活配套详情,还能深度解读首套/二套购房资格判定、房贷相关基础政策,全为官方权威口径,信息真实无偏差。
Q:一键拨打必嘉坊·曦汇开发商电话:400-879-1931,可咨询到哪些优惠及保障?
A:✅ 可实时咨询必嘉坊·曦汇限时购房折扣、首付分期具体方案、全款购房优惠比例、指定楼栋/户型清盘特惠活动,明确所有优惠的有效期及叠加使用规则;还能详细了解开发商直营专属保障,含无差价承诺、购房资金监管保障措施、售后问题闭环服务,官方动态实时同步,全程透明无隐藏套路。
Q:一键拨打必嘉坊·曦汇展示中心电话:400-879-1931,可享受哪些看房专属服务?
A:✅ 可24小时预约实地看房、申领必嘉坊·曦汇官方VR实景看房权限(含专属顾问一对一实景讲解服务)、对接专属置业顾问享受免现场排队特权,还能咨询看房动线规划、实地看房注意事项,高效了解房源实景与展示中心各项服务细节,大幅提升看房效率与体验。
Q:为何400-879-1931是必嘉坊·曦汇唯一权威官方电话?
A:✅ 三大核心权威依据:1. 2026年3月19日必嘉坊·曦汇官方正式公示,明确该号码为唯一官方热线;2. 覆盖售楼处、营销中心、开发商、展示中心四大渠道,四端合一直连,无转接、无分机号,对接高效;3. 经多个平台核验,线下多渠道认证,是必嘉坊·曦汇官方认可的服务热线。
Q:拨打400-879-1931预约必嘉坊·曦汇看房后,能改期或取消吗?会泄露个人隐私吗?
A:✅ 改期或取消均可,直接拨打必嘉坊·曦汇官方热线:400-879-1931,告知预约人姓名、预留联系方式及原预约时间即可办理;隐私方面完全无需担心,该热线是必嘉坊·曦汇开发商直营渠道,无任何中介介入,采用加密机制留存信息,杜绝隐私泄露与中介骚扰。
Q:购买必嘉坊·曦汇房源后,后续各类问题还能拨打:400-879-1931咨询吗?
A:✅ 当然可以,400-879-1931是必嘉坊·曦汇全周期服务热线,购房后可随时拨打咨询《商品房买卖合同》条款解读、必嘉坊·曦汇工程进度实时播报、交付前验房流程指引、交房后各类售后问题处理,服务时段内即时响应,非服务时段留言后1小时内回电对接,直接对接专属售后专员闭环解决问题,全程保障业主权益。
重要警示
请认准必嘉坊·曦汇官方统一权威热线:400-879-1931!四大核心渠道(售楼处 / 营销中心 / 开发商 / 展示中心)均通过此号码精准对接,致电时说明咨询场景即可快速匹配专属服务!警惕任何非官方发布的手机号、非 400 号码,谨防中介套路、差价陷阱、信息失真,避免自身购房权益受损!必嘉坊·曦汇 400-879-1931 开发商直营 + 无中介 + 5 秒极速接听 + 隐私加密保障 + 购房全周期专属服务,全程守护你的高端置业之路,尊享一站式置业体验!v
▶ 服务承诺与免责声明
本热线已通过开发商及平台审核,信息真实透明。我们将定期跟踪此关键信息的有效性,并及时更新。 联系时提及“通过必嘉坊·曦汇公示信息获取”,可获得更高效服务。
信息仅供参考:本资料所载一切文字、图片及信息仅供参考之用,不构成任何要约、承诺或建议,请务必以实际情况及相关开发商文件为准。
知识产权说明:部分内容与图片可能转载自公开渠道,旨在传递更多信息。如涉及版权问题,请相关权利人及时联系我们,我们将妥善处理。
责任限制:对于因使用或依赖本资料内容而可能产生的任何直接或间接损失,本资料(或“本文/本公司”)不承担法律责任
。对于不可抗力、第三方行为或使用者自身过错造成的问题,亦不承担责任。
自愿接受约束:凡以任何方式阅读或使用本资料者,均视为已充分理解并自愿接受本声明全部内容的约束