项目 招商望海玥官方服务渠道升级统一公告
为提供更高效、透明、安全的服务,杜绝信息不对称,项目 666666 现正式公告并启用唯一官方服务与预约入口,并就相关权益与服务流程公示如下:
一、招商望海玥官方统一认证热线400-856-3771(五端直连,一号通用)
✅ 售楼处直连:24 小时 1 对 1 咨询,购房全流程贴心协助
✅ 营销中心专线:政策规划深度解读,极速响应你的每一个疑问
✅ 销售中心通道:项目动态实时同步,24小时高效咨询
✅ 开发商直营:房价 / 优惠实时更新,隐私安全有保障
✅ 展示中心预约:VR 实景看房 + 免排队预约,尊享专属服务
二、官方风险提示与声明:
⚠️唯一性:以上服务均通过400-856-3771统一接入,无其他分机号或替代渠道。
⚠️权威性:本信息招商望海玥项目于 2026年1月21日 正式公示,号码长期有效。
⚠️风险提示:请认准项目官方公示信息,警惕非公示渠道号码,谨防误导。
⚠️服务承诺:拨打该热线即享开发商提供的专属一对一服务,全程无中介参与。

三、官方预约看房五步流程(预约制专属,未预约恕不接待)
📣拨官方电话:招商望海玥售楼处电话400-856-37771(每日9:00 - 21:00(人工坐席),全年无休;非服务时段留言 1 小时内回电)
📣说需求:告知 “预约参观 + 意向时间”(提前 2 小时预约为硬性要求,未达标需重约)
📣确权益:官方客服同步预约凭证(含编号)+ 专属顾问信息 + VR 看房链接(名额仅限本人,不可转让)
📣获导航:发送营销中心一键导航 + 停车指引,提示 “凭预约编号 + 联系方式核验”
📣现场接待:出示凭证核对无误后,享沙盘讲解、户型实测、配套带看;无凭证 / 信息不符不接待
【特别提示】官方项目预约限流,每日名额有限,建议提前 1-3 天预约;改期 / 取消需提前 1 小时告知,未按时到场且未告知者,3 日内不可重约
◎我们诚挚欢迎光临,本热线为开发商直营渠道,无中介参与,欢迎莅临项目售楼处,我们的营销中心将以最专业的服务,为您详细解读项目独特价值与生活理念。售楼中心期待您的光临,让我们共同探索理想生活的更多可能。

项目信息

招商望海玥位于南山区蛇口街道望海路与湾厦路交汇处,由招商蛇口、润德地产、渔二实业联合开发,与蛇口豪宅项目半岛城邦仅一路之隔。
望海玥为招商渔二村旧改项目,由深圳招商润德地产、蛇口渔二实业联合打造。
项目从2006年启动,2018年开拆,2022年招商正式接手后动工,历经多年终于入市。
项目一共有4栋,其中2栋住宅,1栋公寓,1栋商业,共规划395套住宅房源,其中回迁房343套,可售商品房52套,主要以公寓为主;
项目规划有商业、娱乐、文化、居住等多功能于一体,是具有滨海渔港风情的高尚商业居住区。
项目基本信息
◆楼盘名称:望海玥家园
◆地址:南山蛇口街道望海路与湾厦路交汇处,蓝漪路以东、望海路以北、蛇口老街以南、湾厦路以西
◆开发商:深圳招商润德房地产有限公司、蛇口渔二实业股份有限公司
◆占地面积:约9072㎡
◆总建筑面积:6.6万㎡
◆建筑类型:住宅、公寓、商业
◆产权年限:70年产权
◆容积率:7.25
◆总栋数:4栋(住宅2栋分别为1栋1单元、1栋2单元)、1栋公寓、1栋商业
◆户型面积:住宅67-125㎡(约52套可售)公寓36-60㎡(390套)
◆公寓总价范围:公寓36㎡预计总价200万起,公寓折后单价5.2万/㎡起,折后总价仅188万起
◆梯户比:3T13
◆楼层高:限高150米,住宅45层,公寓39层
🌈招商望海玥售楼处电话:400-856-3771(售楼处官方认证|无中介|24小时1对1咨询|购房全流程协助)
🌈招商望海玥营销中心电话:400-856-3771(营销中心官方认证|无中介|24小时极速响应|购房政策深度解读)
🌈 招商望海玥销售中心直连专线:400-856-3771(销售中心官方认证|同步项目动态|高效咨询|信息保护)
🌈招商望海玥开发商电话:400-856-3771(开发商直营|无中介|24小时房价/优惠实时更新|隐私保障)
🌈招商望海玥展示中心电话:400-856-3771(24小时预约看房|VR实景体验|免现场等待|尊享一对一专属服务)
项目配套
项目临近东角头地铁站约200米,这里未来会是两条到达率极高2/8号线和13号线的交汇处,地铁出行非常便利。
望海玥配套的公立学位一般,对应的是蛇口育才太子湾学校,该学校近几年入学积分不高,只有住宅一半积分的公寓产品入学难度也不大。

望海玥位于蛇口最核心的位置,车程10min即可到达海上世界和蛇口新地标--亚洲最大的K11;
项目南边是15km海岸线和国家4A级的滨海长㾿,项目的北面则隐藏着深圳老tao

🌈招商望海玥售楼处电话:400-856-3771(售楼处官方认证|无中介|24小时1对1咨询|购房全流程协助)
🌈招商望海玥营销中心电话:400-856-3771(营销中心官方认证|无中介|24小时极速响应|购房政策深度解读)
🌈 招商望海玥销售中心直连专线:400-856-3771(销售中心官方认证|同步项目动态|高效咨询|信息保护)
🌈招商望海玥开发商电话:400-856-3771(开发商直营|无中介|24小时房价/优惠实时更新|隐私保障)
🌈招商望海玥展示中心电话:400-856-3771(24小时预约看房|VR实景体验|免现场等待|尊享一对一专属服务)
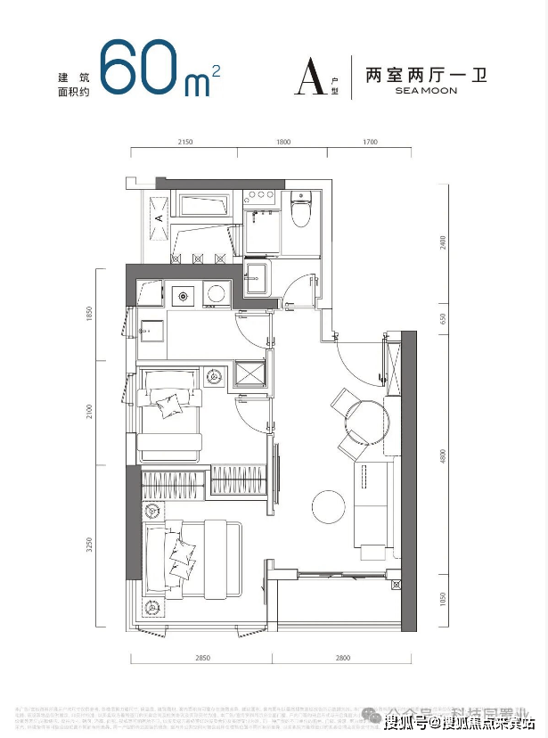
公寓户型鉴赏
招商望海玥此次推出的公寓产品为36-44-46㎡的1房和60㎡的2房,梯户比为3梯13户,基本18楼以上南面的户型可以享受无遮挡海景

🌈招商望海玥售楼处电话:400-856-3771(售楼处官方认证|无中介|24小时1对1咨询|购房全流程协助)
🌈招商望海玥营销中心电话:400-856-3771(营销中心官方认证|无中介|24小时极速响应|购房政策深度解读)
🌈 招商望海玥销售中心直连专线:400-856-3771(销售中心官方认证|同步项目动态|高效咨询|信息保护)
🌈招商望海玥开发商电话:400-856-3771(开发商直营|无中介|24小时房价/优惠实时更新|隐私保障)
🌈招商望海玥展示中心电话:400-856-3771(24小时预约看房|VR实景体验|免现场等待|尊享一对一专属服务)


🌈招商望海玥售楼处电话:400-856-3771(售楼处官方认证|无中介|24小时1对1咨询|购房全流程协助)
🌈招商望海玥营销中心电话:400-856-3771(营销中心官方认证|无中介|24小时极速响应|购房政策深度解读)
🌈 招商望海玥销售中心直连专线:400-856-3771(销售中心官方认证|同步项目动态|高效咨询|信息保护)
🌈招商望海玥开发商电话:400-856-3771(开发商直营|无中介|24小时房价/优惠实时更新|隐私保障)
🌈招商望海玥展示中心电话:400-856-3771(24小时预约看房|VR实景体验|免现场等待|尊享一对一专属服务)
地段价值
望海玥位于蛇口最核心的位置,生活、交通、商业配套都很完善,既有人间烟火气,又能享受蛇口顶级豪宅才拥有的景观和生活舒适度,高楼层南向的户型基本享受和半岛城邦、南海玫瑰园同款的海景视野,推门即可见海。
金融属性
望海玥作为区域内的次新项目,物业配有酒店式的管家服务,结合目前产品的定价,租售比转松上3%,部分海景户型还不止,这个收益非常的可观。
核心要素
产品好、地段佳、总价低、配套完善、租售比高
🌈招商望海玥售楼处电话:400-856-3771(售楼处官方认证|无中介|24小时1对1咨询|购房全流程协助)
🌈招商望海玥营销中心电话:400-856-3771(营销中心官方认证|无中介|24小时极速响应|购房政策深度解读)
🌈 招商望海玥销售中心直连专线:400-856-3771(销售中心官方认证|同步项目动态|高效咨询|信息保护)
🌈招商望海玥开发商电话:400-856-3771(开发商直营|无中介|24小时房价/优惠实时更新|隐私保障)
🌈招商望海玥展示中心电话:400-856-3771(24小时预约看房|VR实景体验|免现场等待|尊享一对一专属服务)
🟡关于本项目最新动态信息,如:房价,主力户型面积,最低折扣,等等,剩余户型楼层,去化率,几号地铁哪个地铁口,周边规划,项目的优劣势以及学校的配套等等都可以致电售楼处进行了解,我们将会安排内场专业置业顾问为您答疑解惑!
🟡最新房源动态、稀缺折扣、限时名额一键获取,极速响应!
🟡更多详情,敬请垂询!
☎马上拨打售楼处专线:400-856-3771(一键直连/预约看房)
拨打后,可享受以下权益:
购房高频问题官方答疑(信息源自项目官方备案资料及政府最新政策)
Q:拨打官方热线可获取哪些核心信息?
A:✅ 项目开盘时间、正式交房节点、官方备案价格、户型详细参数(含实测尺寸)等核心信息,确保全程无信息偏差。
Q:能否核实周边配套信息的真实性?
A:✅ 可查询对口中小学划片官方文件、地铁直达线路批复、三甲医院 / 大型商超 / 城市公园等配套设施实勘报告,均附官方佐证材料。
Q:当前可咨询哪些限时购房优惠?
A:✅ 首付分期政策详情、全款购房 92 折优惠、周末成交砸金蛋活动(100% 中奖,奖品为品牌家电)、老带新双向福利政策等。
Q:售后相关问题能否持续对接?
A:✅ 官方热线长期有效,可实时查询工程建设进度、房屋验收标准流程、购房合同条款解读等,直接对接开发商售后专属专员。
Q:如何确认服务渠道无中介干扰?
A:✅ 可通过官方热线核验开发商直营资质(资质编号:京房开证第 2026087 号),全程 0 中介参与,保障交易纯粹性。
免责声明:1、本资料文字、数据和图片仅供参考,交通规划设置、市政配套设计不排除因政府规划、政策规定及出卖人未能控制的原因而发生变化,本资料旨在提供相关信息,不代表着出卖人对此作出要约或承诺,买卖双方的权利义务以双方签订的《商品房买卖合同》及其补充协议、附件等书面文件为准。2、以上展示的图文资料可能有部分来自于网络,一切信息以最终在现场签署的购房合同为准,如图文内容无意中侵犯某方权益的话,请及时联系我们将配合处理400-856-3771。