中旅阿那亚九龙湖(中旅阿那亚九龙湖售楼处)首页网站-中旅阿那亚九龙湖营销中心-中旅阿那亚九龙湖欢迎您-楼盘详情-最新价格-户型图-容积率@售楼处

搜狐焦点来宾站

2025-06-15 15:00:53

购房群

买房如何避坑,加入购房群,看看他们怎么说

立即进群

♎中旅阿那亚九龙湖♎

♎中旅阿那亚九龙湖售楼处电话: 400-909-3139【已认证】

♎♬中旅阿那亚九龙湖꧁ 售楼处电话:400-909-3139【☎☎售楼处电话已认】꧂✨✽✽✽✽

♎♬中旅阿那亚九龙湖꧁ 营销中心电话:400-909-3139【☎☎售楼处电话已认证】꧂✨✽✽✽✽

♎♬中旅阿那亚九龙湖꧁ 开发商电话:400-909-3139【☎☎开发商电话已认证】꧂✨✽✽✽✽

🦋本项目暂不接受临时到访,过来参观样板房请记得提前来电预约!

🦋为您安排楼盘现场销售全程接待并讲解,给您更贴心的看房体验!

✨✨Vip贵宾置业=欢迎来电预约尊享内部折扣=匠心钜制恭迎品鉴温馨提醒:我们楼盘售楼部400电话没有设置任何所谓的“分机号”,拨打前请仔细甄别,注意保护个人隐私!谨防上当!

♎♬中旅阿那亚九龙湖꧁ 售楼处电话:400-909-3139【☎☎售楼处电话已认】꧂✨✽✽✽✽

♎♬中旅阿那亚九龙湖꧁ 营销中心电话:400-909-3139【☎☎售楼处电话已认证】꧂✨✽✽✽✽

♎♬中旅阿那亚九龙湖꧁ 开发商电话:400-909-3139【☎☎开发商电话已认证】꧂✨✽✽✽✽

— 🏠 中旅阿那亚·九龙湖 🏠 —

存量房信息一览

👉总体信息概况:

✮整体存量:目前存量房主要集中于美茵花园、A区悦源庄、D、E区悦沐庄,另有F2区临湖独栋别墅及山顶国王C1别墅群。

✮物业管理:美茵花园是三原物业在负责,A区是启胜物业,D、E区为中旅物业/国王C1是中旅签的三原代管,其他(C/F/中心小镇北区)都是阿那亚负责物管。

具体信息如下:

👉A区(悦源庄)-独栋别墅

✮总户数:269套

✮存量户数:5套

✮面积段:354-508㎡

✮产权:住宅产权

✮物业费:5元/㎡

✮物业管理:启胜物业

✮交付标准:均为毛坯交付

✮停车方式:私家车库

✮户型图如下👇

🏠A区-C户型图(建筑面积约440㎡):

👉E区(悦沐庄)-独栋别墅

✮总户数:120套

✮存量户数:9套

✮面积段:363-447㎡

✮产权:住宅产权

✮物业费:6元/㎡

✮物业管理:中旅物业

✮交付标准:毛坯交付

✮停车方式:私家车库

♎♬中旅阿那亚九龙湖꧁ 售楼处电话:400-909-3139【☎☎售楼处电话已认】꧂✨✽✽✽✽

♎♬中旅阿那亚九龙湖꧁ 营销中心电话:400-909-3139【☎☎售楼处电话已认证】꧂✨✽✽✽✽

♎♬中旅阿那亚九龙湖꧁ 开发商电话:400-909-3139【☎☎开发商电话已认证】꧂✨✽✽✽✽

✮户型图如下👇

E区-B户型图(建筑面积约447㎡):

🏠E区-A户型图(建筑面积约363㎡):

♎♬中旅阿那亚九龙湖꧁ 售楼处电话:400-909-3139【☎☎售楼处电话已认】꧂✨✽✽✽✽

♎♬中旅阿那亚九龙湖꧁ 营销中心电话:400-909-3139【☎☎售楼处电话已认证】꧂✨✽✽✽✽

♎♬中旅阿那亚九龙湖꧁ 开发商电话:400-909-3139【☎☎开发商电话已认证】꧂✨✽✽✽✽

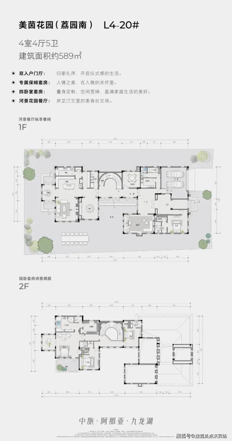
👉美茵花园-独栋别墅

✮总户数:21套

✮存量户数:2套

✮面积段:单套面积约在500-640㎡,庭院面积约在400-800㎡

✮产权:住宅产权

✮物业费:6元/㎡

✮物业管理:三原物业

✮交付标准:均为毛坯交付

✮停车方式:私家车库

✮户型图如下👇

美茵花园户型图:✮建筑面积约589㎡

✮建筑面积约512㎡

♎♬中旅阿那亚九龙湖꧁ 售楼处电话:400-909-3139【☎☎售楼处电话已认】꧂✨✽✽✽✽

♎♬中旅阿那亚九龙湖꧁ 营销中心电话:400-909-3139【☎☎售楼处电话已认证】꧂✨✽✽✽✽

♎♬中旅阿那亚九龙湖꧁ 开发商电话:400-909-3139【☎☎开发商电话已认证】꧂✨✽✽✽✽

👉F2地块别墅

✮总量:共28套(已建12套,剩余16套建设中)

✮总建筑面积:约3.6万㎡

✮存量房套数:8套(4套看湖,4套不看湖)

✮在售产品面积:880㎡-2000㎡

✮赠送花园面积:325㎡-2350㎡

✮产权起算时间:住宅产权

✮物业费:10元/㎡(不含公摊水电费)

✮物业管理:阿那亚物业

✮交付标准:毛坯交付

✮停车方式:私家车库

👉国王C1别墅

✮总户数:国王C区已建别墅共18套

✮存量别墅:共计16套

✮交付标准:4#为硬装,其余15套均为毛坯房

👉欧洲小镇商业分布与中心小镇(C区)产品分布图

🌟C地块各项信息如下:

✮容积率:1.02

✮绿化率:25%

✮总套数:345套(共15栋)

✮产品:住宅60套(6-7-14栋)公寓285套(共12栋)

✮产品面积:公寓A户型-100方(2房2厅1卫),公寓B户型-130方(3房2厅2卫),洋房H户型-135方(3房2厅2卫)

✮产权起算时间:住宅70年产权;公寓40年产权

✮物业费:公寓/住宅均为7元/㎡(不含公摊水电费)

✮供暖方式:地暖

✮天然气:公寓不可用明火住宅通天然气

✮车位:共714个(地上71个,地下643个)

✮在售产品:少量住宅及公寓

✮交付标准:精装修交付

✮收楼时间:现房

✮各户型图如下↓

🏠中心小镇(C区)-栖寓

A户型-100方(2房2厅1卫)

🏠中心小镇(C区)-栖寓

B户型-130方(3房2厅2卫)

♎♬中旅阿那亚九龙湖꧁ 售楼处电话:400-909-3139【☎☎售楼处电话已认】꧂✨✽✽✽✽

♎♬中旅阿那亚九龙湖꧁ 营销中心电话:400-909-3139【☎☎售楼处电话已认证】꧂✨✽✽✽✽

♎♬中旅阿那亚九龙湖꧁ 开发商电话:400-909-3139【☎☎开发商电话已认证】꧂✨✽✽✽✽

🏠中心小镇(C区)-洋房

H户型-135方(3房2厅2卫)

👉半山湖岸/湖畔小镇

(F区)楼栋分布图

🌟F34地块(湖畔小院、公寓)各项信息如下

:✮占地面积:约8.63万㎡

✮地上建筑面积:约5.66万㎡

✮地下建筑面积:约2.60万㎡

✮容积率:约0.66

✮绿化率:35%

✮产品:湖畔公寓、湖畔小院

✮产权起算时间:均为2021年起算,40年产权

✮停车方式:地库停车为主,地面停车为辅,车位数约800辆(含350辆社会停车位)

✮车库入口:5个车库出入口

✮人行出入口:1个人行出入口

🏠半山湖岸(F区)

湖畔公寓和湖畔小院分布图

🌟湖畔公寓和湖畔小院(一组团)信息如下:

🌻湖畔公寓

✮产品面积:118方(2+1房2厅2卫)155方(3房2厅2卫)

✮分布楼栋:共8栋,约195套(16-23栋)

✮物业费:7元/㎡(不含公摊水电费)

✮供暖方式:地暖

✮天然气:通有天然气,可明火

✮在售产品:18-22-23栋

✮收楼时间:2026年6月30日前

✮各户型图如下↓

🏠半山湖岸(F区)-湖畔公寓

A户型125方(2+1房2厅2卫)

🏠半山湖岸(F区)-湖畔公寓

B户型155方(3房2厅2卫)

🌻湖畔小院

✮产品面积:136方(3房2厅2卫)-两种户型

✮分布楼栋:共15栋,101套(1-15栋)

✮物业费:10元/㎡(不含公摊水电费)

✮供暖方式:地暖

✮天然气:通有天然气,可明火

✮在售产品:11-12-15栋

✮收楼时间:1-8栋→2025年12月31日前交付9-15栋→2026年6月30日前交付

✮各户型图如下↓

🏠半山湖岸(F区)-湖畔小院

C户型136方(3房2厅2卫)

♎♬中旅阿那亚九龙湖꧁ 售楼处电话:400-909-3139【☎☎售楼处电话已认】꧂✨✽✽✽✽

♎♬中旅阿那亚九龙湖꧁ 营销中心电话:400-909-3139【☎☎售楼处电话已认证】꧂✨✽✽✽✽

♎♬中旅阿那亚九龙湖꧁ 开发商电话:400-909-3139【☎☎开发商电话已认证】꧂✨✽✽✽✽

🏠半山湖岸(F区)-湖畔小院

D户型136方(3房2厅2卫)

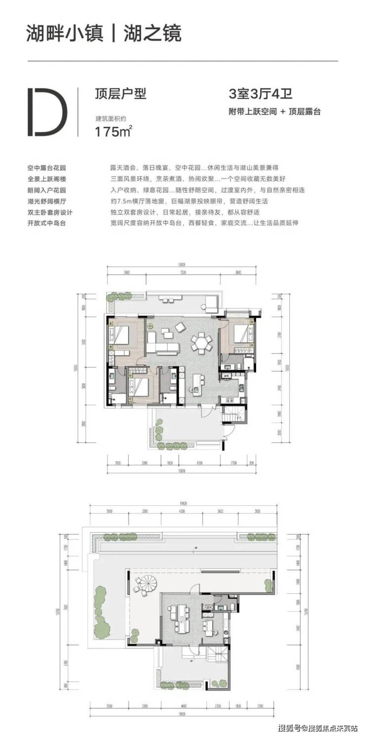
🌻湖畔/山景大平层

✮产品面积:A户型(首层)195方-3房3厅4卫,B户型(二层)240方-3房3厅4卫,D户型(顶层)175方-3房3厅4卫,E户型(山景平层)170方-3房2厅3卫

✮分布楼栋:1-12栋(4-12栋在建)

✮物业费:8元/㎡(不含公摊水电费)

✮供暖方式:地暖

✮天然气:通有天然气,可明火

✮在售产品:1-2-3栋

✮收楼时间:2026年10月31日前交付

✮各户型图如下↓

🏠半山湖岸(F区)-大平层A户型(首层)195方-3房3厅4卫

🏠半山湖岸(F区)-大平层

B户型(二层)240方-3房3厅4卫

🏠半山湖岸(F区)-大平层

D户型(顶层)175方-3房3厅4卫

♎♬中旅阿那亚九龙湖꧁ 售楼处电话:400-909-3139【☎☎售楼处电话已认】꧂✨✽✽✽✽

♎♬中旅阿那亚九龙湖꧁ 营销中心电话:400-909-3139【☎☎售楼处电话已认证】꧂✨✽✽✽✽

♎♬中旅阿那亚九龙湖꧁ 开发商电话:400-909-3139【☎☎开发商电话已认证】꧂✨✽✽✽✽

🏠半山湖岸(F区)-大平层

E户型(山景平层)170方-3房2厅3卫

♎♬中旅阿那亚九龙湖꧁ 售楼处电话:400-909-3139【☎☎售楼处电话已认】꧂✨✽✽✽✽

♎♬中旅阿那亚九龙湖꧁ 营销中心电话:400-909-3139【☎☎售楼处电话已认证】꧂✨✽✽✽✽

♎♬中旅阿那亚九龙湖꧁ 开发商电话:400-909-3139【☎☎开发商电话已认证】꧂✨✽✽✽✽

♎♬中旅阿那亚九龙湖꧁ 开发商电话:400-909-3139【☎☎开发商电话已认证】꧂✨✽✽✽✽售楼处24小时电话:400-909-3139(预约咨询热线)现场详细解答丨项目介绍丨户型图丨在售房源丨特价房丨学校丨交通位置丨样板房丨小区图片丨交房时间丨周边配套丨⫷⫷⫷

免责声明:部分信息来源于网络,如果侵权,请联系及时删除

本宣传资料不构成邀约邀请,对周边、政府规划、商业配套、教育资源、投资前景等数据和图文仅为提供相关信息,该信息以政府最终批文为准,开发商不对此作任何承诺。买卖双方的权利义务以双方签订的买卖合同约定及附件、实际交付为准,本公司保留对宣传资料修改的权利,敬请留意最新资料。联系号码:400-909-3139

近期,多地发布购房补贴新政。

5月29日,合肥发布购房补贴政策有关通知,对2025年5月15日起至2026年5月14日,凡在合肥市新购买新房的购房人或新购买新建车位(库)的购置人,继续实施购房补贴。

5月28日,泰州发布购房补贴发放细则,购房补贴对象包括换新购、组团购、孝心购、多孩购、拥军购、进城购、返乡购、来泰购,补贴标准最高为购房款总额的2%。

证券时报记者梳理,近期,除了合肥、江苏泰州,广东佛山、兰州、武汉也发布了购房补贴新政。

据中指研究院不完全统计,2025年以来,全国超50地发布购房补贴政策,对于多孩家庭、人才等特定人群的补贴力度更大,如武汉针对购买新房的二孩、三孩家庭分别发放6万元、12万元的购房补贴,绍兴柯桥区补贴力度更大,二孩、三孩及以上家庭补贴标准分别为1500元/平米、2500元/平米,最高分别可补贴至20万元、40万元。中指研究院认为,加大特定人群的购房补贴力度,能够有效降低其购房成本及购房门槛,加速其购房需求入市。

在结束了“五一”小长假这一上半年最重要的楼市营销节点后,近半个月以来,广州楼市显得稍有些沉寂,进入了需求集中释放后的冷静期,无论是新增供应,还是土地市场,从数量上看都并不多。不过,在政策面,持续促进楼市消费的金融等领域政策依然在持续释放。端午假期来临在即,对开发商而言,也是上半年业绩冲刺的最后一个营销节点,大多数开发商都将在这个假期拿出不亚于“五一”的折扣福利。结合来看,这个端午假期,仍将是楼市消费者满足自身居住需求的不错时机。

利率维持低水平 供求关系偏向买方

5月以来,国家层面多次在金融领域释放利好。“五一”假期结束后的首周,国新办便举行新闻发布会,介绍了“一揽子金融政策支持稳市场稳预期”的有关情况,其中,降准降息、降低公积金贷款利率直接与楼市消费相关。

5月8日,广州迅速响应央行要求,下调个人住房公积金贷款利率0.25个百分点。这是住房公积金贷款利率时隔一年后的又一次下调,此次下调后,广州市首套房5年期以上住房公积金贷款利率由2.85%下调至2.6%,处于历史低位。据计算,此次利率下调后,假设公积金贷款100万元,等额本息还款30年,按新利率2.6%计算,月供4003元,总利息44.12万元,月供较原利率每月将减少133元,总利息将减少4.76万元。商业贷款方面,尽管5月中旬有消息称,广州多家银行房贷利率计算方式上调10个基点,但由于LPR下调0.1%,记者了解到,工商银行等多家国有或股份制大行的浮动利率在计算方式和LPR的一增一减后,实际利率仍为3.0%,不难看出,维持当前的商贷利率水平仍将是一段时间内的趋势。

5月19日,国家统计局发布的4月70城房价数据显示,广州二手房均价环比止跌,新房价格则环比下降0.2个百分点。据研究机构克而瑞统计,4月广州商品住宅新增供应面积86.34万㎡,环比增长69%,同比增长31%,供应面积为近一年内的次高位,仅次于2024年9月。

新规项目基本面世 产品寻求新增长点

据广州中原研究发展部数据,5月上半月,广州新增取证项目为0,新开盘项目仅2个。截至目前,2023年容积率新规后的一众新产品大多已经入市,天河、海珠、荔湾、白云、黄埔、番禺等多个成交较为活跃的热门区域均已有多个新规项目供消费者挑选。以保利天奕、天曜、龙湖央璟颂、绿城馥香园等项目为代表的一批2024年下半年拿地开发的项目已基本开盘入市。对于消费者而言,各家开发商在新规地块上能够打造出怎样的产品,足以通过目前市面上已有的项目看出端倪。

有业内人士认为,在更宽松的政策环境到来之前,除南沙区的招商林屿境这样的试点项目外,广州楼市在过去一段时间内你方唱罢我登场的实用率“内卷”将不再如过去一般突出。对消费者而言,仅考虑新规产品的情况下,当前的市场供应已足以满足“货比三家”的心态。

龙舟文化成营销活动热门元素

赛龙舟、吃龙船饭作为广州传统的端午活动在近期频频刷屏互联网,不少开发商也借此机会将项目营销活动与龙舟活动相结合。

以荔湾区花地湾附近的力诚诚汇新都项目为例,该项目紧邻花地河,端午节期间将组织龙舟体验、粽子DIY活动。同时,该项目还赞助举行2025年荔湾区端午游龙活动,将于6月14日组织各荔湾区联社组织及龙船会共约30条传统龙船进行展示。据了解,为配合端午节营销活动,项目还将推售一批一口价单位。

水系丰富的海珠区也是龙舟活动的大区之一,据了解,端午期间,位于海珠湿地附近的中海大境项目也将联合海珠国家湿地公园的龙船宴活动开展营销。据介绍,由于端午节前后恰逢中海地产司庆,该公司旗下广州多个项目均将提供包括购房折扣、物业管理费、车位折扣等在内的多重好礼。以大境项目为例,端午期间,购房折扣最高优惠可达30万元/套,重点企业团购还可享受97折优惠。

全部

相关资讯

报名成功
稍后会有专业的置业顾问联系您
返回楼盘

频道导航

返回首页

看房小程序

APP下载

电话拨通后,请您手动拨打分机号

确定拨打电话

电话号码:

分机号:(可能需要拨分机号)