京基御景峯项目简介(最全版)
南山大学城 · 64万㎡生态人文综合体
——全盘简介 ——
总建面:约64万㎡
业态:高端公寓、精品住宅、旗舰商业、总裁办公四位一体
1期:
御景峯公馆(住宅+公寓,均已入伙)
2期:
御领公馆 (2、3栋已入伙,1栋在售)
3期:
御景峯大厦 (1、2、3座在售)
京基御景峯项目概况
开发商:京基地产
地址:位于南山区西丽留仙大道与长源二街交汇处
占地面积:64,000㎡
总建筑面积:640,000㎡
产权期限:70年(17-87年)
总套数:584套
户型面积:68-228㎡,涵盖2至4房
车位数量:3,247个
梯户比:5梯6户/6梯4户
售价区间:3.8-5万元/㎡
交楼标准:精装修
物业管理:京基物业,费用为4.7元/㎡·月
容积率:7.7
绿化率:35%
交楼状态:现楼交付
建筑类型:公寓
层高:3.1-3.7米
使用率:70%
建筑楼层及栋数:包含1座47层、2座41层建筑,共9栋
水电标准:民用水电
商业配套:约37,000㎡
教育资源:待定
户型价格示例:68㎡一房一卫,总价380-450万元,单价约5-6.6万元/㎡
房源信息
157㎡三居室,双卫,售价区间为650-800万元,单价在4.1-5万元/平方米。
218-228㎡四居室,三卫,售价区间为888-1050万元,单价在4-4.6万元/平方米。

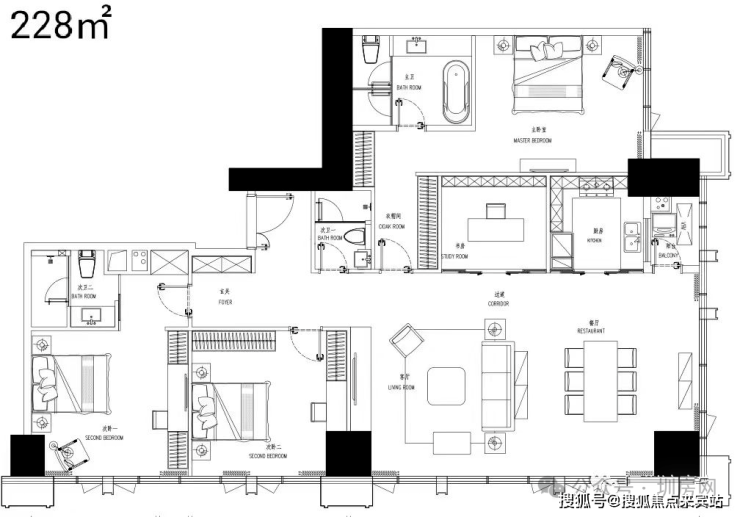
平面布局与户型图
提供详细平面布局和户型图。




区域与地段优势
优越地理位置
西丽区位于深圳市的科创高地,汇聚众多总部基地,是深圳六大总部基地之一。南山大学城、留仙洞总部基地和深圳北站总部基地均位于此区域,形成了深圳“中国硅谷”的三大核心引擎。未来西丽将成为深圳科技创新和人文发展的双高地。
西丽湖国际科教城
西丽湖国际科教城占地69.8平方公里,聚集了包括清华大学、北京大学在内的18所顶尖高校,拥有2家省级实验室。该区域共有78位两院院士,其中28位为全职院士,还有223位“千人专家”、1.4万名科研人员和4.54万名在校生。这里产学研深度融合,成为城市智慧高地。
留仙洞总部基地是深圳的六大总部基地之一,汇聚了众多全球知名企业的总部。目前,大疆创新、航天科工、传音和万科等代表性企业已入驻该基地。预计未来将形成超过3000亿元的产业集群,并吸引至少60万高技术和高消费的财智人群。
深圳北站总部基地享有2000亿政策红利,规划商业服务业规模约550万平方米,计划引进20至30家大型总部企业和上市公司,目标是打造成为具有全球影响力的国际会客厅。目前美团科技、深圳高铁总部、深圳通以及深圳计算科学研究院等巨头已进驻。

在交通与配套设施方面,该区域拥有核心枢纽,提供多维立体交通,便捷通达全城。通过无缝接驳5号线长岭陂站,一站直达深圳北站,方便前往南山福田中心及其他六大总部基地。此外,双高铁枢纽包括深圳北站和西丽高铁站(正在规划中)。四条轨道线在此交汇:5号线连接地铁4、7、13号线(建设中),从东向西可到达罗湖区和前海自贸区。
城市主干道布局:留仙大道、南坪快速、福龙路与沙河西路共同构成2横2纵的交通网络,侨城东路北延线正在建设中。
生态景观:区域环境得天独厚,自然山水环绕,繁华与宁静可悠然切换。西丽位于大沙河长廊上游,“绿色飘带”贯穿深圳黄金中轴线,绿化覆盖率超过60%,居全市首位。拥有塘朗山的广袤绿意和长岭皮水库的开阔景致,连接广东省二号生态休闲绿道,集山、水、园、道四重生态环境于一体,尽享清新空气与自然阳光。

文化体育设施:区域内配备了深圳大学科技图书馆、大学城体育中心等文化设施,以及规划中的西丽文体中心,提供丰富的文体活动选择。周边还有广东省二号生态休闲绿道、西丽高尔夫俱乐部及麒麟山庄国宾级度假中心等高端休闲配套。

商业配套:项目自带3.7万平方米的商业设施,与塘朗城相邻,满足日常购物与娱乐需求。
宝能环球汇项目拥有8万㎡的商业规模,并配备了近20万㎡的商业配套,形成超大型商圈。这一配置提供了一站式的休闲娱乐体验。此外,该项目附近还有7.5万㎡的万科云城商业、4万㎡的众冠时代广场和3万㎡的北站缤果空间。驾车仅需15分钟即可到达华润万象天地。
教育资源方面,周边有多所优质学校,包括小学如道尔顿新华公学、南科大第一实验小学、南科大第二实验小学和南科大塘朗小学;中学有育才龙珠学校、南外桃源中学和桃苑实验学校。
医疗资源也非常丰富,临近深圳大学总医院和深圳市孙逸仙心血管医院等医疗机构,为居民的健康提供保障。
京基品牌具有28年的深厚底蕴,是国家房地产开发一级资质企业,也是深圳地产30年十大领袖品牌之一。该品牌曾开发多个经典项目,如京基100和京基滨河时代等,已成为地标性建筑的创造者。
产品亮点包括大平层布局、奢阔层高和开阔采光。

大平层布局,品味纯粹,约3.4-3.7米奢阔层高,最大约14米开间尺度,彰显高端生活。全玻璃幕墙设计,流线型美学立面,采用深灰色铝板和LOW-E中空落地玻璃幕墙,节能、隔热、降噪。

约9-14米开间,多面采光,270°IMAX环幕视野,山水画卷尽入眼帘。奢阔梯户比,品牌日立电梯,6梯6户和6梯4户奢华配置,匹配高端人士的身份和品位。
深圳【京基御景峯公寓】
“好房子”要怎么建?
从今年期间的讨论到5月起新规范正式落地实施,无论是各地政府还是房地产企业,都把建设“好房子”当成未来房地产项目的销售“秘笈”,就连一些已经开盘的项目,也紧急按下暂停键,重新规划设计,赶上“好房子”的第一班车。
与此同时,“好房子”建设的风潮也吹进了老旧房子的市场。5月20日,国新办举行新闻发布会,介绍《关于持续推进城市更新行动的意见》有关情况,部署推进好房子、好小区、好社区、好城区“四好”建设,同时加强既有建筑改造利用,努力把老房子、旧房子也改造成好房子。
但究竟什么才是“好房子”?“好房子”应该怎么建?它不仅影响着购房者的“下单”动力,也左右着未来住房项目的成本和利润。
界面新闻通过走访了解到,当前市场“好房子”的标准涵盖层高、电梯、隔音、智能化、绿色化等多个维度,新规范对此有明确标示。但从当下这一过渡时期来看,虽然越来越多的品质优、设计新的住宅项目涌现,但各个项目在“好房子”上下的功夫差异较大。
层高是《住宅项目规范》最受关注的一个维度,也是“好房子”的一个显性特点。《住宅项目规范》规定,新建住宅建筑层高不得低于3米,卧室和起居室的净高不得低于2.6米,局部净高不得低于2.2米,且其面积需控制在室内的三分之一以下。而在此之前,按照2012年版的《住宅设计规范》规定,住宅层高宜为2.8米。此次“不低于3米”的规定将整体层高提升了0.2米。
界面新闻了解到,今年很多开盘的项目,已经执行了新的层高要求,并随之对室内设计进行了调整。包括增加了中央空调、地暖、更具设计感的吊顶等占据层高的室内设备,而以往因为层高在2.9米左右,地暖等设备并不是标配。
此外,新规范还提高了墙体和楼板隔声性能。将卧室、起居室楼板的撞击声隔声性能指标“不应大于75分贝”提升为“不应大于65分贝”。还提高了建筑外窗的隔声性能,较现行标准提升了5分贝。
位于酒仙桥的中海·萬吉玖序十分强调这一建设标准。据该项目相关工作人员介绍,中海·萬吉玖序采用某知名品牌的超静音管道以及专业的卡扣件,极大降低管道中水流噪音和回声。另外在管道上还包封了隔音棉,同样能降低水流噪音。
门窗也是阻隔室内噪音的关键。中海·萬吉玖序方面介绍,该项目的窗户采用三玻两腔,在三层玻璃中间还填充了氩气。“当噪音来临的时候,我们的外窗静音效果大于35分贝。”上述工作人员说。而入户门的门角填充了膨胀珍珠岩,既可以隔声也可以隔热。此外,无论是外墙还是室内隔墙,都采用了隔音效果更好的材料,不仅隔绝外部噪音,也隔绝房间与房间之间的噪音。
从上述介绍内容可以看到,房地产企业对产品细节和“好房子”建设标准的重视程度越来越高,不仅是上述这一高端住宅项目如此,其他住宅项目也在结合自身优势匹配“好房子”的特点,并将其更系统、更详细地传达给购房者。
新规范重构产业链
如果说层高、隔音等要求更高的建设标准是住宅产品的显性因素,很容易成为购房者首先关注的点,那么智能化则是“好房子”的隐形因素,在未来更加科技化的社会中,智能化可以带来更深层更完善的居住体验,而这种更深层次的建造变化会带来产业链的重新搭建。
同样以中海·萬吉玖序为例,该项目在室内配置了由中海科技研发的看板系统——小海同学,可以记录家中所有设备的使用说明书,即便多年之后,也可以找到维修、使用的相关信息。“它是全屋的智能中枢,既可以兼容房屋交付时所配置的各种设备,也可以兼容未来改装时新配置的设备,而且未来还可以不断升级。”中海·萬吉玖序的工作人员对此表示。
界面新闻走访其他项目时发现,虽然很多项目都提供智能中枢的设备,但其智能化的程度不同,通州一项目的智能中枢无法兼容后续添置的新设备,在监控、掌握全屋设备使用说明等功能上也不太一样。
另外,针对老人和小孩,也有不少住宅项目装设了相应的监控系统。其中中海·萬吉玖序配置了毫米波雷达监测系统,如果老人、小孩跌倒或者出现异常体位,该系统就可以及时报警,而且相关信息还会通过APP直接传达给家人。
一位近期在看房的购房者表示,家中老人年纪大,这种实时监控能够很好地解决未来可能遇到的意外。但在看到配备了检测系统的住宅项目之前,他们没想到原来室内的设备可以这样便捷。
房地产企业也看到这些新设计即将带来可观的购房转化率。上述业内人士表示,诸如检测设备、全屋系统检修、智能门锁、燃气监控等系统,未来将会成为趋势,不同配置的住宅产品,其搭配的智能系统也会有所差异,这就拉开了不同住宅之间的差距,也让新房与二手房之间的差距拉大,在一定程度上减少同质化竞争,拉动二手房买家转向新房市场。
除了硬件的调整,社区的软件调整也需要紧跟市场需求,比如社区运营要更加创新,但这一点很容易被行业忽视。
在天津万科副总经理胡宸恺看来,以前房地产建造一个住宅项目,其逻辑是开发和建造的逻辑,物业管理也相对粗放,但是现在要转移到运营的逻辑上,要对一个社区进行经营和运营。
“以前住宅项目是单核生长,主要看周边配套大体上是否便利,如今要更多地考虑小区门口的乐居商业,比如咖啡馆、花店、便利店、面包店等,甚至是用户不用出地库就可以直接和这些商业有交集,而且这些商店还会不定时组织针对社区居民的活动。”胡宸恺说。
从规模扩张、简单复制产品到围绕购房者需求而不断完善、不断提高建设标准,房地产企业正在借助“好房子”政策寻找更适配的商业模式和建造模式。而在这些改变背后,新的产业链也正在形成。谁能最快打通这条产业链,谁才有可能在“好房子”建设中取得优势。
但此前在较大的成本压力下,智慧住宅打造的动力略显不足,未来要做智慧住宅,开发商也需要重新搭建供应链。“像华为、海尔等企业的市场灵敏度非常高,在智能化方面已有很强的技术基础,很容易与开发企业形成合力。”刘冰洋相信,如果智慧住宅的产品打造符合政策导向和市场需求,这些智慧化产品的链条会很快走到一起,这将成为房地产行业的机遇,而不是挑战。
另一方面,这些“好房子”的推出,也会给后续的住宅项目提供参考模版。上述业内人士表示,虽然当前一些豪宅项目并不是代表整个市场,“好房子”也不代表价格贵,但这些豪宅项目采用的好的设计和设备可以成为其他不同价位住宅项目的标杆。
据界面新闻了解,早在去年,中建集团就把建设好房子的模版搬上了行业展会,也获得了不少好评,在这个基础上,中建集团把“好房子”的技术全方位落地,才有了中海·萬吉玖序等33个“好房子”项目(第一批试点)。
增加的成本谁来买单?
“好房子”的政策齿轮开始转动,房地产企业和购房者都乐于见到“好房子”带来的市场活力,但建造标准的提高,也将带来成本的增加。
业内人士王先生表示,目前很多新房产品,尤其是改善类的基本都满足新规,现在主要是从文件上明确了,“从市场影响来看,更多的可能和建造成本有关,比如2.8米和3米虽然看起来就差0.2米,对楼层高的高层建筑来说,可能会少一层房子,少卖一层,利润还是有一定影响的。”
华润置地北京分公司也告诉界面新闻,建设“好房子”,要考虑到建筑成本(如梁柱、楼板、维护结构等)的增加,同时应系统考虑消防等一系列规范适配度满足好房子标准要求,对企业成本管理提出更高要求。
广东省住房政策研究中心首席研究员李宇嘉对此表示,未来“好房子”建设标准愈发完善,成本大概率还是由房地产开发商自己承担,这对他们来说是一个挑战,政策需要关注到这一点,可以在土地出让、营商环境、金融等方面一定支持,比如通过下调地价让开发商有更多空间开发好的产品,把利好释放给购房者。
从当前的情况看,政策能提供多大程度的支持仍是未知数,房地产企业更需要从自身降本增效,形成建设“好房子”的系统化解决方案便是可行的途径。
据界面新闻了解,中海的“好房子”核心模型从客户角度出发,形成了十六大科技体系,包括全屋体验系统、主动调节系统、数字智居系统、房屋耐久系统、能源运维系统等,可以系统性解决居民的切身通点。在这个系统里,既有中海自己的living智选体系,同时还中与诸多企业形成了合作关系,包括海尔、 科勒、老板电器(20.030, -0.09, -0.45%)、支付宝等等。
一位房地产从业者也表示,在预判客户居住需要的同时,房地产企业要用一个全新的建造体系和供应链去建造新产品,只要把这个过程中的产品采购体系调整好,降本增效就会实现。
“我们必然会经历一个时代,就是用更低的成本和更新的技术做出更好的体验,这是房地产行业始终要回答的一个问题。”胡宸恺说。

免责声明:文章中文字和图片之间无必然联系,仅供读者参考。请联系营销中心:400-835-2501