
翰熙典居基础
粤海之上 逾50万㎡地标级奢居综合体
总建设用地面积:约41659㎡
总建筑面积:约516339㎡
首推主力户型:新规后建面约105-140㎡奢雅空间
项目地址:深圳·粤海·白石路3888号
开发商:深圳市贯凯投资有限公司
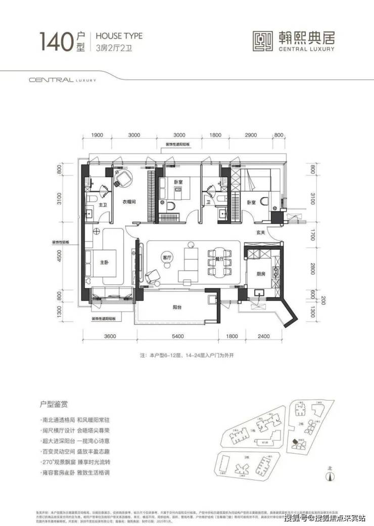
最新户型面积图
项目介绍
翰熙典居,位于深圳南山粤海街道腾讯总部旁,前身为“桂庙新村旧改项目”。
项目总建面约37万㎡,建成后将成为集住宅、商业、办公及酒店为一体的大型综合项目,能为片区供应含保障房在内近25万㎡住宅。
2023年2月,桂庙新村旧改正式开拆。同年5月发布实施主体确认公示,内容显示其补偿方式为产权置换和货币补偿相结合,已完成100%签约;项目实施主体拟确认为深圳市贯凯投资有限公司,隶属于深圳市阳光华艺房地产有限公司。
阳光华艺房地产公司已深耕深圳23年,主营房地产开发,旗下有建筑施工企业、物业管理公司、酒店经营管理公司等,运营有自有品牌酒店,已经成功开发了阳光华艺大厦、南山城市花园、流塘阳光花园、阳光海滨花园等多个旧改楼盘,在行业内颇有名气。
人文中心丨百年人文印记 桂脉传承不息
桂庙新村,传承百年城市人文底蕴,是粤海科创产业的时代摇篮、深大学子的后花园,也是深圳奇迹的源点。从桂庙新村到翰熙典居,一脉城市向上的繁心,为於此奋进的各界时代精英,谨献伫立于中心之上的人文奢宅,为粤海匠造一座屹立于时代之巅的地标之作。
2023年9月,项目终于开始动工,工程造价7200万元。按照目前的工程进度来看,项目已出地面15层左右,相信很快就能和大家见面。
翰熙典居总占地70224㎡(相当于10个标准足球场大小),定位是打造集居住、商业、办公、酒店及公共配套设施为一体的综合社区。
项目开发建设用地41660㎡,容积率8.9,计容建筑面积369100㎡,包含住宅249950㎡(含人才住房和保障性住房32500㎡),商业、办公及旅馆业建筑106530㎡(含商业文化设施不低于5330㎡)。
另外,项目还有规划近12620㎡的公共配套设施、3200㎡ 的12班幼儿园、占地面2900㎡公交首末站等,并配建占地面积1500㎡的社区体育活动场地。
项目总投资83.56亿元,共分三期开发,除去保障性住房和回迁房,总共可售714套商品房。
本期先推出的是01 地块,靠近深大校区。01地块规划总建面约17万㎡(住宅建面约8.9万㎡,商业建面约3.2万),容积率达9.0。由2栋(1栋1、2单元)53层、1栋(1栋3单元)43层的超高层塔楼和1栋幼儿园组成。
项目总规划1038套,其中保障房612套、回迁179套、可售商品房247套。规划停车位834个,车位比为1:0.83,车位略紧张。
据最新消息,本期推售面积为105-135-165的3-4房,将按照新规进行户型设计,预计使用率可达90%,项目展厅及销售团队已在组建,预计春节后开放展厅及样板间。
另外,02地块,在白石路一侧,规划总建面约16万㎡,容积率9.32。规划住宅建面约8.37万㎡、商业建面约1万㎡,办公面积约1.7㎡。
项目由4栋超高层塔楼组成,其中2栋2单元为26层的办公楼,2栋1、3、4单元分别为54、51、53层的住宅楼。住宅套数共872套(回迁544套+可售328套),提供停车位747个。
03地块,在白石路一侧,规划总建面约17万㎡,容积率11.19。规划住宅建面约7.65万㎡,商业建面约1.5万㎡,办公面积约0.6万㎡,酒店约1.9万㎡。
项目规划1120套(回迁981套+可售139套),停车数1019个,由3栋超高层塔楼组成,其中3栋1、2单元分布为52、53层的住宅产品,3栋3单元为35层的办公+酒店产品。
值得注意的是,在项目的西侧会配建一所小学,目前尚未开始动工。网传未来引进的学校或许是深大附属的小学。
质匠高定丨集聚一流大师 匠造雅质奢宅
翰熙典居联袂华汇设计、迈丘设计、CCD(香港郑中设计事务所)等国际国内大师,匠制三重归家礼序,打造美学园林及品质公区,成就卓尔不凡的超感生活。
流线之幕 | 幕墙集成系统
静雅奢华风格延续奢宅风貌,历久弥新的品质凝练

盛世翰韵 | 新东方都市风格园林
度假式无边际泳池,樱花大道、无界人文街区

逐光之旅 | 大师高定艺术公区
以超脱酒店的艺术手法,构筑雅静空间,大堂墙面高端用材,精心雕琢尊崇归家仪式感
奢阔空间丨中心极境 礼献粤海
翰熙典居,粤海十年之后再上新,全新奢居综合体礼献峯层。可售主力户型新规后建面约105-140㎡奢雅空间,全明方正户型将空间奢阔感与生活舒适度完美契合。明星户型超6米阳台开间,全维度巨幕景观视野,尽揽湾心万千风景。
(免责说明:本项目户型使用率为基于包括阳台和飘窗在内的总面积计算得出。所提供的使用率仅供参考,实际使用面积可能会因测量方法、建筑规范等因素而有所不同。最终解释权归开发商所有。)
地段配套分析
翰熙典居项目坐落于“深圳最牛街道”——粤海街道,一侧是深圳大学,另一侧是大厂云集的南山科技园,地理位置十分优越。
要知道,粤海街道被誉为“中国的硅谷”,走出了华为、腾讯、大疆等一大批著名企业,传说曾凭一己之力抗住了贸易战,于2020年开始火出圈。
年轻的90后——粤海街道,到底有多厉害?
粤海街道办成立于1991年,至今才“32岁”。面积约20.99平方千米,占深圳不到0.6%的面积,开车绕一圈10多分钟即可逛完。
但这样的“小身板”却创造约超过4000亿的GDP,这个规模甚至超过了一些省份的GDP总量,综合排名连续多年位居全国前三。人均GDP约为6.32万美元,排名世界第十二,是北上广深四个一线城市的10倍。
粤海街道的心脏,是深圳科技园,也称为深圳高新区(南山园区)。每个城市都有一个科创担当,例如北京的中关村,上海的张江高科技园,而在深圳,它是南山科技园。
片区内坐拥130+家上市公司,总市值超过5万亿。这里各种科技公司俯拾皆是,不仅有腾讯、百度、大疆、迈瑞、大族激光、金蝶软件等国内著名科技公司,很多国外科技公司如苹果、微软、高通也将其办事处或者研发中心设置于此。
矜贵恒产丨问鼎全球的人居高地
粤港澳大湾区——粤海街道,以科技南及后海、深圳湾片区为代表,代言湾区时代地标封面,问鼎深圳至臻人居价值版图
深圳湾1号(二手房价约20-32万/㎡)
华润深圳湾悦府(约19-20万/㎡)
华润城润玺二期(约16-18万/㎡)
深湾CBD丨时代粤海的蝶变新章
深湾CBD立足南山区“双核”战略核心,串联科技园、后海、深超总、深圳中央公园,聚合金融、科技、人文生态超级闭环,以多维战略产业叠加,重塑粤海价值天际线。翰熙典居,是继华润城之后深湾CBD又一人居地标之作,以时代中心之上的奢居基因,铸就跨越周期的矜贵人居恒产。
贵脉源点丨全维中心的奢居地标
翰熙典居占位深圳经济命脉滨海大道与南北科创主轴南海大道交汇处十字轴心。集萃城市区位、科创、人文、TOD四大中心源点。依托两大科技园、四大总部基地,集总部经济+全球科创中心价值,坐享区域发展利好。
值得一提的是,粤海街道还拥有深圳大学等高等学府,为区域提供了丰富的人才资源和科研支持。同时,街道内还设有多个创新平台、孵化器和加速器,为初创企业和创新项目提供了良好的成长环境。
这样的一个“寸土寸金”的顶级产业片区,注定宅地供应稀缺,基本靠旧改实现供应。
在过去的10年期间,片区内仅有由大冲村旧改而来的华润城二期入市(开盘便售罄),均价高达13万/㎡,已时隔2年。
目前片区有最新动工进展的是桂庙新村城市更新项目翰熙典居,可售商品房套数仅714套,势必成为2025年南山区网红盘。
下面我们看看项目周边配套如何。
项目所在的桂庙新村虽是城中村,但地段和各方面配套都非常不错!
在交通配套方面,项目距离9号线/15号线(在建中)交汇处——深大南站不到300米,地铁出行十分便利。
其中,地铁15号线是深圳首条环线轨道,起终点均为前海站,极速串联起前海、宝中、大铲湾、“腾讯科技岛(在建中)”、南山科技园、后海总部基地、留仙洞总部基地等高端产业密集区,是深圳最具有价值的一个圈。
此外,自驾出行也很方便。项目临近南海大道、滨海大道,去往深超总部基地、前海自贸区、宝中等西部核心区域仅要20分钟内。
在商业配套方面,项目自带约5000㎡的商业规划。2公里范围内有海岸城、茂业百货、海雅百货等大型商超,日常购物娱乐皆能满足。
在教育配套方面,根据2024年南山学区划分,项目对口学校是南山区第二外国语学校(集团)学府一小和南山区第二外国语学校(集团)学府中学。根据坊间学校排名,两所学校均属于第二梯队。(具体入学以当年教育局公布为准)
学府中学成立于 2003 年,是南二外教育集团目前孵化的成员学校当中,综合实力仅次于南二外海德初中部的存在。学校现有 50 个教学班,2400 余名学生和 201 名教职员工,师资力量雄厚。

学府一小地处南山商业文化中心区,2001年建校,近年来刚刚扩建完成,扩建后学校环境、设施都进行升级,配备了未来教室、创客实验室等多种功能教室,生源主要覆盖深大周边,是学府中学的主要生源地小学。
在文体休闲方面,3公里范围内汇聚文心公园、南山书城,荷兰花卉小镇、南头古城、荔香公园、深圳人才公园等,各种休闲娱乐设施一应俱全。
在医疗配套方面,项目距离深圳大学医院约828米,距离三甲医院——南山区人民医院约1.2km,基本可满足居民日常看病就医需求。
枫叶集团丨深耕核心区 专注城市更新与运营
枫叶集团,聚焦地产开发、资产运营、物业服务三大核心业务。秉承“以心筑新,至臻至善”发展理念,以深圳南山、宝安等核心区为原点,致力于深圳核心的城市更新与运营。已开发地产物业逾百万方,待开发土地储备逾百万方。
翰熙典居,逾50万㎡地标级奢居综合体,2025年深圳市重大建设项目之一。项目三个地块一次性整体开发,彰显枫叶集团雄厚实力,及打造中心人文奢宅、城市地标之作的恢弘之志。

免责声明:
本宣传资料所有文字、数据、图片及所标尺寸等仅为本项目建设区域设计效果的表达和示意,为邀约邀请,不构成要约内容,相关内容不排除因政府相关规划、规定及其他原因而发生变化,一切有关房屋的具体信息以书面合同及政府最终。
住建部:建“好房子”不等同于建“大房子”“贵房子”
房地产头条
①住房城乡建设部在新闻发布会上介绍了其编制背景、意义及如何保障住宅安全性、健康舒适性、隔声性能和满足“一老一小”需求等内容。
②《规范》顺应了人民群众对高品质居住的需求,全面提升了设计、材料、建造等方面的标准水平,旨在推进城镇住宅高质量发展。
《住宅项目规范》(以下简称《规范》)自发布实施以来,受到了社会广泛关注。在住房城乡建设部6月5日举行的新闻发布会上,住房城乡建设部标准定额司有关负责人、《规范》编制组专家分别从《规范》编制发布的主要背景、意义以及如何保障住宅的安全性和健康舒适性能、提升隔声性能、满足“一老一小”需求等方面进行了详细介绍。
今年《政府工作报告》提出,要完善标准规范,推动建设安全、舒适、绿色、智慧的“好房子”,顺应了人民群众的新期待。
“‘好房子’要有好标准。需要通过完善标准体系,全面提高设计、材料、建造、设备以及无障碍、适老化、智能化等方面的标准,来引领和支撑‘好房子’建设。”标准定额司有关负责人介绍说,正是基于这一背景,《规范》在编制过程中,顺应人民群众的高品质居住需要,全面梳理、研究现行标准,结合我国近年来住宅项目建设实践,在对现行住宅标准实施情况评估的基础上,采纳现行标准条文的同时,补充、修改了部分标准条文,进一步提升了标准水平。《规范》的实施,将进一步推进城镇住宅高质量发展。
他表示,《规范》是对“好房子”建设的底线要求。建“好房子”不等同于建“大房子”“贵房子”,而是要通过好的设计、好的施工、好的材料、好的服务等,解决居住中的痛点问题,全面提升住房品质。不同地区、不同面积、不同价位都应当有不同的“好房子”。
下一步,住房城乡建设部将积极开展《规范》宣传贯彻实施指导工作,包括开展线下、线上的宣传培训以及组织编制实施指南等。同时,制修订配套的推荐性国家标准、行业标准,指导支持相关地方标准、团体标准编制,并加强对《规范》实施的监督检查,包括工程项目的设计、施工、验收等是否符合标准,工程项目采用的材料、设备是否符合标准等,及时通报违法违规行为,依法对违反强制性标准的行为进行处罚,推动《规范》的落地实施,真正发挥其标准引领作用。