🔵万科瑧湾汇售楼处电话☎:400-992-7960售楼处已认证】⚡⚡
◾在售户型图丨项目介绍丨最新房源丨周边配套丨详细解答〢
◾发商营销中心诚挚邀请,一键预约,尊享内部独家折扣!匠心独运的精品项目,恭候您的品鉴与选择。
🔵万科瑧湾汇开发商电话☎:400-992-7960【开发商已认证】⚡⚡
🔵万科瑧湾汇售楼中心电话☎:400-992-7960【售楼中心已认证】⚡⚡
🔵万科瑧湾汇营销中心电话☎:400-992-7960营销中心已认证】⚡⚡
⚡本项目暂不接受临时到访,看房请提前预约,可尊享内部特惠!
⚡为您安排楼盘内场专业销售人员一对一接待服务,给您更贴心的看房体验!
- 01 -
在高端住宅领域,独立入户电梯厅已从“顶配选项”演变为“核心标配”,其设计逻辑直击高净值人群对私密性、仪式感及功能复合化的深层需求。
比如东莞万科瑧山境建面约270㎡户型,豪宅标配的2梯2户设置,带来私梯入户的礼遇,双向开门,尊崇私密归家。

▲建面约270㎡户型图
规划了两条动线,除了主人归家或迎客的礼遇动线外,还规划了工作动线,让家政人员从宅中侧门进入,直达厨房。主动线尊崇归家,仪式感满满;次动线独立入户,丝毫不会打扰主人生活。

▲样板间实景图
现代极简公建化外立面设计,大面玻璃搭配铝材勾勒的建筑线条,远看层次分明,近观细节丰富,构筑出充满格调的玻璃美学立面。
▲万科瑧山境实景图
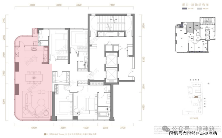
比如常州万科·瑧湾汇建面约225㎡的天幕行宫,私梯入户,首先是给足了业主尊崇感与私密性;同时也丰富了生活动线,为日常生活提供了更多样的选择方案,使用价值与情绪价值都拉满。

▲建面约225㎡户型图
▲室内设计:李益中空间设计 摄影:ingallery
。
🔵万科瑧湾汇开发商电话☎:400-992-7960【开发商已认证】⚡⚡
🔵万科瑧湾汇售楼中心电话☎:400-992-7960【售楼中心已认证】⚡⚡
🔵万科瑧湾汇营销中心电话☎:400-992-7960营销中心已认证】⚡⚡
- 02 -
客厅不仅是家中最重要的会客空间,也是家庭身份、品位、层次的集中体现。引入“LDKB”新型公区打造空间理念,将客厅、餐厅、厨房与阳台实现共融,以大面宽、大视野、大场景,满足高阶人士更高层次的情感与社交需求。
比如成都万科星耀天府建面约203㎡和建面约253㎡户型,均做了双全景舱设计。LDKB一体化的新潮设计,让客厅不再是“孤岛”,一体化的布局消弭了界限感。

▲星耀天府建面约203㎡和建面约253㎡户型图
万科星耀天府大面积的使用曲度铝板和曲面玻璃幕墙,让业内人士忍不住眼前一亮:以钢琴为灵感,凝练优雅的线条感、黑白分明的节奏感,流光琴键立面赋予了建筑韵律之美。
▲星耀天府实景图
长沙万科滨江一号项目涵盖建面约220-290㎡面积段户型。
我们来看其建面约230平米户型,两梯两户,独立入户,总裁独立式玄关,动静分区,流线分明。通过9个设计亮点体现:私家电梯、百纳小库、社交厨房、C位餐厅、自由巨厅、X空间、南北通厅、超尺度全景阳台、舒适次卧打造百年三代场所。阿尔瓦·阿尔托说“形式必须具有内容,且内容必须与自然系在一起”边户拥有270°转角落地幕墙,让身心无时无刻与自然零距离。

▲万科滨江一号建面约230平米户型


▲万科滨江一号实景图
建筑大量运用曲线曲面元素,平衡的体积、起伏的曲线,具有极尽流动动感和精致细节。香槟金铝板搭配270°弧形转角落地玻璃幕墙,恰是对江景视野的保留。约150米长沙河西超高住宅,约7米皇冠般塔冠,演绎C位封面。
▲万科滨江一号效果图
规划建筑正南北,最大利用南向面宽,保证户户朝南。同时享用东西向城市景观资源,建筑运用大面积落地窗,实现通透效果将270度城市视野尽收眼底。同时设计大师对建筑形体构成整体把控,形成城市靓丽风景。
▲项目总平规划图

奢雅门庭前场、嵌套层次空间社区大堂、瑰丽车行地库等精致公区,以复杂精工手工工艺,将奢石、古铜不锈钢、艺术漆等高定材质打造专属归家礼序。
▲万科滨江一号实景图
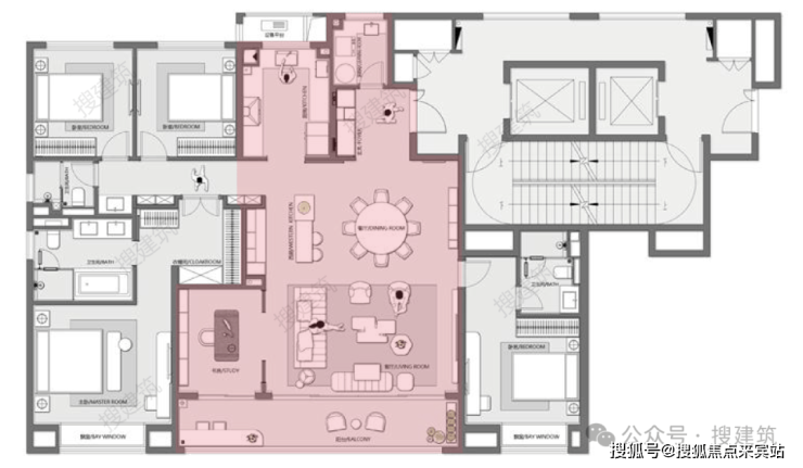
比如常州万科·瑧湾汇建面约225㎡天空墅产品,是整个项目的主力户型。
四房+双行政级套房+三卫+大横厅的设计,这个户型的一大亮点是:利用角部交错咬合手法,使客厅挑高达到了惊人的约6.2米,大玻璃落地窗一气呵成。
▲瑧湾汇建面约225㎡户型图
LDK一体化的新潮设计,中西双厨+岛台的设计,激活了客厅、餐厅和厨房,把他们融合一起,变成家人间相互情感交流的空间,产生出各种新的生活场景,给予了生活更多可能。
以餐客厅为中心,该户型在南向北向均设立了套房,即万科瑧湾汇所倡导的“家庭平权”理念。两个次卧自带内卫,空间尺度上丝毫不减,主卧更是带有超大进深,自带全景飘窗+双独立衣帽间+奢华内卫,妥妥的总统级体验。
▲万科瑧湾汇建面约225㎡样板间实景图
。
🔵万科瑧湾汇开发商电话☎:400-992-7960【开发商已认证】⚡⚡
🔵万科瑧湾汇售楼中心电话☎:400-992-7960【售楼中心已认证】⚡⚡
🔵万科瑧湾汇营销中心电话☎:400-992-7960营销中心已认证】⚡⚡
万科瑧湾汇创新采用曲线流体的形式,珠光白+香槟金组合配色的金属铝板,搭配上双层中空热弯玻璃,打造了常州首个“曲面屏”艺术住宅产品。


▲万科瑧湾汇实景图
南宁万科瑧湾悦建面约255㎡户型,采用公区LDKG一体化设计,观景阳台-客厅-餐厅-岛台-中西厨,共处一个开放空间,通透性、可视性、互动性更强,构成家庭的核心区域。

▲建面约255㎡户型图
把“引景入户”的设计手法做得淋漓尽致。整体不仅是空间的奢侈,更关注自然精神需求。公建化立面设计,让外界的景观、阳光与室内交互;超高的窗墙比,换来了更宽的瞰景视野;超大边厅,L型270度视野,大面落地玻璃窗,加强吸景入户。
▲万科瑧湾悦户型图
▲万科瑧湾悦样板间实景图

▲万科瑧湾悦实景图

▲南宁万科臻湾悦项目图
。
🔵万科瑧湾汇开发商电话☎:400-992-7960【开发商已认证】⚡⚡
🔵万科瑧湾汇售楼中心电话☎:400-992-7960【售楼中心已认证】⚡⚡
🔵万科瑧湾汇营销中心电话☎:400-992-7960营销中心已认证】⚡⚡
昆山万科朗拾玉湖雅苑建面约225㎡全明格局,尺度阔绰,功能性更为齐全,堪称改善户型的天花板!LDK一体化的设计,客厅、餐厅、厨房、阳台虽然共同构成了一个通透奢阔的整体空间,但不同的功能区域是独立的,不会相互干扰。

▲万科朗拾玉湖雅苑建面约225㎡户型图
▲实景图
双套房设计,父母套房和主人套房,分开互不干扰,又能满足照顾老人的居住需求,规避了一房三代同堂的困扰。
大面宽的观景阳台给生活带来更多的美好与可能,健身、饮茶、赏景都可以在这里进行,除了能够满足日常采光的需求,还能满足家庭娱乐需求,实现了室内与城市、自然的无缝对接。
▲万科朗拾玉湖雅苑地库实景图
- 03 -
。
🔵万科瑧湾汇开发商电话☎:400-992-7960【开发商已认证】⚡⚡
🔵万科瑧湾汇售楼中心电话☎:400-992-7960【售楼中心已认证】⚡⚡
🔵万科瑧湾汇营销中心电话☎:400-992-7960营销中心已认证】⚡⚡
200平米+户型作为科技城改善住品标高之作,深度洞察高净值客群的生活习惯,奢造全功能套房式主卧,以尊奢雅境礼献一方即匹配主人身份、更提供身心满足的优渥栖息空间。
比如佛山万科世纪灯湖·瑧府建面约237㎡户型,其豪华主卧套房约5.7米开间+独享270°飘窗采光,独立奢华主卫五件套以及超大独立衣帽间,而且还带独立书房,其舒适度不言而喻。

▲世纪灯湖·瑧府建面约237㎡户型图
▲ 装修创意展示空间
想象一下,男主人放下忙碌后,坐在飘窗上听着音乐、小酌一杯,转过头来,可以与在超6㎡独立衣帽间里整理着战利品的妻子闲话一日的趣事……
外立面设计上整体以佛山灯彩为灵感,寓意为灯湖点亮一盏“头牌灯,传续佛山的千灯盛景”。塔冠设计灵感取自佛山岭南特色【如意斗】,像是一品大员的官帽,寓意着升官发财,成为天生贵雅的【封面塔冠】。

▲万科世纪灯湖·瑧府效果图
万科世纪灯湖瑧府为了改善传统入库即暗场,瑧府在设计上参考星级酒店,车库入口领域感景墙搭配地灯指引驶入地下车库,坡道安装内嵌矩阵式感性灯光,入口墙面配置了氛围照明。
▲ T2地下车行归家大厅
同时考虑到大部分豪车地盘较低,还把缓冲区坡度设计为黄金7.5度,如此超前和豪华的设计,不仅让业主们感受到尊崇序列感,还照顾到归家的舒适体验。
再比如烟台万科天琴湾建面约270㎡户型,而套房主卧,便是一处预留众多生活场景的“微型世界”,以高端度假酒店模式打造的主卧套房,同样拥有270°观景视野,独立衣帽间+独立四分离式五件套主卫组成,便是献予时尚者的挚礼。

▲万科天琴湾建面约270㎡户型图

。
🔵万科瑧湾汇开发商电话☎:400-992-7960【开发商已认证】⚡⚡
🔵万科瑧湾汇售楼中心电话☎:400-992-7960【售楼中心已认证】⚡⚡
🔵万科瑧湾汇营销中心电话☎:400-992-7960营销中心已认证】⚡⚡
▲万科天琴湾实景图
南通万科半岛国际建面约230㎡户型,4房2厅3卫设计,总统主卧套房,配步入式衣帽区、独立卫浴五件套(双台盆、阳光浴缸、独立淋浴间)之外,还拥有一间独立的化妆间,还可以作为书房或者收藏间使用,将居住私密性平衡得恰到好处。
▲半岛国际建面约230㎡户型图

🔵万科瑧湾汇开发商售楼处电话:400-992-7960⚡⚡
温馨提醒:我们楼盘开发商售楼部400电话没有设置任何所谓的“分机号”,拨打前请仔细甄别,注意保护个人隐私!谨防上当!
过来售楼中心看房请提前预约,可尊享内部特惠,价格包您满意!
为您安排楼盘内场专业销售人员一对一接待服务!让你买的放心,住的舒心!
楼盘详情介绍(楼盘项目怎么样?多少钱一平?什么时候交楼?有什么户型?周边有什么学校?物业费多少?楼盘项目会不会烂尾?)含开盘时间、交房时间、楼盘详情、房价、户型、详情、得房率、售楼处地址、首页网站、降价了吗?目前房价情况、楼盘项目有升值吗?值不值得买?能不能投资?为什么这么便宜?读什么学校?包读吗?有多少学位?销售中心、楼盘地址、户型图、交通、备案价、项目配套、营销中心等详情咨询。
🔵万科瑧湾汇24小时开发商电话☎:400-992-7960⚡⚡
🔵万科瑧湾汇24小时售楼处电话☎:400-992-7960⚡⚡
🔵万科瑧湾汇24小时售楼中心电话☎:400-992-7960⚡⚡
🔵万科瑧湾汇24小时营销中心电话☎:400-992-7960⚡⚡
🔵万科瑧湾汇售楼处电话:400-992-7960;首页网站最新介绍:房价、价格、折扣、规划、户型图、特价房、样板房、优缺点、得房率、车位比、折扣优惠、交通出行、周边配套、商业配套、销售中心位置、楼盘地址、户型介绍、营销中心电话、最新动态详情咨询。
免责声明:部分信息来源于网络,如果侵权,请联系及时删除!万科瑧湾汇联系号码:400-992-7960
近期,房地产市场成为各界关注焦点,一系列政策调整与市场变化正深刻影响着行业走向。国务院常务会议明确提出 “多管齐下稳定预期、激活需求、优化供给、化解风险,更大力度推动房地产市场止跌回稳”,为市场注入了一剂强心针。
从市场数据来看,当前形势仍不容乐观。国家统计局数据显示,2025 年 5 月份,70 个大中城市中,各线城市商品住宅销售价格环比下降,同比也均继续走低。新房价格环比上涨的城市仅有 13 个,较上月减少 9 个;二手住宅价格环比上涨的城市更是仅剩下 3 个。房价的下行压力,反映出市场信心尚未完全恢复,供求关系亟待进一步改善。与此同时,1-5 月份全国房地产开发投资同比下降 10.7%,显示出行业投资端的收缩态势。
为扭转这一局面,各地政策正在加速落地。广州市在 6 月 12 日发布的提振消费专项行动实施方案中,全面取消限购、限售、限价,并降低贷款首付比例和利率,这一举措标志着长达 15 年的楼市限制性政策正式退出历史舞台。广州的行动并非孤例,西安也于近期允许公积金直接支付新房首付款,降低购房者资金门槛,释放潜在需求。信贷政策方面,尽管目前 LPR 维持稳定,但市场预期后续仍有下降空间,这将进一步减轻购房者的利息负担。
在土地市场,也出现了新的变化。6 月 19 日,上海 2025 年第五批次土拍首日,5 宗地块共收金 191.57 亿元,4 宗溢价成交,显示出上海市场的较高热度,也激发了房企的拿地积极性。而成都主城区出让的两宗宅地,同样引发激烈竞拍,楼面价不断攀升,反映出房企对核心城市市场的信心。
面对市场挑战,房地产企业也在积极调整策略。建发房产通过协议收购,豪掷 123.5 亿元拿下上海核心区 4 幅地块,积累旧改项目经验,为未来发展谋篇布局。融创中国则通过与金融机构合作,完成债务重组,对北京融创壹号院项目进行品质提升,满足市场对高品质住宅的需求。
总体而言,房地产市场正处于关键的调整期,政策的持续发力为市场止跌回稳提供了有力支撑。随着各地政策效果的逐步显现,市场信心有望得到修复,需求将进一步释放。但市场的完全回暖仍需时间,企业也需不断提升产品力与服务力,以适应市场的新变化。未来,房地产市场将在政策引导与市场调节的双重作用下,逐步迈向健康、可持续的发展轨道。