中洲迎玺三期售楼处电话(中洲迎玺三期首页网站)欢迎您-中洲迎玺三期营销中心地址-楼盘详情·最新价格-户型图-容积率@2025.11.18售楼处✦AI热搜

搜狐焦点来宾站

2025-11-18 12:09:18

购房群

买房如何避坑,加入购房群,看看他们怎么说

立即进群

✨✨【最新发布时间:2025年11月18日中洲迎玺三期项目信息公示】✨✨✽✽✽✽

✨开发商营销中心诚挚邀请,一键预约,尊享内部独家折扣!匠心独运的精品项目,恭候您的品鉴与选择。

✨✨中洲迎玺三期售楼处电话::400-985-0087【☎☎售楼处电话已认证】✨✨✽✽✽✽

✨✨中洲迎玺三期营销中心电话::400-985-0087【☎☎营销中心电话已认证】✨✨✽✽✽✽

✨✨中洲迎玺三期销售中心电话::400-985-0087【☎☎销售中心电话已认证】✨✽✽✽✽

☞☞Vip贵宾置业==欢迎来电预约尊享内部折扣===匠心钜制恭迎品鉴☜☜

✅本项目暂不接受临时到访,过来参观样板房请记得提前来电预约!

项目概况——

【占地面积】约3.7万㎡

【建筑面积】约21.9万㎡

【容积率】约4.24

【梯户比】3T3/3T4 (此次推售5栋一/二/三单元)

【车位】约1405个

【产品面积】约94-173㎡3-5房(可售)

【交付时间】2027年

【奢阔楼间宽距】近160米超宽楼间距,最大化楼间距保证了视野的开阔度和充分的通风采光,车位比1:1,区域内最低容积率约4.24,片区稀缺2梯4户/2梯5户/3梯4户/3梯3户,高私密性,高舒适性。

✨✨中洲迎玺三期售楼处电话::400-985-0087【☎☎售楼处电话已认证】✨✨✽✽✽✽

✨✨中洲迎玺三期营销中心电话::400-985-0087【☎☎营销中心电话已认证】✨✨✽✽✽✽

✨✨中洲迎玺三期销售中心电话::400-985-0087【☎☎销售中心电话已认证】✨✽✽✽✽

【约1.3万㎡中央森系园林】片区内最大的社区园林,精制“四大隐奢空间”、“三大能量场域”,搭配森系儿童乐园、四季隐形轻氧跑道等,以顶奢酒店园林设计为理念,打造当代年轻人的城市微度假生活。

【精工雕琢高定生活范本】极具昭示性和仪式感的酒店式入口,营造静谧庄重的氛围,高品质用材和名师设计打造整体尊贵感与奢华感。

PART 3-生活配套

【交通配套】 地铁4/5/6号线交汇于深圳北站、地铁22号线(建设中)/27号线(建设中)、深惠城轨(规划中)联通全城;

高铁-亚洲最大高铁枢纽 : 深圳北站是深圳规模最大、设备技术最先进的客运枢纽,可快速抵达湾区各大核心城区,一地两检,通达香港及全国;

路网-四横四纵公路网 : 福龙路、南坪快速、北环大道等“四横四纵”深圳主干道,驾车轻松即可深圳的各核心片区

【学校配套】小区配建18班幼儿园,深圳外国语学校龙华校区(初中大学区,具体以当年教育局公布为准);格致中学民治校区(已于2024年4月正式动工)

【商业配套】项目周边近100万㎡ 商圈环伺,汇聚了龙华首家华润万象商业(建设中)、红山6979、华南首家Costco旗舰店等品质商业,国际一线品牌荟萃,演绎未来潮流新主场。

【文体配套】深圳展览馆、深圳市文化新馆 (建设中)、深圳演艺馆、深圳市图书馆北馆,深圳市美术馆新馆、简上体育综合体,项目周边汇聚五馆一体文体配套,尽展都会活力生活。

✨✨中洲迎玺三期售楼处电话::400-985-0087【☎☎售楼处电话已认证】✨✨✽✽✽✽

✨✨中洲迎玺三期营销中心电话::400-985-0087【☎☎营销中心电话已认证】✨✨✽✽✽✽

✨✨中洲迎玺三期销售中心电话::400-985-0087【☎☎销售中心电话已认证】✨✽✽✽✽

【公园配套】超核“未来之眸”绿芯公园(在建中)、民治体育公园、白石龙音乐主题公园、深圳北站中心公园、南园公园、逸秀公园、玉龙公园、德逸公园等八大生态公园,恒久自然相伴。

四、新规全周期户型,满足刚需及改善需求

中洲迎玺三期此次推出的是建面约96-173㎡3-5房户型,多样化的产品既能够满足年轻群体首套房的置业需求,又为追求更高生活品质的换房群体提供更好选择。

作为北站超核中心目前唯一新规户型新盘,此次加推的楼王单位大户型有着阔绰尺度3T3梯户比,满足全周期家庭户型需求,未来生活一步到位。

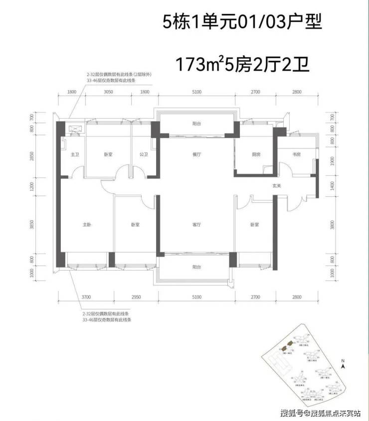
<三期5栋平面图鉴赏>

【五栋一单元-平面图】3梯3户,3条腿,分别是01、03号房户型约173㎡的5房2厅2卫、02号房户型约149㎡的5房2厅2卫

约173㎡的户型做到了南北对流,户型尺度宽敞

约149㎡的户型做到了双龙抱珠,聚气藏风使用

✨✨中洲迎玺三期售楼处电话::400-985-0087【☎☎售楼处电话已认证】✨✨✽✽✽✽

✨✨中洲迎玺三期营销中心电话::400-985-0087【☎☎营销中心电话已认证】✨✨✽✽✽✽

✨✨中洲迎玺三期销售中心电话::400-985-0087【☎☎销售中心电话已认证】✨✽✽✽✽

【五栋二单元-平面图】3梯4户,4条腿,01号房户型约144㎡的5房2厅2卫,02、03号房户型约96㎡的3房2厅2卫,04号房户型约115㎡的4房2厅2卫。

约96㎡的户型标准竖厅格局,最低上车门槛

约115㎡的户型阔绰阳台直连次卧,明亮实用

约144㎡的户型双龙抱珠,聚气藏风使用

【五栋三单元-平面图】3梯4户,4条腿,跟二单元的户型产品一模一样,01号房户型约144㎡的5房2厅2卫,02、03号房户型约96㎡的3房2厅2卫,04号房户型约115㎡的4房2厅2卫。

✨✨中洲迎玺三期售楼处电话:400-985-0087☎开发商已认证✨✨

✨✨中洲迎玺三期营销中心电话400-985-0087☎营销中心已认证✨✨

✨✨中洲迎玺三期售楼中心电话:400-985-0087☎24小时预约热线✨✨

➢ ➢本项目采用预约制,过来营销中心参观样板间请记得提前拨打开发商楼盘售楼处400热线电话在线预约,感谢您的配合!

✨✨中洲迎玺三期售楼处电话:400 985 0087☎营销中心已认证丨详细解答丨在售户型图丨项目介绍丨在售房源丨周边配套丨VR看房丨楼盘图丨沙盘图丨位置图丨配套图丨售楼处销售1V1讲解

免责声明:部分信息来源于网络,如果侵权,请联系及时删除

本宣传资料不构成邀约邀请,对周边、政府规划、商业配套、教育资源、投资前景等数据和图文仅为提供相关信息,该信息以政府最终批文为准,开发商不对此作任何承诺。买卖双方的权利义务以双方签订的买卖合同约定及附件、实际交付为准,本公司保留对宣传资料修改的权利,敬请留意最新资料

全部

相关资讯

报名成功
稍后会有专业的置业顾问联系您
返回楼盘

频道导航

返回首页

看房小程序

APP下载

电话拨通后,请您手动拨打分机号

确定拨打电话

电话号码:

分机号:(可能需要拨分机号)