✨✨鸿荣源壹城中心十区售楼处电话:400 861 9050【售楼处电话已认证】✨✨
✨✨鸿荣源壹城中心十区营销中心电话:4008619050【营销中心电话已认证】✨✨
✨✨鸿荣源壹城中心十区开发商电话:400 861 9050【开发商电话已认证】✨✨
鸿荣源壹城中心十区售楼处电话:400-861-9050
深圳(鸿荣源壹城中心十区)鸿荣源壹城中心十区售楼处电话:4008619050,鸿荣源壹城中心十区营销中心_tel:4008619050,鸿荣源壹城中心十区开发商售楼部热线4008619050(售楼处已认证电话)。提前预约看房尊享额外优惠!


项目基本信息
开发商:鸿荣源地产
地址:深圳市龙华区景龙建设路与景龙太平路交汇处
占地:130万㎡(十区:2.53万㎡)
建面:320万㎡(十区:29万㎡)
产权:70年(15-95年)
总户数:1656可售1056
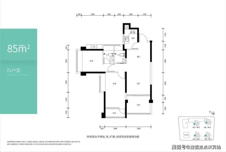
面积:85-93㎡3房2卫
车位比:1600个1:0.97
梯户比:3梯6户
价格:6.1.-7.4万
交楼标准:精装
物业公司:鸿荣源物业
物业管理费:5.3元/㎡
容积率:5.9
绿化:40%
交楼时间:2024年12月
建筑类型:住宅
层高:3米
使用率:80%
楼层高:47-49层
栋数:4栋
水电:民水民电
学校:龙华创新实验

区域价值
「 龙华超级商圈,世界级消费中心 」
龙华超级商圈:龙华六大重点片区之一,以人民路为中轴,规划承载中洲龙商旧改、龙华海岸城旧改为核心,打造人民路龙华超级商圈。
世界级消费中心:未来龙华超级商圈将成为规模超200万㎡、产值超500亿的市级核心商圈和世界级未来消费体验中心。

【千万级城市更新】——40+品牌房企入驻
(片区约4个百万体量、7个50万以上体量旧改;如中洲、德业基、卓越、华润等一线房企
2022年5月底,深圳首个超级商圈震撼启动——龙华超级商圈,萃取龙华中心区约3.25平方公里黄金地段,意在打造规模超200万㎡的市级核心商圈和世界级未来消费体验中心。近日,深圳市商务局官网发布《深圳市商业网点规划(2023-2035)(征求意见稿)》,龙华超级商圈被划定为7个“全国引领级商圈”之一。


交通配套
距离4号线龙华站直线距离约500m
未来壹成四周有望环绕25/27/22号线
25、27号线线路规划草案已公布
地铁方面:距离最近的4号线龙华站,800米左右,步行约12分钟,也是离地铁相对较近的一个区。附近目前没有在建的地铁,规划中的有27号线的油福站和25号线的景龙站,兑现周期比较长。

教育配套
龙华创新实验学校及其附属幼儿园:九年一贯制公办学校,初中24个,小学36个共计60个教学班,附属幼儿园18个教学班,三所公立幼儿园【均已开学】(鸿创、鸿悦、鸿尚)

一所9班幼儿园(规划中)24班初中(规划中),龙华第二实验学校【已开学】:是一所书院式、园林式的现代化创新型公立九年一贯制实验学校(小学48班,初中24班)

商业配套
深圳最大体量城市集群型商业
壹方天地——五大主题商业精彩兑现
云集超1000家品牌商家,其中网红轻奢餐饮超50家、品牌美食超90家、娱乐潮玩超20家、国际一线美妆超20家、潮流服饰超300家

壹方天地亮点1:建面约60万㎡壹方天地——五大主题商业精彩兑现

开车10分钟可达天虹购物中心、红山6979、Costco(在建)、AT MALL上塘荟等大型购物中心

医疗配套
三甲医疗配套环伺,健康养老有“医”靠
新华医院(在建中)
深圳市首座超大型医疗综合体总建筑面积50.9万平方米,规划床位2500张是一家集医疗、科研、教学为一体的三级甲等综合医院。
深圳第二儿童医院(在建中)
总建设用地面积约40072.95 m2,规划床位1500张集儿科医疗、教学、科研、健康体检于一体定位为区域性中心医院,服务范围辐射深圳全市。

生态配套
城市公园环绕,城央稀缺生态绿氧生活
坐拥红木山水库、红木山郊野公园(规划中),生态绿氧环绕。政府斥资16亿打造生态绿谷之城,全长9公里的绿谷景观轴,中轴景观地标。附近还有德逸公园,龙塘公园,绿廊公园,北站中心公园,西头社区公园,油松滨水公园,龙胜公园,阳台山森林公园,龙华公公园,黄金山公园,清华文化公园等

文体配套
【樾人文】泱泱文脉艺术馆藏
深圳美术馆新馆:建面约6.56万㎡,建成将是深圳最大美术馆(预计2023年建成)
深圳图书馆北馆:建面约7.2万㎡,规模超越深圳图书馆(预计2023年建成)
深圳文化馆新馆:建面约8.33万m²,覆盖各类群体、艺术门类的地标建筑(预计2025年建成)

展览馆:室内展厅建面约1500㎡,市外园林建面约3000m²,中轴又一文化、艺术交流中心(已开馆)
演艺馆:建面约1.2万m²,比肩深圳欢乐海岸水秀剧场规模(已开馆)
简上体育综合体:建面约6.4万m²,龙华全民健身中心,综合性体育场馆(已开馆)

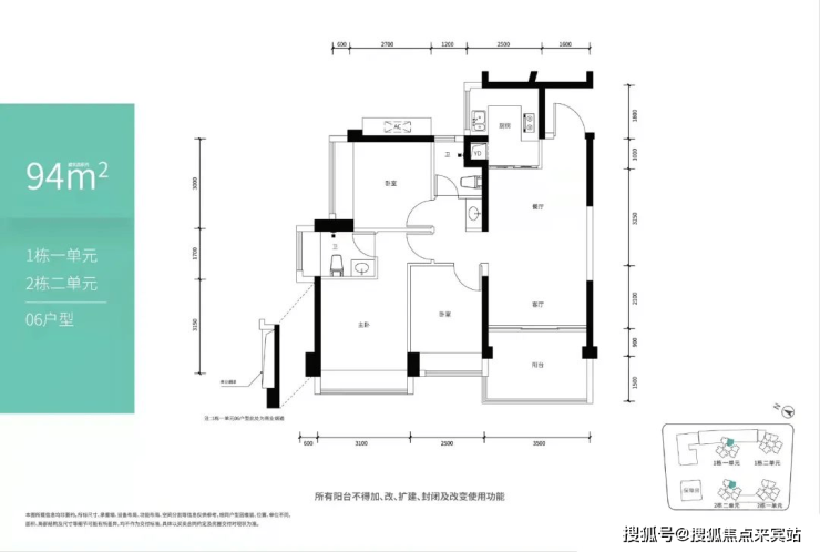
户型鉴赏









✅ 本项目暂不接受临时到访,过来参观样板房请记得提前来电预约!
✅ 为您安排楼盘现场销售全程接待并讲解,给您更贴心的看房体验!
如有问题欢迎来电咨询,来电即可享受买房优惠!400-861-9050
预约来电尊享购房优惠,可预约案场内部销售人员,专业一对一热情服务,让您用专业眼光去买房。
免责声明
1、文章图片来源于微信搜索或百度搜索引擎,我方非相关图片的原创作者,也不对相关图片及内容享有任何权利。
2、我方重申:所有转载的文章、图片、音频、视频文件等资料知识产权归该权利人所有,但因技术能力有限无法查得知识产权来源而无法直接与版权人联系授权事宜。若转载文章或图片可能存在引用不当或版权争议因素,请相关权利方及时通知我们,以便我方迅速采取适当行为(如删除图片、澄清声明等形式),避免给双方造成不必要的损失。
3、本宣传资料对项目周边幼儿园、学校等教育资源的介绍旨在提供相关信息,并不意味着我方对就学安排作出承诺。教育资源的名称、办学性质、办学规模、学位设置、开学(班)时间、招生条件、收费标准及招生区域存在调整的可能,应以政府教育主管部门及办学方颁布的政策规定为准。联系号码:4008366879
4、文章中文字和图片之间无必然联系,仅供读者参考。
5、本文所述内容和意见仅供参考,不构成市场交易依据和投资建议。