⭐满京华金硕华府⭐
☎️售楼处咨询热线:400-873-0112【售楼处电话已认证】⭐
⭐满京华金硕华府⭐开发商电话:400-873-0112【开发商电话已认证】⭐
⭐楼盘基本信息介绍,地址,户型,价格,位置,医疗教育,商业交通配套⭐
⭐开发商指定合作平台,全网预约通道!⭐

项目基础信息
【开发商】:深圳市满京华置业投资有限公司
【地址】:深圳·光明中心·光辉大道与狮山三街交汇处·6号线光明站D出口约800m
【总占地面积】:约11万㎡
【总建筑面积】:约88万㎡
【一期占地面积】:约2.28万㎡
【一期建筑面积】:约19.80万㎡
【一期容积率】:6.0
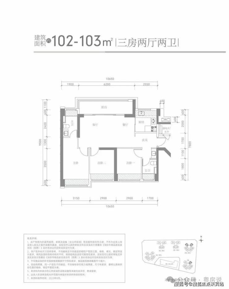
【主力户型】:建面约88-141㎡3-4房
【远见中心价值级核】
占据湾区战略节点 引领世界科创
地处粤港澳大湾区重要战略节点,对标国际科创标杆,打造世界一流科学城,形成深圳北部新中心。
“8+5产业集群”汇聚 吸纳顶级创新人才
8大战略性新兴产业集群,5大未来产业集群,打造科创先行地、创新人才汇聚地。
【演绎繁华生活级核】
占位光明中心区 中央繁华荟萃
光明中心区作为光明城市“会客厅”,将打造成光明科学城国际化高品质优质公共服务配套区,深圳北部中心的“城市心脏”。
1高铁3地铁环绕 近享高效出行
3地铁:6号线 、6号线支线一期、6号线支线二期(在建)、13号线(在建)
3横3纵:光辉大道、科学大道、光明大道、光明大街、光侨路、华裕路
3高速:龙大高速、南光高速、外环高速
1高铁:光明城站
创意街区+四大商mall 超30万方繁华汇聚
项目自带超3万㎡创意街区
约13万㎡蓝鲸世界、约4.5万㎡万达广场
约6.3万㎡星河coco city(在建)、约4.3万㎡绿地商业(在建)
学府环伺文脉高地 优质教育近在咫尺
优质幼儿园:配建3所幼儿园
优质小学:项目东侧规划一所小学(深圳小学光明学校狮山校区)、东周小学、光明小学、华师大附属光明星河小学、修远小学、深圳小学光明曙光学校等
优质初中:项目南侧规划一所初中(深圳小学光明学校初中校区)、光明中学、华夏中学等
九年一贯制:中山大学深圳附属学校、光明区荔园学校(在建)、深圳市教育科学研究院实验学校、深圳实验光明学校、中科院深理工附属实验高级中学等
世界级湾区城市公园 深圳版“中央公园”
占地约208万㎡,2倍于深圳湾公园。总投资超15亿,定位为深圳北部中心的“绿色核心”
五大公园环绕
深圳稀缺生态资源,丰富生态打造城市绿肺
五大公园环绕,以鲜氧唤醒美好生活日常
【大城级核想象】
总建面近百万方级核城市首期
金硕华府居标杆大城中央,为首期之作,纵享“繁华”与“宁静”。
科学公园&大城相互滋养
以科学公园为轴心,深圳国际美术馆及深圳科学馆(新馆)为主角,结合本案核心节点,形成超宽城市视廊,如开启城市的大门,将绿脉引入街区。
高颜值城市封面
科学公园旁 封面天际地标
科学环廊示范段
项目街区作为科学环廊示范段,以线性绿地有机串联,打造城市形象展示窗口、生活主场和艺术街区,同时布局多个idea空间,增强空间的个性与人文活力。
现代艺术园林
借鉴新加坡园林,打造出温情向阳的社交场、有趣有料的互动空间。
儿童游乐场:打造主题性的多维儿童游乐空间
全龄泳池:在家就能享受日光浴SPA
社区会客厅:在社区会客厅里与邻里朋友自由畅谈
高品质公区
高品质入户大堂、停车场入户大堂,归家仪式与空间交融
【坚守品牌品质级核】
满京华集团深耕城市25载,成长为涵括城市更新、置地开发、资产运营管理、文化运营、汽车五大业务版块的综合型投资集团
城市更新:力求将居住、产业、文化、消费等多元功能融合重组,重塑土地价值体系。
置地开发:深耕创意文化,构筑作品级项目,推动城市品质生活。
资产运营管理:服务品牌超300个,总服务资产价值超500亿,运营面积超100万㎡。
文化运营:多元生态,创建“文化+产业平台” ,聚合产业发展多元能量。
汽车:成功打造安骅汽车品牌,发展成为上汽通用华南地区最大经销商。
已开发项目:满京华·云著、满京华·喜悦里、云晓公馆、满纷天地、中央西谷大厦、SOHO艺峦、盈丰中心、科创工坊等。
项目总平图
项目户型图
☎️售楼处咨询热线:400-873-0112【售楼处电话已认证】⭐
⭐满京华金硕华府⭐开发商电话:400-873-0112【开发商电话已认证】⭐
☎️售楼处咨询热线:400-873-0112【售楼处电话已认证】⭐
⭐满京华金硕华府⭐开发商电话:400-873-0112【开发商电话已认证】⭐
⭐满京华金硕华府⭐
⭐满京华金硕华府⭐售楼处电话::400-873-0112【☎☎售楼处电话已认证】⭐✽✽✽✽⭐
⭐满京华金硕华府⭐营销中心电话::400-873-0112【☎☎营销中心电话已认证】⭐✽✽✽✽⭐
免责声明:部分信息来源于网络,如果侵权,请联系及时删除本宣传资料不构成邀约邀请,对周边、政府规划、商业配套、教育资源、投资前景等数据和图文仅为提供相关信息,该信息以政府最终批文为准,开发商不对此作任何承诺。买卖双方的权利义务以双方签订的买卖合同约定及附件、实际交付为准,本公司保留对宣传资料修改的权利,敬请留意最新资料。联系号码:400-873-0112