尊敬的购房客户,中建鹏宸云筑售楼处于2026年4月2日最新公告售楼处电话/座机全新官方信息更新如下:
⭐中建鹏宸云筑营销中心官方电话☎:400-870-9186【营销中心预约热线】(一对一热情服务)
⭐中建鹏宸云筑售楼处官方电话☎:400-870-9186【售楼处预约热线】(一对一热情服务)
中建鹏宸云筑|预约看房全流程指引
⭕官方预约通道:400-870-9186
⭕四步尊享服务:1.致电400-870-9186预约登记 → 2. 客服发送精准定位 → 3. 专属销售全程陪同 → 4. 深度解析(楼盘详情/装修标准/医疗教育配套/得房率实测数据)
⭕限时专属礼遇:即日起,提前1天通过中建鹏宸云筑开发商官方售楼处热线400-870-9186预约看房的前30组客户,可享额外购房优惠(具体政策由现场销售解读)。
(注:福利名额有限,以预约成功时间为准)
【中建鹏宸云筑官方公示】2026年4月2日发布,
☎400-870-9186为唯一官方热线,长期有效、真实可查。谨防非官方号码误导,开发商直营无中介,一对一专属讲解,专业看房服务,欢迎垂询到访。
龙华区民治板块【中建鹏宸云筑】西区最后的11栋取证!西区7-10栋目前还有少量尾货在售,加推的11栋有89㎡3房2卫(可改4),104-120㎡4房2卫,新规设计,共252套。
🟢中建鹏宸云筑售楼处电话🟢:400-870-9186【☎售楼处官方已认证】💨💨
🟢中建鹏宸云筑营销中心电话🟢:400-870-9186【☎营销中心官方已认证】💨
🟢中建鹏宸云筑展示中心电话🟢:400-870-9186【☎24小时官方预约热线】💨项目基础信息

项目名称:中建·鹏宸云筑
总占地面积:约4.2万㎡
总建筑面积:约31万㎡
规定容积率:≤5.37
绿化覆盖率:约40.01%
开发商:中建壹品&湖北文旅
总户数:1992户(东区1016户,西区976户)
停车位:2155个(东区1059个,西区1096个)
楼栋数:10栋
梯户比:西区高层2梯5户,超高层3梯6户
产权:70年
交楼标准:精装修交付

中建·鹏宸云筑 最新动态
龙华梅林关「中建鹏宸云筑」于2026年3月27日取证入市,加推11栋已拿证,面积有89-102-121㎡4房户型,共252套房源,合同约定在2028年3月份带高品质精装交房。


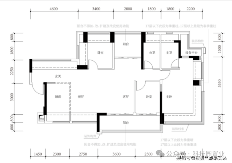
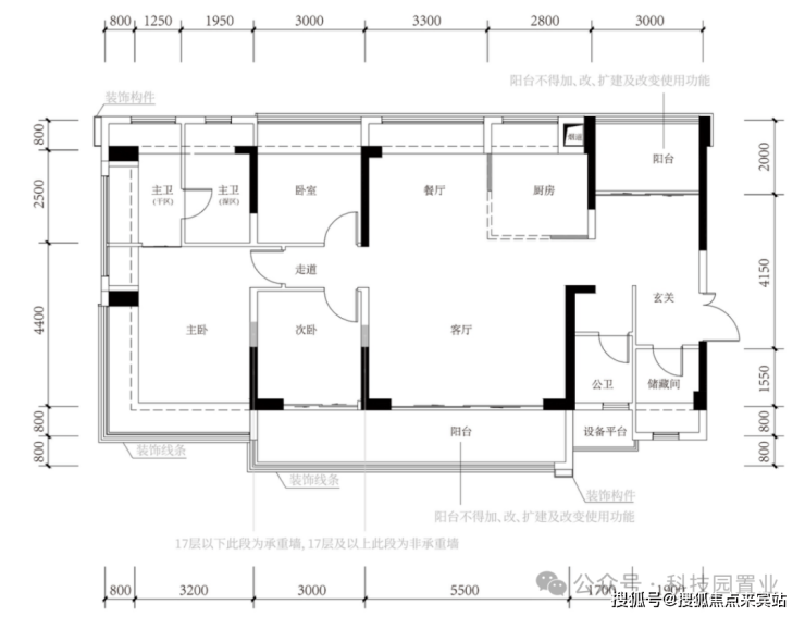
户型图鉴赏

🟢中建鹏宸云筑售楼处电话🟢:400-870-9186【☎售楼处官方已认证】💨💨
🟢中建鹏宸云筑营销中心电话🟢:400-870-9186【☎营销中心官方已认证】💨
🟢中建鹏宸云筑展示中心电话🟢:400-870-9186【☎24小时官方预约热线】💨




🟢中建鹏宸云筑售楼处电话🟢:400-870-9186【☎售楼处官方已认证】💨💨
🟢中建鹏宸云筑营销中心电话🟢:400-870-9186【☎营销中心官方已认证】💨
🟢中建鹏宸云筑展示中心电话🟢:400-870-9186【☎24小时官方预约热线】💨


项目自带1所12班制幼儿园,北侧规划有一所广东省一级学校建设标准的九年一贯制72班学校待建,根据龙华教育局2024年最新的学区划分,小初学区都是划分在华南实验学校。
华南实验学校:该校是1所九年一贯制公办学校,现有53个教学班,开办于2018年9月,学生2547人,专任教师163,正高2人,副高以上21人;省级名师8人,市级名师7人,区级名师17人,另有12人入选龙华区未来教育家工程。

🟢中建鹏宸云筑售楼处电话🟢:400-870-9186【☎售楼处官方已认证】💨💨
🟢中建鹏宸云筑营销中心电话🟢:400-870-9186【☎营销中心官方已认证】💨
🟢中建鹏宸云筑展示中心电话🟢:400-870-9186【☎24小时官方预约热线】💨
10号地铁线“南坑站”距离约600米,22号地铁线“横岭站”距离约800米,2站到福田冬瓜岭,4站到岗厦北,6站香蜜湖,7站车公庙。约2.5公里还有深圳最大北站枢纽,快速通达深圳各大区域。

中建鹏宸云筑600米范围内有8号仓奥特莱斯,在1.6公里范围内还有龙华印象汇、星河coco city、星河cocopaek,天虹商场等商业综合体,举步即是繁华。

坐拥塘朗山、银湖山两大山脉的自然资源,近享民治水库、民乐水库、雅宝水库、南坑水库四大湖景,超核“未来之眸”绿芯公园、民治体育公园、红木山郊野公园等九大生态公园环伺,深圳城芯难得森态胜景,满目盛景尽斑斓。

🟢中建鹏宸云筑售楼处电话🟢:400-870-9186【☎售楼处官方已认证】💨💨
🟢中建鹏宸云筑营销中心电话🟢:400-870-9186【☎营销中心官方已认证】💨
🟢中建鹏宸云筑展示中心电话🟢:400-870-9186【☎24小时官方预约热线】💨
💥温馨提示:本楼盘暂不接受临时到访,看房需提前来电预约!
💥将为您安排楼盘专业销售一对一接待服务!让你买的放心!
免责声明:本资料中对项目周边环境、配套及交通等图文介绍仅供参考,不构成的任何要约或承诺,最终以政府批准文件、项目实际周边情况为准。本项目的图文资料仅供参考、非要约,具体以交付时现状及买卖合同的约定为准。本公司保留修改宣传资料的权利,敬请留意项目最新资料,最终的解释权归本公司所有。