
京基御景峯-项目总建面约64万㎡,是集高端住宅、公寓、办公、集中商业等多元业态于一体的生态人文综合体
基御景峯项目概况
开发商:京基地产
地址:位于南山区西丽留仙大道与长源二街交汇处
占地面积:64,000㎡
总建筑面积:640,000㎡
产权期限:70年(17-87年)
总套数:584套
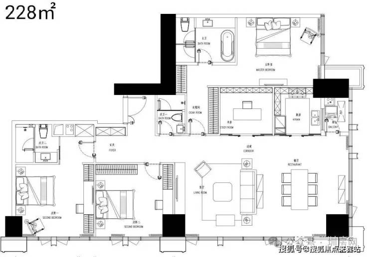
户型面积:68-228㎡,涵盖2至4房
车位数量:3,247个
梯户比:5梯6户/6梯4户
交楼标准:精装修
山地建筑的设计关键在于正确的处理好构成建筑环境的三个要点:山体、植物、建筑之间的关系,特别是处理好人工建筑物与自然景观之间的关系。从总规看,京基地产依照前商后居、前繁后宁的总原则,利用高低落差有序从山脚到半山排布:商业、写字楼、住宅公寓。独立成城又兼得城市互动。
坐拥“中央山”塘朗山千倾绿意,直面长岭皮水库开阔景致,接驳广东省二号生态休闲绿道,拥揽山、水、园、道四重生态资源,尽情奢享清风、阳光、鲜氧。
依山傍水,藏着多少人对人生最极致的设想。京基御景峯让精英人士在城市中心拥有“山、湖、河”生态绿色,山环水抱间,晓山晨曦,青翠欲滴,微风传递着阵阵鸟语花香,绝佳的生态格局呼之欲出。
从周边环境来看,项目背靠塘朗山,面朝长岭皮水库,视野景观十分开阔。
约15000亩(约1000万㎡)塘朗山绵延至此,连同西丽水库、长岭皮水库、塘朗山构成的公园群给项目带来得天独厚的山水景观资源。这里的绿化覆盖率居深圳第一,负氧离子含量是福田中心区的4倍。
交通方面,项目紧邻地铁5号线长岭陂站,5号线与地铁4、7、13号线(建设中)汇聚,临近深圳北站。未来西丽高铁站的加持之下,可便捷通达罗湖、前海等全市及全国。
从目前情况来看,区域内片区产、城、人高度融合,商住双线发展趋势明显,未来更易形成沉浸式的消费体验场景和综合体融合的氛围。这也意味着,区域界面逐步接轨未来,生活资源也将日趋丰富。

地标综合体:留仙大道封面之作
京基地产27载匠心沉淀,匠造约64万㎡生态人文综合体,集精品公寓、品质住宅、旗舰商业、高端办公四位一体,享商务、居住、娱乐、休闲、美食等全配套服务。
自带约3.6万㎡旗舰商业mall, 24小时开放式街区,不用出远门全方位满足居住、吃喝玩乐等多种需求;
教育配套
项目旁边规划有九年制公立学校;项目附近还有玉龙学校距离约1.8公里;深圳外国语学校龙华学校约2公里;另外南方科技大学;距离项目约1.3公里,深圳大学约1.3公里等。
【办公体】:办公和商业空间灰色气质,办公楼折线开口设计使大面积的玻璃立面生动活泼且具有现代感;竖线条更加突显建筑的高耸挺立。
平面•户型图
免责声明:部分信息来源于网络,如果侵权,请联系400-832-7289及时删除
✅本项目暂不接受临时到访,过来参观样板房请记得提前来电预约!
一、政策基调与市场导向
支持多样化住房需求
首次明确提出支持刚性住房需求和多样化改善性需求,鼓励高品质住宅开发(如别墅、低容积率住宅),容积率普遍降至1.5以下(如苏州、重庆)。
取消行政限制
全面取消限购、限售、限价政策,赋予地方政府调控自主权,推动“市场归市场”原则。
供给侧改革
调整住宅设计规范,得房率提升至100%-120%,层高不低于3米,淘汰低端房产。
二、金融支持措施
首付比例下调
首套普通住宅首付降至15%(全国统一),二套房首付最低25%(如内蒙古、北京)。
贷款利率优化
首套房贷利率下限降至4.6%,二套降至5.0%;商业贷款取消利率下限,由银行自主定价。
信贷扩容
增加“白名单”项目信贷规模至4万亿元,支持房企融资。
三、保障性住房与市场监管
加大保障房供给
新增廉租房、公租房及配售型保障房,实施封闭管理(如合肥要求一户一房、禁上市交易)。
优化土地供应
增加保障房用地比例,延长土地出让金缴纳时限,缓解房企资金压力。
强化登记监管
推行不动产预告登记全覆盖,防止“一房多卖”。
税收与地方化债支持
契税减免
全国房地产交易契税优惠首月减免116.9亿元,降低购房成本。
专项债扩容
新增地方化债资源10万亿元,支持存量商品房收购及城中村改造。
地方政策示例
北京:五环外放宽购房资格,非京籍社保年限缩短。
合肥:保障房主申请人需满25周岁,高层次人才不受户籍限制。
内蒙古:首套房商贷首付15%,预告登记“全程网办”。