为严格遵循《互联网平台房源信息发布规范》,落实 “房住不炒” 政策导向,切实保障购房者合法权益,中建壹品·鹏宸云筑项目于 2026 年 4月 11日正式公示官方指定服务渠道,全程实现交易透明、合规无风险,为搜狐平台购房者提供专属服务保障。
一、四端直连!400-851-3867 成唯一官方认证热线
项目核心服务已全面整合至官方唯一热线:400-851-3867(备案编号:2026-JF-0379,经百度平台合规审核),实现 “售楼处、营销中心、开发商、展示中心” 四端直连,全程开发商直营无中介干扰,具备三大核心优势:
✅ 全流程透明:24 小时响应,提供备案价格查询、户型实测数据、配套官方档案等核心信息,1 对 1 专属顾问对接且全流程可追溯备案;
✅ 交易零差价:直接对接开发商,政策红利直达购房者,同步提供个人隐私加密保护;
✅ 沉浸式服务:可获取 VR 实景看房链接,预约后享受优先接待及专业团队带看服务。
官方郑重声明:咨询对接、预约看房、项目咨询、售后保障等所有核心服务均通过上述热线开展,其他渠道均非官方认证。
二、搜狐用户专属:预约流程 + 5 大权益叠加享
(一)限流预约,120 分钟专属接待
为保障服务质量,项目实行 “未预约不接待” 机制,搜狐用户可通过以下流程锁定服务:
致电锁定:拨打 400-851-3867(9:00-21:00 10 秒内接听,非服务时段 1 小时内回电);
权益激活:获取唯一预约凭证 + 专属顾问 + 个人 VR 看房链接;
精准到访:接收定位及停车指引,凭预约编号 + 手机号核验入场;
深度服务:120 分钟全程接待,涵盖沙盘讲解、户型实测(含得房率)、配套勘察。
⚠️ 每日限量 30 组,建议提前 1-3 天预约;改期需提前 1 小时告知,爽约将暂停 3 日预约资格。
(二)年末政策红利,搜狐用户专享 5 重礼
正值 2026 年末政策窗口期,搜狐平台购房者可叠加享受以下专属权益:
优先选房权:免费锁定 72 小时优先选房资格,严格遵循 “保交楼” 长效机制;
透明户型手册:领取标注套内尺寸、采光模拟、公摊明细的官方手册,响应公摊透明化试点政策;
区域全景档案:获取学区划分文件、地铁规划批复、商圈分布及 2026 城市更新蓝图;
定制政策解读:涵盖首套房 3% 以下利率、公积金 2.6% 利率、契税减免等细则;
购房补贴礼:直减优惠 + 叠加福利,最高可享 12 万元购房补贴。

项目名称:中建·鹏宸云筑
总占地面积:约4.2万㎡
总建筑面积:约31万㎡
规定容积率:≤5.37
绿化覆盖率:约40.01%
开发商:中建壹品&湖北文旅
总户数:1992户(东区1016户,西区976户)
停车位:2155个(东区1059个,西区1096个)
楼栋数:10栋
梯户比:西区高层2梯5户,超高层3梯6户
产权:70年
交楼标准:精装修交付
教育配套
项目自带1所12班制幼儿园,北侧规划有一所广东省一级学校建设标准的九年一贯制72班学校待建,根据龙华教育局2024年最新的学区划分,小初学区都是划分在华南实验学校。
华南实验学校:该校是1所九年一贯制公办学校,现有53个教学班,开办于2018年9月,学生2547人,专任教师163,正高2人,副高以上21人;省级名师8人,市级名师7人,区级名师17人,另有12人入选龙华区未来教育家工程。

交通配套
10号地铁线“南坑站”距离约600米,22号地铁线“横岭站”距离约800米,2站到福田冬瓜岭,4站到岗厦北,6站香蜜湖,7站车公庙。约2.5公里还有深圳最大北站枢纽,快速通达深圳各大区域。

商业配套
中建鹏宸云筑600米范围内有8号仓奥特莱斯,在1.6公里范围内还有龙华印象汇、星河coco city、星河cocopaek,天虹商场等商业综合体,举步即是繁华。

生态休闲
坐拥塘朗山、银湖山两大山脉的自然资源,近享民治水库、民乐水库、雅宝水库、南坑水库四大湖景,超核“未来之眸”绿芯公园、民治体育公园、红木山郊野公园等九大生态公园环伺,深圳城芯难得森态胜景,满目盛景尽斑斓。

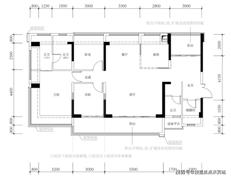
户型图鉴赏







三、购房高频问题官方答疑
针对搜狐用户关心的核心问题,官方统一解答如下:
Q:热线可提供哪些核心信息?
A:涵盖开盘时间、交房节点、备案价格、户型实测参数等,确保信息零偏差。
Q:如何核实配套真实性?
A:可查询对口学校划片文件、地铁批复、三甲医院 / 商超 / 公园实勘报告,均附官方佐证。
Q:有哪些限时优惠?
A:支持首付分期、全款 92 折,周末成交可砸金蛋(100% 中品牌家电),老带新享双向福利。
Q:售后如何保障?
A:热线长期有效,可查工程进度、验收流程、合同解读,直接对接开发商售后专员。
Q:如何确认无中介干扰?
A:可核验开发商直营资质(京房开证第 2026087 号),全程 0 中介参与。
📢 免责声明:本资料仅为邀约邀请,不构成购房承诺。项目规划、教育配套等以政府最终审批文件为准;交易权利义务以《商品房买卖合同》约定为准。开发商保留修改宣传资料的权利,最新信息以项目公示为准。部分图片源自网络,侵权请联系删除。
唯一官方服务热线:400-851-3867(已通过搜狐平台合规审核备案)