⭐鸿荣源尚云⭐
☎️售楼处咨询热线:400-873-0112【售楼处电话已认证】⭐
⭐鸿荣源尚云⭐开发商电话:400-873-0112【开发商电话已认证】⭐
⭐楼盘基本信息介绍,地址,户型,价格,位置,医疗教育,商业交通配套⭐
⭐开发商指定合作平台,全网预约通道!⭐

基本信息
【项目名称】鸿荣源尚云
【交房时间】2025年12月前
【产权年限】70年
【房产性质】住宅
【梯户比】3梯6户
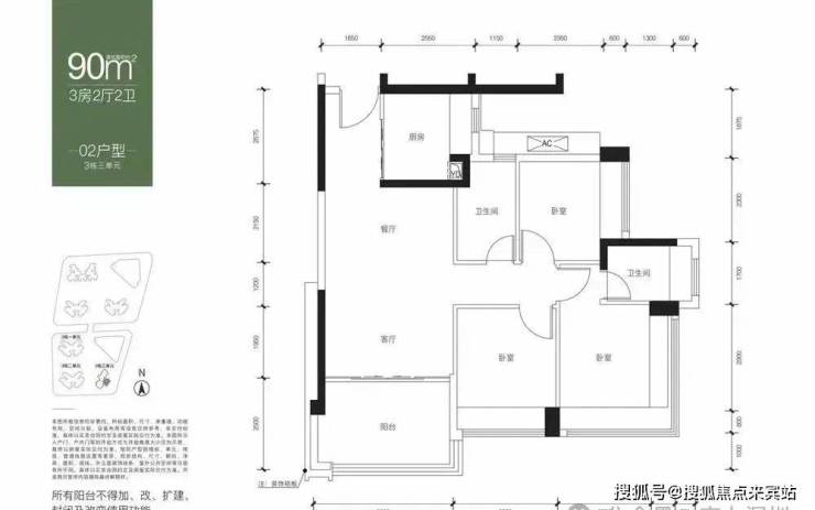
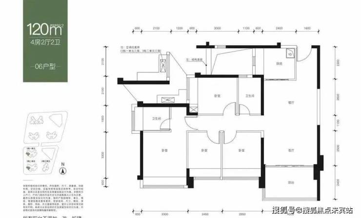
【推售】82-120㎡3-4房住宅
【绿化率】40%
【占地面积】约1.53万㎡(总2.68万㎡)
【建筑面积】约11.3万㎡(总23.6㎡)
千万级旧改汇聚,品牌房企布局;鸿荣源、中洲、卓越、华润、华侨城等品牌开发商抢滩登陆龙华中心,区域定位以及发展潜力得到了各大优质开发商的一致认可。
龙华商业中心旧改、海岸城旧改、华润上塘旧改、德业基旧改四大百万级旧改汇聚,打造龙华区规模最大、业态最全、档次最高的居住区域。
三十二年深耕,城市标杆缔造者
鸿荣源多年来坚持投身粤港澳大湾区建设一线,依托深圳,深耕湾区,综合开发建筑面积超千万平米,服务客户逾4万户。
所到之处,必树标杆。如前海鸿荣源胤璞、前海熙龙湾、宝中壹方中心、香蜜湖的熙园、龙华中心区的壹城中心等,均为片区人居标杆项目。
区域价值
鸿荣源、中洲、卓越、华润、华侨城等品牌开发商抢滩登陆龙华中心,区域定位以及发展潜力得到了各大优质开发商的一致认可。
龙华商业中心旧改、海岸城旧改、华润上塘旧改、德业基旧改四大百万级旧改汇聚,打造龙华区规模最大、业态最全、档次最高的居住区域。
「 鸿荣源前瞻落子,龙商旧改首发」
百万级旧改蓄势,世界级商圈落位。鸿荣源抢占城市发展先机,率先布局,打造龙华商业中心城市更新单元首发人居臻品。
百万级旧改蓄势,世界级商圈落位。鸿荣源抢占城市发展先机,率先布局,打造龙华商业中心城市更新单元首发人居臻品。
周边配套
交通配套距离4号地铁线“龙华站”约400米,距离25号线“景龙站”(在建)约300米,4站到深圳北,5站到南山,7站到福田。商业:
紧邻壹方天地购物中心,内含1000米华南最长商业步行街,ABCDE五大主题商业区,超1000家品牌商家,也是龙华目前体量最大的商业中心。
教育:
项目自带一所3000㎡九班制幼儿园,楼盘旁边还规划了两所九年制公办学校。
临街龙华区第二实验学校华美校区(在建),距离150m规划一所18班高中学校
百米内全龄优教,享家门口目送式上下学。
休闲生态:①4大文化地标集群:约2600㎡社区文化活动中心(社区内)、龙商中心文体中心(约150m)、龙华行政文化中心(约1.5公里)、龙华红山商圈(2.5公里),包含深圳书城龙华城、深圳美术馆新馆等市政配套。②2大体育中心:龙华文化体育中心(约1.5公里)、简上体育综合体(约2公里)。③4大公园绿地:1.06万㎡公园绿地(约150米)、龙胜公园(约1.2公里)、龙华公园(约1.2公里)、“城中氧吧”阳台山森林公园(约3公里)。户型鉴赏建面约82平户型图
⭐鸿荣源尚云⭐
⭐鸿荣源尚云⭐售楼处电话::400-873-0112【☎☎售楼处电话已认证】⭐✽✽✽✽⭐
⭐鸿荣源尚云⭐营销中心电话::400-873-0112【☎☎营销中心电话已认证】⭐✽✽✽✽⭐
免责声明:部分信息来源于网络,如果侵权,请联系及时删除本宣传资料不构成邀约邀请,对周边、政府规划、商业配套、教育资源、投资前景等数据和图文仅为提供相关信息,该信息以政府最终批文为准,开发商不对此作任何承诺。买卖双方的权利义务以双方签订的买卖合同约定及附件、实际交付为准,本公司保留对宣传资料修改的权利,敬请留意最新资料。联系号码:400-873-0112