【中洲迎玺花园开发商售楼部400免费咨询/预约电话📞:400-869-6279,中介勿扰】
温馨提示:过来营销中心参观样板间请记得提前拨打售楼处400热线预约,感谢您的配合!
基础信息
【项目名称】中洲.迎玺花园
【占地面积】约7.7万㎡
【建筑面积】约44.6万㎡
【推售产品】92-166㎡ 3-4房
【交付标准】待定
【交房时间】预计2025年低
【房产性质】70年住宅,剩余39年
【总 户 数】规划2699户
【车 位 数】约2800个
【物业公司】中洲物业
【容 积 率】约4.24
【绿 化 率】约40%
【梯 户 比】2T4、3T3、3T4

● 深圳市新华医院:建面约50万方,是国内最大的单体三甲综合性现代医院。集急救、医疗、教学、科研、保健于一体,距离项目2km,开车10分钟,医院已经建成,今年会投入使用。
学校配套
楼盘位于玉龙学校、龙腾学校、格致学校、深外龙初中部的共享学区内,教育资源丰富。
●深圳外国语学校(集团)龙华学校,创办于2016年9月,是深外在深圳的第一个分校,是区属九年一贯制公立学校,建面约5.4万㎡,现有规模约60个班(小学24个班+初中36个班)。
交通方面:步行仅约500米即达交通枢纽深圳北站,一站直达香港西九龙站,无界接轨湾区生活圈。地铁已经开通了4、5、6号线,还有通达福田保税区的22号线、通达深圳湾、前海的27号线以及深惠城轨在规划中,有6线交汇的轨道交通优势

教育配套:项目旁边将新建一所九年制的学校目前已和格致学校签约,在新学校建成之前,隶属于四大之一的深圳市外国语龙华学校的学区。深圳近年落地的新学校,普遍都是引进知名机构联合办学,不仅办学质量有保障,而且,新学校的领导和老师,普遍更卷,对于鸡娃妈妈而言,反而是一件好事儿。

2km内有红山6979,华南首家开市客,北站缤果空间,星河coco park等大型商业。还有在建的深圳第四个、龙华第一个华润五星级万象系商业,建面约13.4万㎡,距离楼盘约300米,真正的临商不近商,满足居住的纯粹性。
休闲公园
绿芯公园建面约16万㎡,打造深圳市的地标和门户公园,后期公园与办公楼,商业,南园街区公园相互连接,形成集商业与休闲一体的新型街区。
家门口还有南园公园一期和二期,小区内公园环绕,小区外依旧公园环绕。

约1.6万㎡的超大规模园林 ,打造出功能复合化、多维立体的园林景观,以及融合了摩登泳池、森系儿童乐园、四季隐形轻氧跑道等多功能的场所,多维度满足全年龄段业主需求。
中洲迎玺花园开发商售楼部400免费咨询/预约电话📞:400-869-6279

93/97㎡三房两厅两卫
户型客厅开间3.6米,次卧室不加飘窗8㎡,小次卧略小,只能加上飘窗设计成榻榻米来利用,朝向正南和东南,朝向确实好,且前面视野开阔没遮挡。
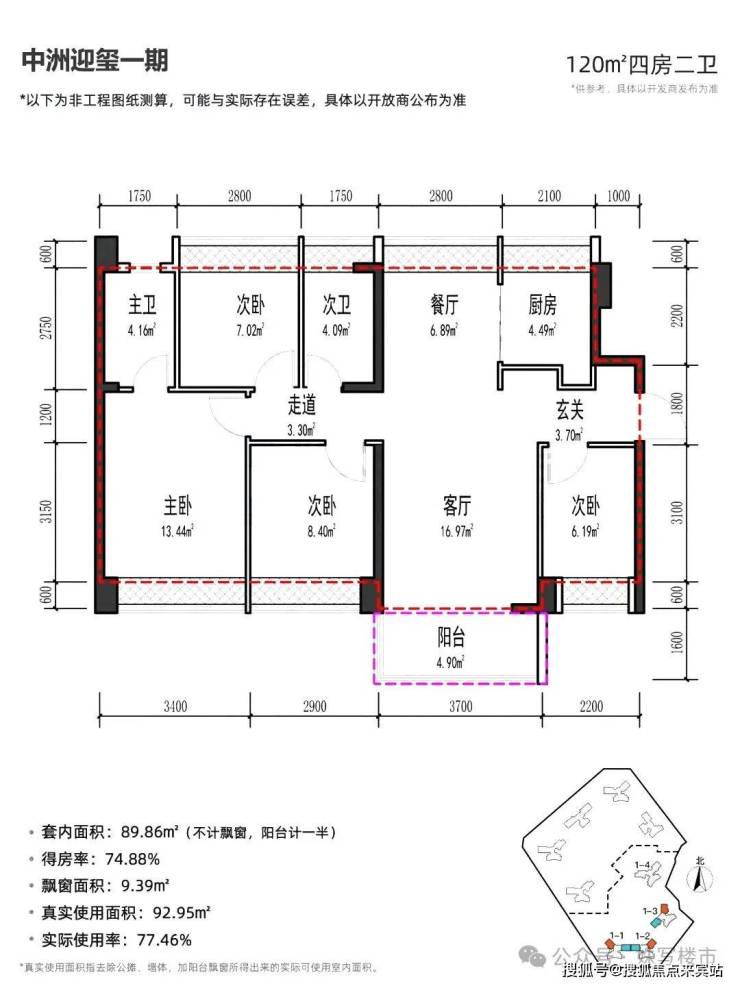
115/120㎡四房两厅两卫
深圳中洲迎玺花园
中洲迎玺花园开发商售楼处24小时电话:400-869-6279
欢迎来电咨询楼盘、看房请提前预约,电话预约看房享受专属优惠折扣。
免责声明:部分信息来源于网络,如果侵权,请联系及时删除;联系电话:400 869 6279