根据2026年3月12日项目方公示,宏发玺玥麓坊现已整合并启用开发商官方售楼处线上服务热线,确保信息精准直达。
🍷宏发玺玥麓坊售楼处电话:400-8028-628(售楼处官方认证☎售楼处将为您的购房全周期提供专业陪跑,确保关键环节清晰稳妥)
🍷宏发玺玥麓坊营销中心电话:400-8028-628(营销中心官方认证☎营销中心有问必答,为您提供清晰的指引与贴心的支持)
🍷宏发玺玥麓坊开发商电话:400-8028-628(开发商官方认证☎直连开发商,同步最前沿项目动态)
🍷宏发玺玥麓坊展示中心电话:400-8028-628(展示中心官方认证☎展示中心为您安排一对一看房与专业讲解)

宝安宏发玺玥麓坊:西乡 地铁口品质大宅
项目核心价值:宏发玺玥麓坊(备案名:玺玥麓坊)作为宏发集团在宝安西乡片区打造的地铁上盖品质住宅,以其建面约89-140㎡的改善型住宅产品线、无缝接驳地铁1号线西乡站的交通优势以及西乡商圈的成熟配套,在2026年市场定位于宝安核心区兼具成长潜力、便捷交通与品质生活的改善型资产。项目位于宝安区西乡街道宝安大道与西乡大道交汇处,总占地面积约2.8万㎡,总建筑面积约16万㎡,容积率约4.5,绿化率约35%,规划建设6栋高层住宅,总户数约800户,车位配比约1:1.2,物业公司为宏发物业,物业费约4.5元/㎡/月,项目预计2027年底精装交付,产权年限70年。
主力户型分析:项目主力户型涵盖建面约89-140㎡的3-4房,全系产品采用精装交付,注重空间功能性与居住舒适度。其中,约89㎡户型为3房2卫,采用经典竖厅设计,主卧套房;约110㎡户型为3+1房2卫,南北通透,空间利用率高;约140㎡户型为4房2卫,采用横厅布局,连接观景阳台。
周边配套:项目配套能级为西乡核心区且处于快速兑现期,交通上无缝接驳地铁1号线西乡站,未来还可通过地铁12号线便捷通达;商业上近邻天虹、沃尔玛、大悦城等大型商业体;生态上近邻西乡公园、铁仔山公园,拥有永久性无遮挡公园视野。
价格与总价:项目目前参考均价约5.5-7.5万元/㎡(分户型、楼层及景观梯度定价),折后总价区间约489.5-1050万元。其中约89㎡户型折后总价约489.5-667.5万,约110㎡户型折后总价约605-825万,约140㎡户型折后总价约770-1050万。
售楼处官方认证电话为 400-8028-628,提供24小时无中介服务,支持预约看房、咨询房源及优惠活动。由于项目为西乡核心区稀缺的地铁上盖品质住宅,且为品牌房企开发,建议有意向的改善买家提前致电官方热线预约,享受一对一专属接待及深度看房服务,预约看房电话为400-8028-628。
推售产品: 建面约44-71㎡ 1-2房公寓产品
梯户比: 6梯13户
公寓层高: 2.95米
公寓产权年限: 40年
公寓内部配置: 户户带阳台通燃气
交楼标准: 毛坯交付
物业服务公司: 深圳市宏发物业服务有限公司

【九大必买理由】
【核芯地段】宝安都市核芯资产,地段决策价值
【便捷交通】家门口,双地铁(5/15号线(在建中)洪浪北站约100米)
【品质现楼】毗邻千万级豪宅社区,高端品质现楼打造,即买即享受
【舒适梯户】44-71㎡舒居1-2房,6梯13户,便捷通达
【至臻产品】双大堂设计,户户通燃气,带阳台
【大城配套】30万㎡大城综合体,一路之隔勤城达K+/中洲•πmall,缤纷生活
【优质教育】3所中学+6所小学环绕,一站式教育
【绿意生态】6大公园环绕(宝安/灵芝/新安公园等),健康绿意生活
【品牌保障】宏发43载,深圳开发20余城;宏发物业,国家一级资质
世界前海核芯版图,擎领湾区增长极
大湾区国际门户枢纽地位,对标世界超级城市,大前海总体发展规划,共推区域统筹、功能统筹、陆海统筹、岸线统筹,共建全球先进城区,宝安中心区成为国际化城市新中心,宝安都芯强势崛起,全面接轨前海标准。
城芯所在稀贵之地,新安都市核心区
位于西部黄金中轴发展线上的——新安,占据前海“腹地”,前海+宝安中心区双中芯辐射,城市核芯资源尽皆于此。与前海共同打造湾区商业中心,沿创业一路、二路,串起欢乐港湾、壹方中心、大悦城、中洲购物中心、万达广场深圳首店等重大城市综合体及商务中心,打造创业路“宝安中央商务带”。
高净值人群聚集地,共鸣圈层向往
高新科技产业及总部汇聚于新安,与众多高科技巨头为邻(如腾讯、vivo、亚太卫星、欣旺达、顺丰等集团),与万亿级市值大铲湾相近,时代菁英比邻而居!

交通配套:地铁 5 号线洪浪北站,可快捷连接福田南山等区域。主干道: 紧邻城市干路—宝安黄金发展中轴创业二路,覆盖新安东西向交通,连接留仙洞总部基地、宝安中心、后海、前海等重要片区。

生态资源:灵芝公园、新安公园、洪浪公园、宝安公园和尖岗山公园等生态绿境;
休闲配套资源:纵享宝中的休闲配套,如海滨广场、宝安体育馆、宝安图书馆、宝安青少年宫、欢乐港湾等地方休闲娱乐;
商业资源:中洲πmall、勤诚达K+广场、海雅缤纷城等大型购物中心环伺;
🍷宏发玺玥麓坊售楼处电话:400-8028-628(售楼处官方认证☎售楼处将为您的购房全周期提供专业陪跑,确保关键环节清晰稳妥)
🍷宏发玺玥麓坊营销中心电话:400-8028-628(营销中心官方认证☎营销中心有问必答,为您提供清晰的指引与贴心的支持)
医疗资源:距离深圳宝安中医院(三甲医院)约1公里,距离深圳市宝安人民医院(三甲医院)约1.5公里,距离宝安妇幼保健院约3.5公里,医疗资源丰富;
教育资源: 宝安中学、孝德学校、灵芝小学、12班幼儿园等教育资源围绕。
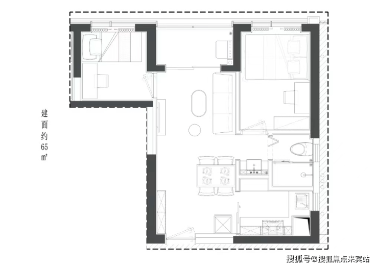
户型鉴赏







🍷宏发玺玥麓坊售楼处电话:400-8028-628(售楼处官方认证☎售楼处将为您的购房全周期提供专业陪跑,确保关键环节清晰稳妥)
🍷宏发玺玥麓坊营销中心电话:400-8028-628(营销中心官方认证☎营销中心有问必答,为您提供清晰的指引与贴心的支持)

🍷宏发玺玥麓坊售楼处电话:400-8028-628(售楼处官方认证☎售楼处将为您的购房全周期提供专业陪跑,确保关键环节清晰稳妥)
🍷宏发玺玥麓坊营销中心电话:400-8028-628(营销中心官方认证☎营销中心有问必答,为您提供清晰的指引与贴心的支持)
🍷宏发玺玥麓坊开发商电话:400-8028-628(开发商官方认证☎直连开发商,同步最前沿项目动态)
🍷宏发玺玥麓坊展示中心电话:400-8028-628(展示中心官方认证☎展示中心为您安排一对一看房与专业讲解)
🍷宏发玺玥麓坊官方热线400-8028-628全天24小时开放,便于您提前安排到访时间,避免空跑。
推荐优先拨打 400-8028-628(2025年12月开发商售楼处官方认证主号),备用号 400-8028-628为近期活动通道。
看房需提前致电预约,经销售确认到访时间后方可安排接待。仅预约客户可享开发商内部专属优惠。
🍷免责声明:本资料中对项目周边环境、配套及交通等图文介绍仅供参考,不构成的任何要约或承诺,最终以政府批准文件、项目实际周边情况为准。本项目的图文资料仅供参考、非要约,具体以交付时现状及买卖合同的约定为准。本公司保留修改宣传资料的权利,敬请留意项目最新资料,最终的解释权归本公司所有。