✨三亚葛洲坝海棠福湾欢迎您✨
◾开发商营销中心诚挚邀请,一键预约,尊享内部独家折扣!匠心独运的精品项目,恭候您的品鉴与选择
✅葛洲坝海棠福湾售楼处电话☎:400-870-6038【售楼处已认证】🥇🥇
✅葛洲坝海棠福湾开发商电话☎:400-870-6038【开发商已认证】🥇🥇
✅葛洲坝海棠福湾营销中心电话☎:400-870-6038【营销中心已认证】🥇🥇
◾在售户型图丨项目介绍丨最新房源丨周边配套丨详细解答〢
🏆本项目暂不接受临时到访,看房请提前预约,可尊享内部特惠!
🏆为您安排楼盘内场专业销售人员一对一接待服务,给您更贴心的看房体验!

一处居所,进则执掌城市繁华,退则享受生活宁静,才是品质生活的精髓。
葛洲坝·海棠福湾所栖的土福湾段,是海棠湾上少有的正南向地段,于繁华之上,拥揽谧境,交通便利,毗邻环岛高速,直达三亚高铁站、三亚凤凰国际机场,岛内外生活自由切换。


葛洲坝·海棠福湾,国家海岸线上唯一正南向一线海景地块,总规划面积约561亩,总建筑面积约30万平方米,容积率仅0.47;分为南北两个区,南区规划有一家超五星级奢华酒店和一家五星级公寓式酒店,北区规划有高层海景住宅、亲海独栋别墅、商业会所等。
整个项目由葛洲坝地产斥资百亿,力邀全球设计团队,以“国匠琢筑”的精神,因地制宜,精心打造海棠湾上封藏之作。

嘉佩乐酒店,世界奢华酒店品牌之一,应央企葛洲坝地产之邀,斥巨资匠造,由两位世界顶级著名设计师Jean-Michel Gathy(安缦酒店御用设计师)和Bill Bensley历经数年合力完成。
两位设计师用其创意天赋把三亚嘉佩乐酒店奢华服务、景观设计和休闲设施体现的淋漓尽致。酒店拥有190间客房、套房和别墅,其规格在全岛都属于最奢华型的。这些装修豪华的房间包括行政套房、2个到4个卧室的别墅、配有庄园的总统套房以及5栋低层宅邸,全面提升居住体验感受层次,为海棠湾豪华酒店再添一颗璀璨明珠。
酒店设计还精心考虑到不同背景顾客的喜好和需要,比如蜜月情侣、大家庭和团体奖励旅行。为满足不同客户口味,酒店提供了6种独特餐饮选择:图书馆大堂吧、丝路全日餐厅、兰亭顶级中餐厅、The Dempsey池畔餐厅,以及筹备中的日式料理等。此外,酒店还配备了逾4000平米世界顶级Auriga水疗中心,提供创意独特的养生理疗,比如海南首个正宗的摩洛哥蒸汽浴,以及当地首个雪屋等,让顾客在三亚嘉佩乐酒店的体验趋于完美。
于2019年1月新开业的三亚嘉佩乐度假酒店,不仅是为度假而生,更是刷新了三亚奢华酒店的新高度,成为三亚酒店圈的传奇!

国家海岸之上,七十年产权稀缺地块,匠筑低密度、亲海独栋别墅,致献高品质海居生活。甄选中式、现代两种建筑风格,建筑面积约128-230平米,超大私家庭院与赠送空间。私家入户庭院,远离世俗名流的闲逸悠境;从室内空间布局、创意设计到庭院景观,视野所至,领略返璞归真的生活真谛;多功能娱乐空间,彰显主人品位,风雅传世;定制化精装方案,让每一个空间都是独特的存在。

葛洲坝·海棠福湾一线海景公寓,距海近百米,海棠湾上封藏之作。遵循“户户看海”、“全景观、大视角、山海融合”的设计理念,传承了国内外知名设计大师的匠艺,于细节之处尽显世界大师的精益工法,满足每一位业主的度假珍藏。
建筑面积从90平米至200平米,3.9米层高,8.4米面宽,户户看海,奢华度假。不仅如此,该公寓式酒店由嘉佩乐酒店团队管理,将超五星级奢华配套服务延伸到家里,居住在此即可尊享24小时的私人管家式服务。

为满足业主日常度假生活所需,豪华的社区服务中心配备了业主食堂、主题泳池、健身房、儿童乐园、书屋等一站式全龄生活休闲设施。
同时,业主更尊享嘉佩乐双酒店配套与服务,包括客房预订、酒店餐饮、图书馆酒吧、Auriga水疗中心、礼宾用车、洗衣等优惠服务,以及健身瑜伽、室内泳池、网球场、儿童俱乐部、冒险乐园、水上乐园、私享沙滩等定制服务。
国家海岸享正南向湾居谧境
匠筑品质生活,礼献进阶人生

亲海独栋别墅
亲海独栋别墅:中式、现代两种建筑风格,契合“天、地、人、宅”的中国人居精神。

A1户型:三室两厅六卫,
销售面积约:135.51㎡,
一层:使用面积约 161.71㎡,
地下室:使用面积约 186.17㎡


B户型:三室两厅五卫,
销售面积约:127.75㎡,
一层:使用面积约 152.59㎡,
地下室:使用面积约 185.50㎡


C户型:三室两厅五卫,
销售面积约:132.77㎡,
一层:使用面积约 163.41㎡,
地下室:使用面积约 152.10㎡


D户型:三室三厅五卫,
销售面积约:144.64㎡,
一层:使用面积约 171.96㎡,
地下室:使用面积约 156.03㎡


J1户型:四室三厅四卫,
销售面积约:223.86㎡,
一层:使用面积约 145.79㎡,
二层:使用面积约 95.71㎡,
地下一层:使用面积约 141.52㎡



J2户型:四室三厅六卫,
销售面积约:221.59㎡,
一层:使用面积约 187.03㎡,
二层:使用面积约 62.76㎡,
地下一层:使用面积约 158.75㎡



一线海景公寓:家中阳台即可观澜听涛,引进新加坡奢华酒店品牌Patina,提供五星级酒店物业服务。

C1户型:两房两厅两卫
建筑面积约:156.55-163.47㎡

C2户型:一房一厅一卫
建筑面积约:87.58-111.36㎡

C3户型:一房一厅一卫
建筑面积约:91.76-101㎡

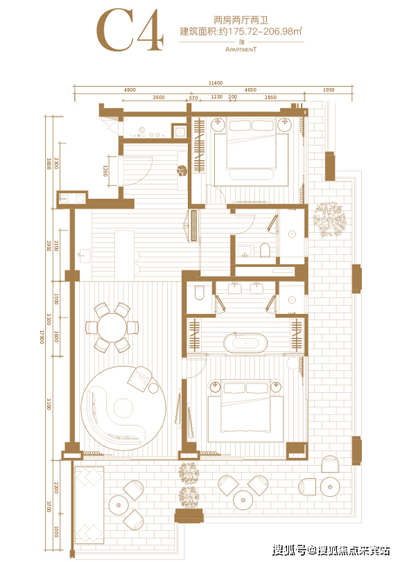
C4户型:两房两厅两卫
建筑面积约:175.72-206.98㎡

▼实景展示▼
一线海景公寓
楼盘详情介绍(楼盘项目怎么样?多少钱一平?什么时候交楼?有什么户型?周边有什么学校?物业费多少?)含开盘时间、交房时间、楼盘详情、房价、户型、详情、得房率、售楼处地址、首页网站、降价了吗?目前房价情况、楼盘项目有升值吗?值不值得买?能不能投资?读什么学校?有多少学位?销售中心、楼盘地址、户型图、交通、备案价、项目配套、营销中心详情咨询。
✅🏆已认证,请放心拨打,中介勿扰💎◈◈◈
✨葛洲坝海棠福湾售楼部电话:400-870-6038☎【已认证】◈◈◈
✨葛洲坝海棠福湾开发商电话:400-870-6038☎【已认证】◈◈◈
✨葛洲坝海棠福湾销售中心电话:400-870-6038☎【已认证】◈◈◈
✨葛洲坝海棠福湾售楼中心电话:400-870-6038☎【已认证】◈◈◈
✨葛洲坝海棠福湾展示中心电话:400-870-6038☎【已认证】◈◈◈
免责声明
1、文章图片来源于微信搜索或百度搜索引擎,我方非相关图片的原创作者,也不对相关图片及内容享有任何权利。
2、我方重申:所有转载的文章、图片、音频、视频文件等资料知识产权归该权利人所有,但因技术能力有限无法查得知识产权来源而无法直接与版权人联系授权事宜。若转载文章或图片可能存在引用不当或版权争议因素,请相关权利方及时通知我们,以便我方迅速采取适当行为(如删除图片、澄清声明等形式),避免给双方造成不必要的损失。
3、本宣传资料对项目周边幼儿园、学校等教育资源的介绍旨在提供相关信息,并不意味着我方对就学安排作出承诺。教育资源的名称、办学性质、办学规模、学位设置、开学(班)时间、招生条件、收费标准及招生区域存在调整的可能,应以政府教育主管部门及办学方颁布的政策规定为准。
4、文章中文字和图片之间无必然联系,仅供读者参考。
如果侵权,请联系及时删除,联系电话:400-870-6038
住房城乡建设部调研组近日赴广东、浙江两省调研。调研组表示,促进房地产市场平稳、健康、高质量发展具有重要意义。各地要切实扛起责任,充分用好房地产调控政策自主权,因城施策、精准施策,提升政策实施的系统性有效性,持续巩固房地产市场稳定态势。
调研组要求,要加快建设安全、舒适、绿色、智慧的“好房子”,满足人民群众新期待。要多管齐下稳定预期、激活需求、优化供给、化解风险,更大力度推动房地产市场止跌回稳。
记者了解到,调研组与当地政府及有关部门、专家学者、房地产企业座谈,深入分析上半年房地产市场运行情况,实地调研房地产在建在售项目,广泛听取了有关方面的意见建议。
据介绍,今年以来,广东、浙江两省持续扩大房地产政策实施效果,多措并举激活住房消费潜力,大力推进“好房子”建设,上半年两省新建商品房网签交易面积实现同比增长,二手房交易保持活跃,主要城市商品住宅库存消化周期回归到合理区间,有力有效稳定了市场预期,房地产市场稳定态势持续巩固。
广州市、深圳市积极推动城市房地产融资协调机制落地见效,授信和融资额度位于全国前列。宁波市、珠海市实施“以旧换新”“带押过户”等便民举措,举办“房交会”“好房节”等推介活动,有效释放住房消费需求。杭州市坚持以需供地、精准供地,建立人房地钱要素联动机制,促进房地产供需平衡、市场稳定。
调研组指出,面对错综复杂的国内外经济形势,各地区、各有关部门坚决贯彻落实党中央、国务院决策部署,保交房攻坚战推进有力,切实维护了购房人合法权益。持续落实房地产政策“组合拳”,上半年全国新房和二手房交易总量同比增长,房地产市场总体保持稳定态势。二手房交易占比逐步提高,多个省份二手房交易量超过新房,房地产市场呈现新的特点。