御景华府(售楼处)2025首页网站-御景华府售楼中心(营销中心)-御景华府欢迎您-小区环境-户型图-价格-楼盘详情-周边配套-容积率

搜狐焦点来宾站

2025-01-29 12:05:26

购房群

买房如何避坑,加入购房群,看看他们怎么说

立即进群

✅【深圳·御景华府】✅

✅【御景华府售楼处电话☎️:400-990-7721】✅

✅【御景华府售楼中心电话☎️:400-990-7721】✅

✅【御景华府营销中心电话☎️:400-990-7721】✅

⚠️温馨提示:看房请提前预约☎️电话预约看房,享受专属优惠大礼包!

【项目基础信息】

【占地面积】约18462㎡

【建筑面积】约104994㎡

【项目户型】建面约67-70㎡2房2厅,约73-84㎡3房1厅,约89-91㎡3房2厅,104-112㎡4房2厅

【可售户数】约524户

【停车位】763个

【土地年限】70年产权

【楼栋规划】1栋、2栋、3栋、5栋为住宅,4栋为幼儿园

【梯户比】2梯4户、2梯5户、2梯6户

【开发商】深圳市泰富安投资有限公司

『可以低密,何必拥挤』

塔楼纯点式布局,采光、通风、视野俱佳。以生态阔景人居为理念,打造瞰景阔宅。

值此3.86低密,进阶改善一步到位。低层看园林,中高层无遮挡瞰山景。

『藏不住的自在』

一步到位,让有限的空间,契合生命中每个角色的完美转换。

多数户型使用率约80%,尽享生活舒适所在。

『弯起来的骄傲中海物业』

2020年度世界500强第18位,国家首批一级资质物业管理企业。

365天关怀备至、24小时无微不至,30°的尊崇、35°的微笑、75°的专注,95°的坚持、180°的严谨。

『50+匠心细节呈现』

深入对精工美学的研究,以匠人精神,以先进的工艺工法浇筑。

户型设计细节的考量,更是精益求精,打造社区回归舒心居住体验。

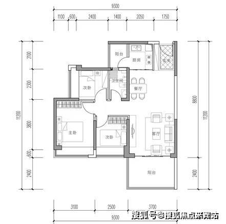
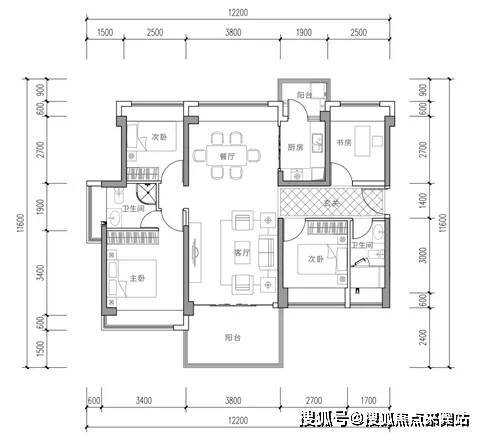
户 型 剖 析

小区平面图

01

67-70㎡2房2厅1卫 (以2A栋04户型68㎡为例)

02

73-84㎡3房2厅1卫 (以1栋04户型82㎡为例)

03

89-91㎡3房2厅2卫 (以2栋03户型89㎡为例)

04

104-112㎡4房2厅2卫(以2A栋01户型112㎡为例)

【无中轴不中心】

不容小觑的鹭湖!鹭湖中心城立足中部轴心,可预见的价值潜力。

法国巴黎、美国纽约、日本东京等每一座城市,有一条价值中轴,处于城市繁华中心,联接城市顶级资源,见证城市的崛起,深圳中轴从福田中心、龙华中心北拓延伸发展。

【振鹭于飞咏湖于美】

不容忽视的鹭湖!“行政+科技+文化+生活”综合服务中心,高标准/高品质/高起点的发展定位。

鹭湖中心城,龙华六大重点片区之一,山水交融,揽山阅湖,逾越“香蜜湖”,从“国际住区”到“中心城”迭代升级。

【振鹭于飞咏湖于美】

不容忽视的鹭湖!“行政+科技+文化+生活”综合服务中心,高标准/高品质/高起点的发展定位。

鹭湖中心城,龙华六大重点片区之一,山水交融,揽山阅湖,逾越“香蜜湖”,从“国际住区”到“中心城”迭代升级。

【科技晋级高新极核】

不可阻挡的鹭湖!以高新科创为深圳、为中国贡献鹭湖力量。

鹭湖中心城位于深圳”中优“”北拓“战略的重要节点,占位于“一圈一区三廊”发展格局的产值超万亿的数字经济圈,2019年观澜高新园已纳入国家高新园,成为深圳创新驱动核心引擎。

『抵达福田中心,刷剧才1集』

自在生活,不是说走就走而是转瞬即达。“鹭湖枢纽”交通体系,无缝连接城市中心。

地铁18、22号线(规划中),快速通达福田保税区、光明科学城、会展新城等区域。

✅深圳·御景华府售楼处电话:400-990-7721✅价格、房价、户型图、学校、学位、交通、规划、周边配套、容积率、得房率、使用率、交楼时间、售楼处位置、售楼处地址、售楼处电话、售楼部、营销中心电话、售楼中心电话、销售中心、样板房、样板间、小区环境、楼盘详情、楼盘介绍、项目简介、项目介绍、备案价、折扣、优惠、活动、最新消息、怎么样、能买吗;

💥免责声明

1、文章图片来源于微信搜索或百度搜索引擎,我方非相关图片的原创作者,也不对相关图片及内容享有任何权利。

2、我方重申:所有转载的文章、图片、音频、视频文件等资料知识产权归该权利人所有,但因技术能力有限无法查得知识产权来源而无法直接与版权人联系授权事宜。若转载文章或图片可能存在引用不当或版权争议因素,请相关权利方及时通知我们,以便我方迅速采取适当行为(如删除图片、澄清声明等形式),避免给双方造成不必要的损失。

3、本宣传资料对项目周边幼儿园、学校等教育资源的介绍旨在提供相关信息,并不意味着我方对就学安排作出承诺。教育资源的名称、办学性质、办学规模、学位设置、开学(班)时间、招生条件、收费标准及招生区域存在调整的可能,应以政府教育主管部门及办学方颁布的政策规定为准。

4、文章中文字和图片之间无必然联系,仅供读者参考。

5、本文所述内容和意见仅供参考,不构成市场交易依据和投资建议。

全部

相关资讯

报名成功
稍后会有专业的置业顾问联系您
返回楼盘

频道导航

返回首页

看房小程序

APP下载

电话拨通后,请您手动拨打分机号

确定拨打电话

电话号码:

分机号:(可能需要拨分机号)