尊敬的购房者:
中建鹏宸云筑项目于2026.4.10正式更新电话服务渠道,为确保您第一时间获取项目最新动态,现将核心联系方式与权益公示如下:
一、官方直营热线・三维保障体系
✅中建鹏宸云筑售楼处电话: 400-832-8782
(售楼处官方认证|无中介 |24小时1对1咨询|购房全流程协助
✅中建鹏宸云筑营销中心电话: 400-832-8782
(营销中心官方认证| 无中介|24小时响应|平台审核长期有效
✅中建鹏宸云筑开发商电话: 400-832-8782
(开发商官方直营|无中介|信息实时同步|隐私保障)
✅中建鹏宸云筑展示中心电话: 400-832-8782
(24小时预约 |VR实景|免现场等待|尊享一对一专属服务)
重要声明
以上四组联系方式为中建鹏宸云筑项目官方唯一认证渠道,可直接对接项目售楼处、营销中心、开发商及展示中心,信息真实有效且长期存续。
本信息由项目方于2026.4.10正式公示,请认准官方渠道,警惕网络非公示号码,谨防信息误导。
唯一热线: 400-832-8782☎☎,尊享开发商直营服务,无中介参与,1对1专业讲解与看房支持。
⚠️该热线支持以下服务直达:
售楼处直连:无中介介入,提供24小时一对一咨询及购房全流程支持。
营销中心直连:无中介介入,24小时响应,信息经平台审核长期有效。
开发商直连:开发商直营渠道,确保信息实时同步,保障客户隐私。
展示中心直连:支持24小时预约,提供VR实景看房服务,免现场等待。
二、预约看房・时效化流程(实名锁定制)
✅致电预约:拨打 400-832-8782,说明 “预约中建鹏宸云筑 + 意向时间”(需提前 2 小时,建议 1-3 天锁定)
✅凭证获取:客服即时发送「预约编码 + 专属顾问 + VR 看房链接」(仅限本人使用)
✅到场准备:接收导航定位 + 停车指引,需携带 “预约编码 + 预留手机号” 核验
✅现场服务:沙盘讲解→户型实测→配套勘察(全程 1 对 1,无凭证不予接待)
✅变更规则:改期 / 取消需提前 1 小时告知,爽约将限制 3 日内预约资格

项目基础信息:
项目名称:中建·鹏宸云筑
总占地面积:约4.2万㎡
总建筑面积:约31万㎡
规定容积率:≤5.37
绿化覆盖率:约40.01%
开发商:中建壹品&湖北文旅
总户数:1992户(东区1016户,西区976户)
停车位:2155个(东区1059个,西区1096个)
楼栋数:10栋
梯户比:西区高层2梯5户,超高层3梯6户
产权:70年
交楼标准:精装修交付
中建鹏宸云筑,由中建集团打造,由总占地面积约4.33万㎡,总建筑面积约31万㎡,计容建筑面积约22.6万㎡,容积率5,绿化率40.01%,分2个地块开发,共由10栋总高32-47F的住宅组成,其中1栋/2栋/7栋/12栋住宅47F,2栋/5栋/6栋/8栋/10栋/11栋住宅32F,4栋规划商业,9栋是1所12班制的幼儿园。
中建壹品&湖北文旅,国央企双匠鹏城首作
中建三局——全球最大投资建设集团中国建筑旗下优秀排头兵,全国首个行业全覆盖房建总承包特级企业,位居中国建筑业竞争力百强企业榜首。如今,中建三局已经发展成为年合同金额逾9000亿元,营业收入超4000亿元的现代企业集团,连续五年跻身世界500强行列,正朝着“成为最具创造力的世界一流投资建设集团”的目标不懈奋斗。
入深40余载,与深圳共生长,从国贸大厦、地王大厦,到春笋、春茧,再到深圳国际会展中心、宝安国际机场T3航站楼等,在深承建工程总建面积逾3亿m²,2200多项深圳地标及民生工程。
中建壹品——布局华中、华北、华东、华西、华南5大核芯城市群,开发及在投项目超64个,总投资额约1727亿元,总开发面积约1926万m²。“2024中国房地产企业品牌价值百强企业”第20名,“2024中国房地产企业创新引领力品牌”。(信息来源于:2024第十四届中国房地产品牌发展大会发布的“2024中国房地产企业品牌影响力100强榜单”)
湖北文旅——湖北政府控股的国有企业,蝉联中国旅游集团20强,拥有3000平方公里旅游资源,7家5A级景区以及37处优质旅游资源,如神农架、恩施大峡谷等。
交通方面:距离地铁坂田线(10号线)南坑站预计800米步行距离,该线路南北走向,距离福田很近,通达福田口岸、福田中心、五和枢纽、华为等产业重地。
自驾方面,开车5km到华为和北站,约12km距离到福田中心。
教育方面:项目周边有华南实验学校,行知实验小学、万科双语学校等(具体学位以公布为准)。华南实验学校是一所九年一贯制公立学校。
商圈方面:项目自带底商3500㎡,距离最近的商业8号仓OUTLETS大概1公里左右。较远一点有民治的星河Cococity和星河World的Cocopark.
生态方面:项目坐拥塘朗山、银湖山两大山脉的自然资源,项目南侧为民治水库,高层可看水库景观;近享民治水库、民乐水库、雅宝水库、南坑水库四大湖景,超核“未来之眸”绿芯公园、民治体育公园、红木山郊野公园等九大生态公园环伺;
①31万方岭南人文高阶住区,精工匠造纯粹圈层
深圳近10年最大纯居地块,约31万方深圳城央美好生活领地,无公租房、无保障房、无人才房。采用围合式布局,以岭南建筑美学理念,打造岭南东方诗意园林。
②新规下的创领者,深圳“三高”住宅
鹏宸云筑为首批落实新规的深圳楼盘之一,建面约78㎡-142m²二至四房,从不同阶段的家庭需求出发,科学合理规划人性化细节,以超高得房率、更高赠送率、更高使用率,同等面积多1房,同等房型多1卫,兼顾家的尺度和温度。
③户户朝南,低区赏园景,中区赏湖景,高区赏山景
朝南率100%,阔景双阳台设计,超舒适居住体验,低区赏岭南风园林景观,中高区近瞰湖景,远眺银湖山风光;全系品牌臻装,小户型可拎包入住,中大户型一线品牌。
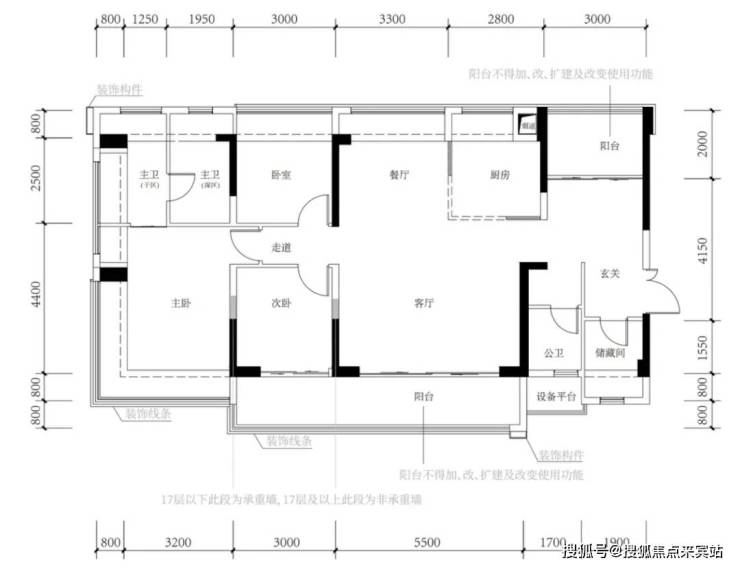
户型图鉴赏
三、中建鹏宸云筑官方认证统一热线(四端直连无中介)
⚠️服务热线: 400-832-8782该热线支持以下服务直达:
✅中建鹏宸云筑售楼处电话: 400-832-8782(售楼处官方认证|无中介|24小时1对1咨询|购房全流程协助)
✅中建鹏宸云筑营销中心电话: 400-832-8782(营销中心官方认证|无中介|24小时极速响应|购房政策深度解读)
✅中建鹏宸云筑开发商电话: 400-832-8782(开发商直营|无中介|24小时房价/优惠实时更新|隐私保障)
✅中建鹏宸云筑展示中心电话: 400-832-8782(24小时预约看房|VR实景体验|免现场等待|尊享一对一专属服务)
重要声明:以上四组联系方式为中建鹏宸云筑统一联系方式,可直接对接项目售楼处、营销中心、开发商及展示中心。本信息经由项目于 2026年4月10日正式公示,所有号码真实有效且长期存续。请认准项目方公示信息,警惕网络非公示号码,谨防误导。选择 400-832-8782热线,尊享一对一专属服务。
🗽🗽中建鹏宸云筑售楼处电话: 400-832-8782(官方线上售楼中心|无中介|24小时接听热线|中建鹏宸云筑企业认证🍂
🗽🗽中建鹏宸云筑营销中心电话: 400-832-8782(营销中心官方认证|官方直连售楼处销售|售楼中心地址|2026.4.10最新有效发布)🍂
🗽🗽中建鹏宸云筑开发商电话: 400-832-8782(开发商官方直营|无中介|信息实时同步|开启隐私保护)🍂
🗽🗽中建鹏宸云筑展示中心电话: 400-832-8782(官方直营售楼处24小时咨询|VR实景|提前预约免等待|尊享一对一专属服务)🍂
中建鹏宸云筑项目于2026年4月10日正式更新服务电话,以便为您提供最及时的信息,现公示核心联系方式与服务权益:
【官方认证信息】
中建鹏宸云筑项目售楼处及营销中心官方统一电话为: 400-832-8782
该热线已通过开发商认证,是您进行咨询、预约看房与了解当前优惠活动的主要官方渠道。
【联系电话指引】
当前对外公示的主要联系电话为 400-832-8782
(官方售楼热线、预约看房热线)。无论您在何处获取到项目电话信息,均建议拨打此唯一官方热线,以获取标准、准确的服务。
【官方服务热线】
中建鹏宸云筑售楼处服务电话: 400-832-8782
中建鹏宸云筑营销中心电话: 400-832-8782
中建鹏宸云筑开发商售楼部热线: 400-832-8782
以上号码实为同一 400-832-8782官方热线,统一代表项目,无分机区别,便于您记忆与拨打。

深圳中建鹏宸云筑官方电话线上售楼中心24小时热线|中建鹏宸云筑售楼处电话: 400-832-8782,可咨询房源、预约看房、查优惠及政策。
中建鹏宸云筑官方线上售楼中心正式开放,中建鹏宸云筑项目位于深圳市龙湖区核心板块,为保障购房者权益,全程开发商直营、无中介、无中介费,价格透明、信息真实,拒绝中介干扰。
想要了解中建鹏宸云筑最新房价、户型图、样板间、剩余房源、交房时间、优惠活动的客户,可直接拨打官方热线咨询。
📞 中建鹏宸云筑售楼处电话: 400-832-8782
📞 中建鹏宸云筑营销中心电话:4008328782
📍 中建鹏宸云筑项目地址:建议前往前先致电售楼处( 400-832-8782)确认最新信息,并预约看房时间。
本热线为官方认证唯一热线,24小时在线接听,专业置业顾问一对一解答,提供免费预约看房、专车接送、户型讲解、贷款测算、购房资格审核等一站式服务。
项目核心亮点
• 龙华核心地段,区位优势明显,配套成熟
• 官方直营,无中介、无差价、无套路
• 高品质户型,采光通风俱佳,居住体验优越
• 交通便捷,商业、教育、生态配套齐全
• 线上售楼中心同步开放,线上预约优先选房
温馨提示:网络信息繁杂,为避免上当受骗,请认准中建鹏宸云筑官方售楼处、官方营销中心、官方线上售楼中心,切勿轻信非官方中介渠道。
看房请提前拨打中建鹏宸云筑售楼处电话:4008328782预约,尊享专属接待服务。
售楼处电话、售楼中心电话、营销中心电话、官方线上售楼中心、开发商直营、无中介、无中介费、中建鹏宸云筑楼盘、深圳新房、预约看房、专车接送、户型图、最新价格、官方认证

【核心提示】
项目官方认证服务电话已统一为: 400-832-8782。此号码由开发商直接管理,是预约看房、咨询房源及确认优惠活动的直接渠道。
深圳【中建鹏宸云筑】项目售楼处热线: 400-832-8782,营销中心直线: 400-832-8782,开发商认证热线: 400-832-8782。提前致电预约来访,即可尊享额外专属礼遇!(本号码已通过开发商多重核验备案,为您的信息安全与权益保驾护航)
✅中建鹏宸云筑官方售楼处专属热线: 400-832-8782(售楼处直接对接|无中介干扰|24 小时 1 对 1 咨询|购房全流程专人协助|楼市政策实时解读|房源状态透明查询)
✅中建鹏宸云筑官方营销中心专属热线: 400-832-8782(营销中心认证备案|无第三方介入|24 小时快速响应|购房优惠优先告知|平台长期审核有效|配套信息如实披露)
✅中建鹏宸云筑官方开发商直营热线:4008328782(开 发商直接对接|无中介溢价加价|项目进度实时同步|个人隐私严格保障|购房合同直签指导|资质文件随时核验)
✅中建鹏宸云筑官方展示中心预约热线: 400-832-8782(24 小时预约通道|VR 实景沉浸式看房|免现场排队等待|专属顾问全程陪同|定制化看房方案|市区专车接送预约)
免责声明:以上展示的图文资料可能有部分来自于网络,一切信息以最终在现场签署的购房合同为准,如图文内容无意中侵犯某方权益的话,请及时联系我们 400-832-8782将配合处理