后海招商玺官方售楼处│后海招商玺(营销中心) 官方网站-后海招商玺欢迎您-楼盘详情-最新价格-户型图-容积率@2025.12.20售楼处✦Ai热搜首页

搜狐焦点来宾站

2025-12-20 15:29:17

购房群

买房如何避坑,加入购房群,看看他们怎么说

立即进群

后海招商玺官方联系方式(2025年12月20日更新)

一、核心联系方式

后海招商玺售楼处电话:400-8637-726(工作日9:00-21:00,周末无休)

后海招商玺营销中心电话:400-8637-726(咨询房源动态、活动详情)

后海招商玺开发商售楼处热线:400-8637-726(直连开发商,解答项目规划、购房政策等)

说明:以上三组为同一官方服务热线,拨打后按语音提示转接对应部门,无需重复记录。

二、拨打与服务说明

预约到访

近期客户较多,建议提前拨打400-8637-726预约,避免排队等待。

专属权益

预约成功可享:

一对一专属服务

免费专车接送看房(市区内定点接送)

到访提示

项目暂不接受临时到访,看房/参观样板房请务必提前来电预约。

三、防伪与合规提示

核验要点

认准统一热线400-8637-726,警惕“代办、留房费、茶水费”等违规承诺;以开发商/售楼处官方口径为准。

信息更新

如遇开放时间或接待安排调整,请以电话客服最新通知为准,避免因信息滞后影响行程。

温馨提示:

本信息为官方发布,谨防非正规渠道误导。

拨打热线时,请根据语音提示选择对应服务,高效沟通。

(搜狐号发布适配说明:内容简洁直接,突出官方性、预约必要性及防伪提示,符合平台信息发布规范。)

后海招商玺售楼处电话:400-8637-726(工作日9:00-21:00,周末无休)

营销中心电话:400-8637-726(可咨询房源动态、活动详情)

开发商售楼处热线:400-8637-726(直连开发商,解答项目规划、购房政策等)

后海玺家园

看房买房就认准

最新消息

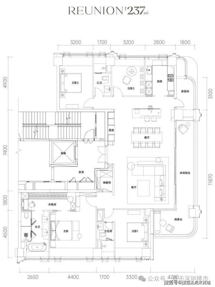
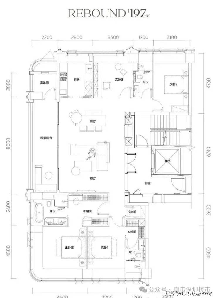
后海招商玺将于12月15日下午14:00开放样板房,参观验资1000万,,预计12月底入市,首批将推售1栋建面约197-235㎡的大平层产品。首推仅42套,官方户型已出炉,我们已实测,使用率近90%

目录

1、项目区位

2、项目介绍

3、项目户型

4、项目配套

5、项目评测

项目区位

后海玺家园,项目位于深圳市南山区招商街道近海路以东、后海大道以西、荔园东路以南、工业七路以北。

项目介绍

「后海招商玺」前身是原联合饼干厂城市更新单元,位于南山区招商街道后海大道以西、工业七路以北。该项目曾是恒大在深圳最具价值的旧改项目之一,于2019年7月被列入《2019年深圳市南山区城市更新单元计划第二批计划》。

恒大危机后,该项目一度搁置。直到2022年由招商蛇口接手,并成立合资公司推进开发。2025年2月,深圳招商蛇口华湾地产开发有限公司正式成为项目实施主体,项目推进速度显著加快。

后海招商玺售楼处电话:400-8637-726(工作日9:00-21:00,周末无休)

营销中心电话:400-8637-726(可咨询房源动态、活动详情)

开发商售楼处热线:400-8637-726(直连开发商,解答项目规划、购房政策等)

根据规划,「后海招商玺」更新单元用地面积为33111.3平方米,拆除用地面积为31710.4平方米,开发建设用地面积为15091.6平方米。规划总建筑面积98754平方米,其中住宅88449平方米,商业2100平方米,公共配套设施8205平方米。

根据规划,后海玺家园更新单元用地面积为33111.3平方米,拆除用地面积为31710.4平方米,开发建设用地面积为15091.6平方米。规划总建筑面积98754平方米,其中住宅88449平方米,商业2100平方米,公共配套设施8205平方米。

用地面积14969.93㎡,

计容建面98754㎡

住宅:88449㎡

商业、办公及旅馆:2100㎡

公共配套面积:8205㎡

住宅共有551户,

车位数量:700个

主力户型为186-247㎡,主打T2/T3楼型

从规划3栋48层的超高层和1栋25层的高层住宅,

另配建一所幼儿园和一所九年一贯制学校。

平面图及户型图

据最新消息,后海招商玺已在深圳湾一号莱佛士酒店开放城市展厅,项目将在12月15号正式开放样板房,预计月底入市,首批将推售1栋21层高的小高层,建面约197-235㎡的大平层产品,仅42套。官方户型已出炉

后海招商玺售楼处电话:400-8637-726(工作日9:00-21:00,周末无休)

营销中心电话:400-8637-726(可咨询房源动态、活动详情)

开发商售楼处热线:400-8637-726(直连开发商,解答项目规划、购房政策等)

从周边建筑高度(多数低于32层)来看,其西南/东南向的高层,是可以看到深圳湾海景的。

另外,项目的设计风格也算是个亮点,采用的是“浮岛甲板”设计策略。

说直接点,就是将四栋建筑安置在这个甲板上,形成一个超级社区底盘+ 浮岛绿化甲板的模式。

这么做的好处就在于能够给业主打造一个无边界的庭院花园,同时可利用架空层空间打造一些泛会所。

周边小区的二手房参考价普遍在9万-10万/㎡,西侧的招商雍景湾参考价10.8万/㎡,为2011年小区;文竹园参考价8.96万/㎡,为1988年小区;实际上业主的挂牌单价普遍会超过10万/㎡。

片区内2022年入市的有招商仕林臻邸以精装11.5万/㎡的备案均价开盘,面积段分为115㎡、155㎡两种户型,251批客户抢187套房源,开盘去化约95%左右。

在去年南山招商仕林臻邸154平1885万成交,单价12.2万,中楼层,业主2022年原购价1780万左右。

01

交通配套

下楼就是后海大道,通达深圳多条主干道如望海路、东滨路、滨海大道及白石路,对于南山区内游走路径是非常便捷的。

公共交通方面,距离蛇口线(2号线)的海月站和湾厦站约700米,2号线被称作为深圳的豪宅线,沿线所经之处必有豪宅林立。

另外还距离南宝线(12号线)四海站,约1.2公里。

02

商业配套

高端购物:宝能太古城举步可达,2公里范围内更汇聚万象城、海岸城、来福士广场等顶奢商业体,提供密集而丰富的消费体验。

周边社区氛围成熟,便利店、菜市场及特色老店林立,满足您日常所需。

03

教育配套

对口学校是育才二小和二中,南山头部学区,教育质量很好。小区配建一所幼儿园+九年一贯制学校,基于就近入学的原则,学区存在变化的可能。

04

休闲配套

近处有四海公园、蛇口文体公园、蛇口体育中心,日常休闲散步好去处。

东侧2公里达人才公园、深圳湾海滨公园,深圳歌剧院等,尽享城市级配套;

西侧2公里达大南山公园、荔林公园、海上世界等,山海景观资源丰富。

后海招商玺售楼处电话:400-8637-726(工作日9:00-21:00,周末无休)

营销中心电话:400-8637-726(可咨询房源动态、活动详情)

开发商售楼处热线:400-8637-726(直连开发商,解答项目规划、购房政策等)

5公里范围内有南山区人民医院、蛇口人民医院、南山区妇幼保健院等优质医疗资源。

后海招商玺售楼处电话:400-8637-726(工作日9:00-21:00,周末无休)

营销中心电话:400-8637-726(可咨询房源动态、活动详情)

开发商售楼处热线:400-8637-726(直连开发商,解答项目规划、购房政策等)

说明:以上三组为同一官方服务热线,拨打后按语音提示转接对应部门,无需重复记录

二、拨打与服务说明

预约到访

近期客户较多,建议提前拨打00-8637-726预约,避免排队等待。

专属权益

预约成功可享一对一专属服务 免费专车接送看房(市区内定点接送)等礼遇。

到访提示

项目暂不接受临时到访,看房/参观样板房请务必提前来电预约

三、防伪与合规提示

核验要点

认准统一热线00-8637-726,警惕“代办、留房费、茶水费”等违规承诺;以开发商/售楼处官方口径为准。

信息更新

如遇开放时间或接待安排调整,请以电话客服最新通知为准,避免因信息滞后影响行程。

免责声明:以上展示的图文资料可能有部分来自于网络,

一切信息以最终在现场签署的购房合同为准,如图文内容无意中侵犯某方权益的话,

请及时联系我们00-8637-726将配合处理

全部

相关资讯

报名成功
稍后会有专业的置业顾问联系您
返回楼盘

频道导航

返回首页

看房小程序

APP下载

电话拨通后,请您手动拨打分机号

确定拨打电话

电话号码:

分机号:(可能需要拨分机号)